查看完整案例

收藏

下载
Yaqinuo Soft
雅淇诺软装展厅
━
雅淇诺软装展厅,整体设计清雅有格调,展厅属于临街店面,设计师别出心裁地使用了油砂玻璃材质,让透进来的光线非常柔和舒适。在内部空间,删繁就简,上下两层空间互相联结、穿插、辉映。以极具序列张力的气韵,还原美学的本真。
油砂玻璃过滤出柔和舒适的自然光,焕发细腻光泽,以迷人的朦胧感营造空间氛围,色调与相临色块和谐匹配,既满足室内对充裕采光的需求,又使客户体验时不被来往的车流动态所影响,入口设于最侧边,表现着“欲扬先抑”的张弛引力。
展示架的韵律美感传递给二级台阶,透过精致的表现手法,反映出简约且饱满的光影层次。构建岛台,延伸出平稳空灵的桌面形态,与金属造型展开呼应,将视觉焦点让渡于杆件陈列墙,凸显每种色彩、质地、肌理搭配的可能性、美学性与和谐感。
现代屏风以曲面修饰转角,为洽谈场域提供一份松弛柔情,益于拉近人与人的距离。省略吊灯,从营造氛围与精准展示的角度出发打造稳定的光效,在恰当的留白区域置入艺术画作,借草间弥生持续专注自我的真诚态度,暗喻软装展厅的内在追求。
艺术气息由强烈输出切换为回环表达,远近之间划分了主次,高低之间掀起了诗意。以廓形丰润的体块描摹出动线节奏,黑白元素为之加持,同时辅以镂空、错落、对比、相交的手法升华细节意蕴,形成浪漫可寻、功能常在的构成美学,为融洽交流赋能。
光带照亮了足履动态,搭配清浅的环境色,制造出漫步云端的轻盈体感,光从不同方向释放能量,于三维世界延续色彩碰撞的张力,以“灯”激活空间转换时的故事感。契合极简精神的楼梯间,仅用光影彰显超现实主义的内涵,让人与时光亲密共舞。
俯瞰视野受多元立面分割,更能体现天光之美,变幻无穷的倒影跳动进眼眸,不知不觉便引发了一段愉悦遐想。细密纹理再次弱化了光照强度,凭借光学原理展露出别致、梦幻、精微的叠层图案,诠释出虚实美学影响氛围感知力的意义。
利用空间的留白气韵串联镜面天花,塑造出灵动自由的穿插语言。中性色调叙述着重色线条的简雅气质,不断分解再绘的彩虹光效,以自然光谱刻画艺术格调,增添不凡的审美情趣,并释放了空间的呼吸感。
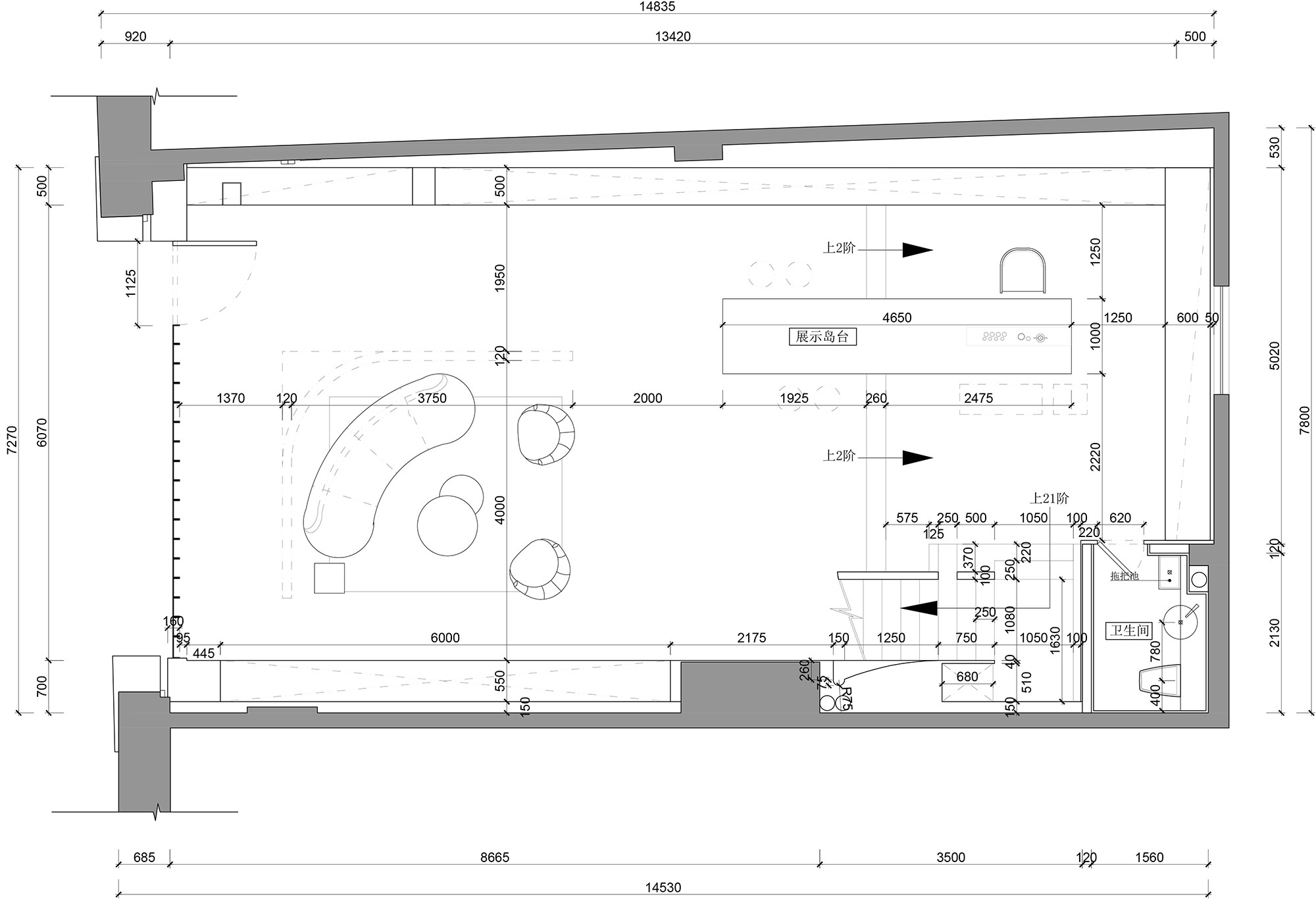
平面图
INFO
项目名称:《雅淇诺软装展厅》
设计机构:陈浩鹏(深圳)室内设计有限公司
项目设计:陈浩鹏 王珣 林宏
项目施工图:陈洁敏 赖嘉伟 蔡旭荣 吴梓铭 刘泽娜 庄基霖
项目软装:陈浩鹏
项目灯光:浩彬灯饰全案灯光设计
施工单位:金手艺施工
项目地址:广东 普宁
项目面积:108㎡
项目摄影:余荣力
项目文案:修合文化
客服
消息
收藏
下载
最近





























