查看完整案例


收藏

下载

翻译
来源: АrсhDаilу
建筑师提供的文字说明。 DK大邱分公司总部位于大邱广域市中区大峰洞大峰路。 大峰路是一条小型商业设施街,被称为波尼团路,曾经是流动人口众多的街道,但现在由于公寓的再开发而人气下降。 在场地的后面,’Cheongwoon Mansion公寓大楼位于,偶然地,该场地面对公寓楼之间200米长的开阔视野。
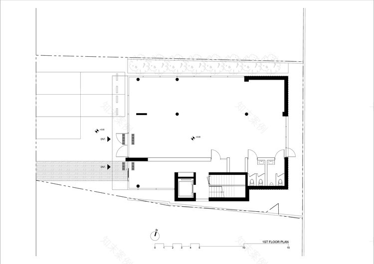
DK 公司一直使用一栋旧的单层房屋作为现场的当地分公司,但计划新建一座建筑以适应业务扩展以及通过出租较低楼层来盈利。 设计目标是表达公司的身份,同时避免由于场地位于住宅区而受到斜线限制的阶梯形式,以限制光的调节。 重点是阐明适合商业和工作空间项目的单一建筑。
缩进——整体体量朝主要街道方向缩进,以避免阶梯形状,但获得三维正面。 下层的商业空间表达了开放的线性水平板,而上层的办公空间则突出了公司的稳固性和身份。 顶层采用倾斜的屋顶桶形式,顶部视野开阔。 根据每个项目的特点形成的体积被认为是堆叠的形状,而不是层叠的形状。
在较低的部分,通过通高的窗户和面向主要街道的二层外部露台的开放性旨在营造与商业街连续的活跃氛围。 邻近的带有工具表面的栅栏环绕着一楼,营造出舒适的氛围。 在水平板的下层独立放置了一面卡拉卡塔大理石的垂直墙,以确保与前立面的比例感并分隔主要入口。
在用作工作区的上部,开口被最小化以表达与玻璃下部形成对比的前立面的坚固性,窗户和门被放置在与外部露台相连的一侧。 实体体积的外壳通过垂直排列的弯曲赤陶板精细地连接起来,创造出一种质感,柔和的弯曲阴影揭示了表面的丰富性。
来源: АrсhDаilу
客服
消息
收藏
下载
最近













