查看完整案例


收藏

下载
案例简介
Case description
该案房屋为三室精装房交付。
首次见到业主夫妻,感觉夫妻二人非常好,温文尔雅,我们沟通很是愉快~
在沟通中,了解夫妻二人对于想改造精装房主要是觉得精装房不够好,不能满足一些生活需求:房屋主要一家三口使用,家里老父母偶尔入住;业主一家很爱看书,家里需要很多放置书的位置,以及充足的阅读区;除了正常的主卧、儿童房,还需要书房、备用卧室、练琴房;厨房太小,不够摆放电器~
在设计中,我们针对业主需求进行层层推演,解决了需求,同时,设计感区别原有精装房,给业主的家打上了他们自己的烙印~
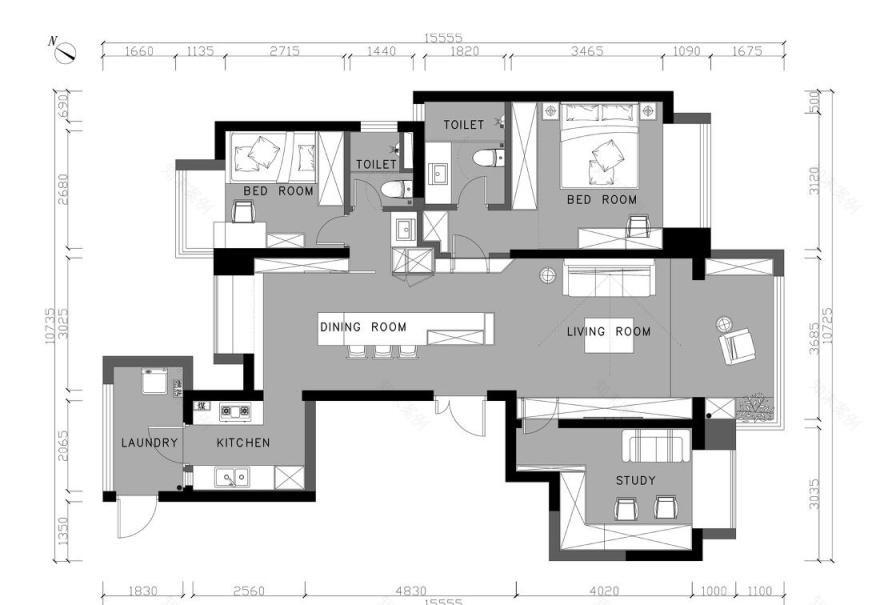
原始户型分析:
1、入户位置较堵。整个家不通透,被衣帽间把客厅餐厅分隔,动线比较弯绕;
2、厨房太小,因为精装房,业主也想保留原有厨房,来解决厨房小的问题;
3、两个卫生间不做改动;
4、客厅景观阳台很大,餐厅部也有窗户,但由于开发商建筑密集度较大,导致天光入户一般,再加衣帽间在中间,整个房屋主要动线区域采光较弱。
平面布置图解析:
1、通过户型优劣分析,和业主沟通后衣帽间较为多余,在设计中直接拆除,取消了衣帽间,餐厅、客厅连通一体,也提高了户型采光的通透性;
2、该小区一梯一户,电梯间很大空间也可自行使用,因此设计时鞋柜放置在入户门外;
3、餐厅区域,除了餐桌,一旁是设计了书柜,除了就餐,也是一家阅读、亲子活动的区域;
4、餐厅窗台做了橱柜,把原本厨房电器放置不足的电器移到厨房门口,该橱柜也是备餐柜;
5、平面图右下角房间,设计成为书房,除了固定的书柜书桌,还空余出放置沙发床的位置,偶尔做卧室使用,沙发床旁边,也预留放置电钢琴空间,书房同时兼具琴房使用。
客厅电视墙+阳台:
1、电视墙上做了大量收纳柜,顶上放置了投影幕布,电视和投影可以同时拥有~
2、阳台扩大了空间延伸到客厅,这是家里阳光最好的区域,可以放置休闲沙发、大桌子等,用作休闲、阅读、亲子活动区皆可,空间灵活多变,方便业主后期实际使用~
远看阳台,在设计上,用了一个套框的方式,弱化了原有的梁,也让地台像个框内的画,提高了空间的层次感~
客厅电视墙:做了大量收纳柜,投影在上部~
玄关:
1、入户可见的鞋柜,直接拆除,取消了衣帽间,餐厅、客厅连通一体,也提高了户型采光的通透性;
2、根据整体设计效果,入户门做了改色处理;
3、该小区一梯一户,电梯间很大空间也可自行使用,因此设计时鞋柜放置在入户门外。
餐厅:餐桌是定制悬浮在岛台和另一侧柜子上,让家里特别的点再多一点点~
餐厅:餐桌是定制悬浮在岛台和另一侧柜子上,让家里特别的点再多一点点~
餐桌另一侧柜子的开放格,临时放置物品的地方,也通透了视野~
餐厅:餐桌是定制悬浮在岛台和另一侧柜子上,让家里特别的点再多一点点~
餐厅电器放置柜:柜子在厨房门口,用了原本的飘窗,改造成了橱柜,用来放置厨房内放不下的电器,也是一个大大的餐边柜~
一张餐桌边开放格视角的图片,通过书架,看到这个小景,也是一种小美好~
厨房是精装房原有的,对这个空间改造,添加了左侧的黑色柜子,原来这个位置是给冰箱的,现在冰箱外移到餐厅,给厨房添加了洗碗机和蒸烤箱~
儿童房:
1、儿童房门口就是客卫,可以通过餐厅移门关上,形成一个带卫生间的套间;
2、房间较小,做了全屋定制柜,床下收纳柜,床头是衣柜叠放区和挂放区,同时也有床头柜的置物空间;
3、床尾对着是书柜、书桌~
儿童房:
1、儿童房门口就是客卫,可以通过餐厅移门关上,形成一个带卫生间的套间;
2、房间较小,做了全屋定制柜,床下收纳柜,床头是衣柜叠放区和挂放区,同时也有床头柜的置物空间;
3、床尾对着是书柜、书桌~
主卧室:主卧室较大,原来有衣帽间,通过户型优劣分析,和业主沟通后衣帽间较为多余,在设计中直接拆除,取消了衣帽间,餐厅、客厅连通一体,提高了户型公共区域采光的通透性;虽然拆除了衣帽间,但主卧的收纳空间还是相当充足,图片可见的深色大衣柜,门后一个白色大柜子,床尾也还有一组柜子~
儿童房书柜、书桌~
卫生间保留,没有做改动~门口洗面柜,因餐厅部分空间需要,缩小了原有尺寸,图2可见卫生间在移门后部~
床尾的柜子,兼容了梳妆台。因为衣柜是深柜(深度60CM),梳妆台上部吊柜,为了防止碰头,如图可见,做了两个厚度~
床头柜小景~
沙发,也是阅读的好地方。灯光一改传统的落地灯,选择在墙上,竖向安装轨磁吸道射灯,喜欢怎么照射,随意调整~
因为衣柜是深柜(深度60CM),梳妆台上部吊柜,为了防止碰头,如图可见,做了两个厚度~
阳台两侧,在可利用的空间,都定制了顶天立地的柜子,整面的柜子,好收纳,也和墙融为一体,降低了柜子带给空间的拥挤感~
沙发,也是阅读的好地方。灯光一改传统的落地灯,选择在墙上,竖向安装轨磁吸道射灯,喜欢怎么照射,随意调整~
书房:一个长条书桌,可以供2人同时使用~
后部预留了沙发床和电钢琴位置,提供练琴、做临时卧室使用。因为家具还没到位,没有拍照~
餐厅电器放置柜:柜子在厨房门口,用了原本的飘窗,改造成了橱柜,用来放置厨房内放不下的电器,也是一个大大的餐边柜~
餐桌后,是家里最大的一个书柜,通过移门,可以完全隐藏;做杯咖啡,拿本书,坐在餐桌边随意翻看,惬意生活很简单~
这张图是落日的抓拍,阳光太恰巧,从图2窗户百叶穿过窗边的植物,投到了沙发后,形成了光影的一幅挂画,很喜欢~
客服
消息
收藏
下载
最近


































