查看完整案例


收藏

下载
这是三世同堂的小班级,上小学的宝宝,60岁的爷爷奶奶,充满了活力。客厅的按摩椅就是为两位老人准备的。男屋主平时喜欢看大片,离不开投影仪;女屋主表示喜欢法式风格,但又不能太素。因为有孩子和老人,家里每天都会开火做饭。设计师就是班委,满足和平衡每个人的需求,比如六口人的收纳空间,超多的厨房家电等。
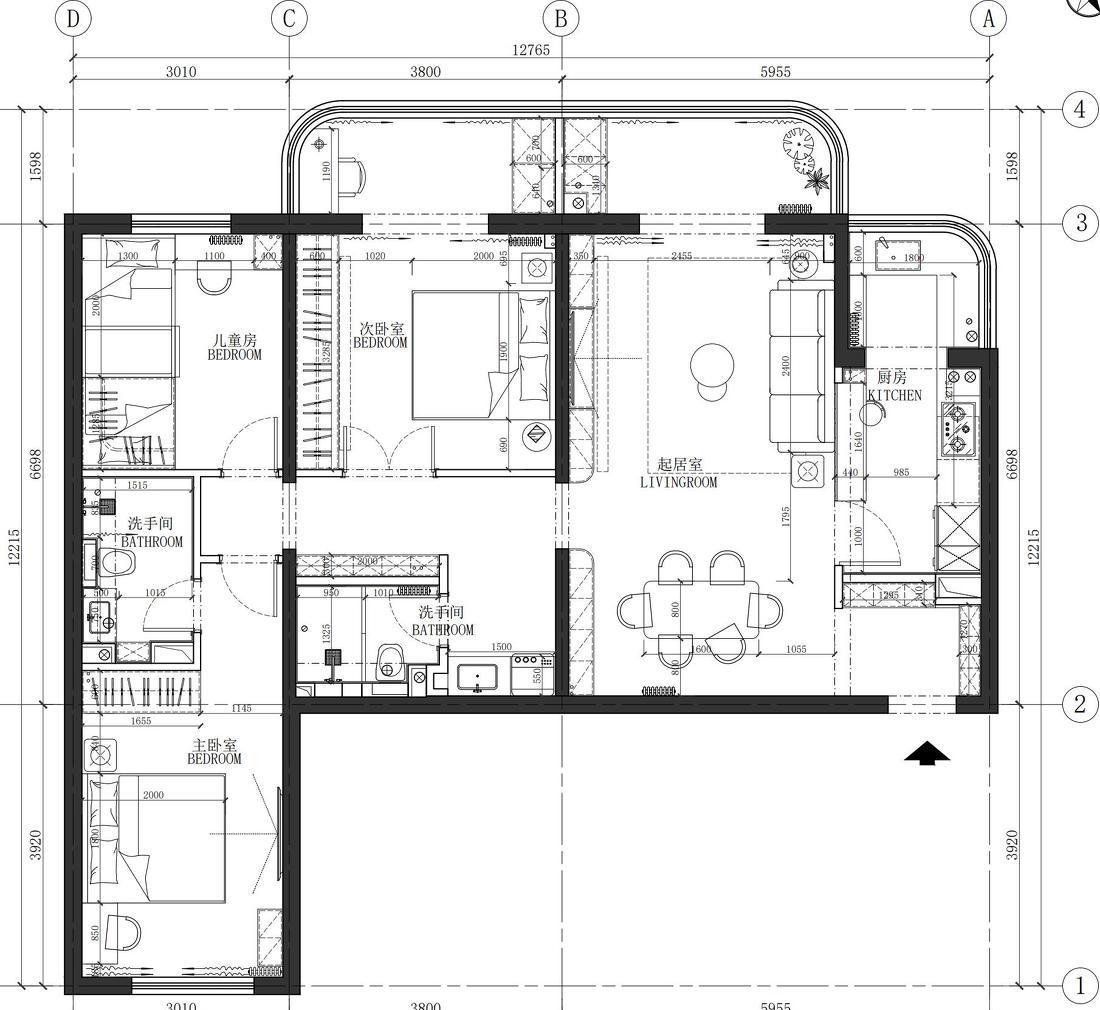
▌原始测绘图 _ Original Plan ░
原始户型的优点:动静区分离,采光好,
格局也ok,但也有几个可以优化的点:
▌墙体改造图 _ Walls Modification ░
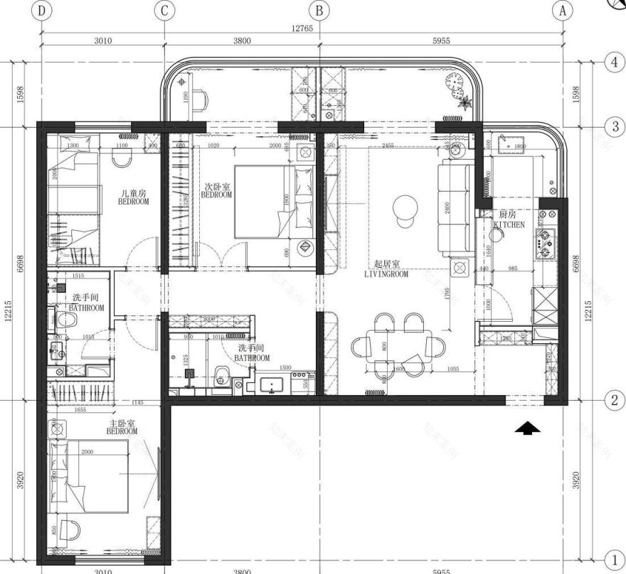
▌最终平面图 _ Final Floor Plan ░
格局改造亮点:
1、弱化狭长走廊。
原来走廊有5米长,宽度只有1米,看起来很狭长。两个方面去调整弱化:
一是走廊一侧的卧室做了双开门,满足仪式感;
二是将次卫门口做成开放式,与走廊公用,放置洗手池和洗衣柜。
2、厨房秒变开放式。
岛台分隔起居室与厨房,岛台之上安装折叠窗,这样关窗后厨房封闭还不会遮挡视线,打开窗就是开放式厨房能与家庭成员互动。
通过将厨房墙体内推,得到另一组鞋柜,组成一个方形门厅。
门厅配色统一。门厅柜门板通过混油将颜色与
墙漆颜色调为一致,连通门套的颜色,地砖的颜色,
最大程度上实现色彩一致。
柜门的样式以及法式把手,预示着空间的装饰风格。
木作颜色要想与墙漆颜色一致,一般的做法是:木作的颜色去追墙漆颜色。
需要先涂刷一块墙漆的色板(不小于30厘米见方的小块石膏板即可),送到木作厂家进行混油调色。木作厂调好色板后同样发回来由设计师检查确认,然后才能下单进行定制柜的生产。这样一来一回需要至少1个月的时间(可能会反复修改),所以打好时间富余量最关键,最好在刷墙漆(中期验收)之前完成色板的调漆工作。
两组门厅柜都用来放鞋。进门右手边的柜子距地20公分,方便放拖鞋;正对门的柜子中间留了开放格,用来放进门的随手物品。
柜体板:1.8公分厚实木颗粒板,柔白色。
柜门板:2公分厚造型门,密度板混油。
拉手:法式圆形拉手,法式长条拉手。
墙漆同色的石膏线按照传统法式的方式进行勾勒。
客餐厅家具也有着同样的设计语言:柔和、圆角、亲肤。
厨房的折叠窗,通过开合与起居室进行着“沟通”。
电视柜与餐边柜,负责将起居室的杂物收纳整齐。
柜子颜色同样与墙漆一致,但也有变化:墨绿色的开放格。
电视柜与餐边柜侧面都做了圆弧处理,相对应。
法式墙线,加上餐桌的石材质地,
配合有机玻璃的餐椅,还有圆形折纸的吊灯(Verpan),
都通过奶白色的墙漆,很自然的融合到一起。
餐椅的曲线,给方正的空间带来了变化与新意。
餐桌通过大幅度的倒角造型,极大得削弱了重量感。
柜体板:1.8公分厚实木颗粒板,柔白色。
柜门板:2公分厚平板门。
开门方式:反弹器。
阳台上放着老人专属的按摩椅,
可以边晒着太阳边看电视。
吊顶上开槽放了投影幕布。
墙面和顶面的石膏制品,
透露着法式气息。拉膜造型的灯,
很有宫殿范儿,
也与Natuzzi-Editions的沙发造型相呼应。
格度的单人扶手椅,
放到哪里都很俏皮可爱。
柜体板:1.8公分厚实木颗粒板,柔白色。
柜门板:2公分厚平板门。
跳色板:1.8公分厚密度板,混油调色:中古绿。
开门方式:反弹器。
客厅阳台柜做了底板掏空的处理,
这样可以将扫地机器人“隐藏”起来。
厨房占用阳台空间,安置洗菜池,
扩大了厨房面积,呈U型布局。
四联动的折叠窗+超白灯芯玻璃,
是厨房的一大亮点。在这之下的小吧台
承载着家庭成员之间的互动。
利用烟道前面的空间,做了调料柜,
也是厨房里的一个特色,使用起来很方便。
有了这个调料柜,整个厨房看起来更规整,丰富。
折叠窗宽度正好落在吧台上,不用担心会磕碰。
柜体板:1.8公分厚实木颗粒板,柔白色。
柜门板:2公分密度板混油,调色:中古绿色。
开门方式:拉手。
台面:岩板,大花白,1.5公分厚。
两组法式的角线相呼应。
原来的主卧让给老人住,
夫妻二人住在次卧。
双开门的设计让每晚的
入睡变得仪式感满满。
原来的门洞平移,让门口可以放下整面墙(3.3米)的衣柜。
当然,吊顶里也有男主心心念的投影幕。
人字铺的地板从客厅一直延申到各个卧室,整体感十足。
柜体板:1.8公分厚实木颗粒板,柔白色。
柜门板:2公分厚实木颗粒板,柔白色。
开门方式:拉手。
整个卧室非常温馨。
女主的化妆台安排到了阳台。
墙面用了双拼色,一冷一暖,
由法式的石膏线条相贯穿。
这种双拼色墙漆特别考验油工的功力,
需要用美纹纸保护一边然后仔细涂刷另一边,
最后还要保证两个颜色的交接线笔直而没有相互渗透。
9平米的儿童房面积有限,
而且有二胎计划,
因此上下床是最佳选择,
能最大化得利用空间。
儿童房俯视图。通过上下床错位,
不但给小朋友有了衣帽间,
还能放下书桌,而且两张床都有2米的长度。
用定制柜填满了两个
管道井之间的空挡,
做了一个侧面壁龛。
侧面的壁龛,能收纳起琳琅满目的洗漱用品,
让目光从正面看洗手池台面时,永远保持干净。
洗衣柜安排到了次卫门口,
与洗手池相连。
通过压缩次卫面积,
在走廊得到一组家政柜。
洗手池侧面用砖砌出了一个壁龛,
同样起到保持台面干净的效果。
浅绿色的砖墙给人非常干净的质感。
案例介绍完毕
▌总结 _ Case Summary ░
格局:
1、厨房秒变开放式。
2、通过双开门、开敞次卫洗手区,来弱化走廊的狭长感。
装饰:
1、通过点和线的方式来体现法式元素:石膏线条+精致把手。
2、奶白与中古绿的颜色搭配。
▌带尺寸的平面图 _ Final Layout with Dimension ░
▌设计师寄语_Designer Words ░
我们一直都在思考什么样的设计才是好设计。
设计的过程就是先跟沟通的过程,然后就是跟沟通的过程。
在沟通的过程中实现对预期设想。
没有100%完美无缺的装修,我们总觉得装修很难,总会遇到不同的问题,设计师就是在遇见各种问题时帮你理清思路,让你能果断做出选择的人。
一千个读者眼中有一千个哈姆雷特。我们没有好设计标准答案,但我相信房子居住人跟我们一起完成这一趟装修的旅程之后,什么是好的设计,他一定知道。
部分花费:
基础施工:15w
主材:55w
部分软装清单:
沙发:Natuzzi-Editions
餐桌:健步
餐椅:Rochebobois;Kartell;Vitra
床:番茄
单人沙发:格度
客厅主灯:Normann Copenhagen
餐厅灯:Verpan
主卧灯:By Rydens
次卧灯:Arturo Alvarez
儿童房灯:Paulmann
走廊壁灯:Catellani&Smith
客厅带轮边柜:Magis
次卧床头柜:Kartell
全屋墙面:佐敦漆 S0502-Y50R
主卧墙面蓝色:佐敦漆 NCS S 1510-R80B
~版权归作者JORYA玖雅所有
客服
消息
收藏
下载
最近




















































