查看完整案例


收藏

下载
这个家给我的第一印象就是素雅干净,想必屋主在房间里的心情也是很宁静的吧。每个房间都有一组柜子,柜门设计的好像不存在一样,把生活用品都藏在了背后。四面白墙任凭光影四时流转交替,成为了家最动人的风景。
▌原始测绘图 _ Original Plan ░
原始户型方正而且动静区分离,
唯二的美中不足是:厨卫门相对,
还有厨房距离原始的餐厅位置稍远。
▌墙体改造图 _ Walls Modification ░
▌最终平面图 _ Final Floor Plan ░
格局改造亮点:
1、两个餐厅
利用原来通往卧室的小走廊 + 缩进儿童房门 + 厨房的一半面积,
形成一个方形的小餐厅,同时也有西厨的功能
(有电器高柜和餐边柜)。在这里给小朋友每天做早餐和晚餐。
原来的餐厅,可以正餐使用也可以当作办公桌,方便开视频会议。
2、主卧室内规划出办公区
"借用"主卫空间,内嵌衣柜,
这样就能在主卧给屋主安排一张双人位办公桌。
从小餐厅看往门厅。
换鞋凳是一条2公分厚的隔板,
由于门厅柜的宽度是30公分,
而到了门边就只有12公分,
因此这条隔板是斜面的,
也刚好,给空间带来了一些
有趣的变化。
格局调整后,门厅就变成了一个
小型的交通枢纽:
进门左转到厨房做饭就餐,
直行进入起居室可以办公和休息娱乐。
门厅很简单利索,
进门的所有物品都由旁边30公分厚的
满墙门厅柜来收纳整齐。
门厅柜分上下两部分,下部分放鞋,
很贴心的把最底下一格设计成27公分高,
用来放靴子,其余格子的高度是15公分左右。
柜体离地20公分,放拖鞋。上部分放换季节的鞋。
上下柜子间留了33公分的空挡,用来放随手物品。
其实这个门厅柜与客厅柜是连为一体的,
由一组弧形柜来衔接,足有10米长。
从这个角度看,一体感很强。
其实门厅柜和电视柜的厚度是不一样的,
门厅柜30公分,电视柜40公分,
也是靠这个弧形柜来顺滑过渡。
延申而来的电视柜。
新隔出来的小餐厅很方正。
通往厨房的门用了玻璃材质,
为小餐厅采光。旁边的白色门通往儿童房。
右边通往次卫,特意选用了推拉门样式。
别看餐厅小,配置可很高。
一整面的高柜内嵌了冰箱,
蒸烤箱,妥妥的高配西厨。
西厨柜尺寸详解图。由于这里原来是厨房,
所以有很多管道没法改动,
但通过定制柜包了起来,
看起来整体感很强。
小餐厅由卡座和一把独立椅子,
外加一张小圆桌组成,坐两三个人都很轻松。
征用原来的阳台给了厨房,
这样橱柜就能做L型,使用效率更高。
橱柜尺寸详解图。
麻雀虽小,五脏俱全。
次卫
推拉门变成一种装饰。推拉门其实就是普通的推拉门,但有两点让它变得不普通。第一,轨道隐藏到吊顶里,从正面看不到五金件。第二,门是一整块3.6公分厚的实心板,然后贴木纹饰面,质感很棒,而且没有把手,让人看不出是一道门。远看过去更像是一面装饰墙。
次卫内部实景
儿童房实景
把儿童房门内推,让出空间给小餐厅,
这样既能保证小餐厅是方形的,
还能让衣柜与门平齐,视觉上更整体。
进门直走先到餐厅。餐边柜侧面也是弧形,
一方面跟门厅柜的弧形转角呼应,另一方面,
也跟客厅阳台的垭口相对称,设计语言得以延续。
餐边柜同样离地20公分,方便扫地机器人进出。
餐椅四把有一把不同。
藤编的座椅久坐更舒适,适合办公用。
墙漆选用了浅暖灰色,
与定制柜的白色和地板的木色
都能很好的搭配。客厅家具也都是细腿、
薄扶手,力求从视觉上给人轻盈感,不拥堵。
墙漆色号
皮质与木质,一直都是最和谐的配搭。
客厅柜与地面也有“交流”。
底部的5组橡木抽屉与地板的花色接近,
而且旁边的开放展示格也同样用了木色,
视觉上过渡自然。
客厅柜尺寸详解图。客厅柜的分格也是
根据业主的收纳习惯而量身定制。
底部的有60公分高,用来放大件,
中部和上部分格,控制在30公分左右的高度,
用来收纳书籍,杂物正合适。
客厅一角。
主卧衣柜内嵌到墙体里,
主卫门连通柜门做成整体,
统一由白色饰面板覆盖。
最里侧的一组柜子开门不是很方便,
设计成了上下两扇柜门。
主卧定制柜详解图。亮点:
一是把主卫门连通主卧衣柜定制到一起,
二是床头板把书桌和衣柜连接到了一起。
床头板的分割缝需要跟定制厂家特别交代,
千万不能出现在床中间,需要安排在一侧。
也正是衣柜“借用”了主卫的空间,
才让主卧有了一组双人位的办公桌,
解决了屋主二人同时需要视频会议的安静需求。
主卫实景
▌案例总结 _ Case Summary ░
格局:
1、新建小餐厅。征用原来厨房+过道+儿童房门内推,形成一个小餐厅+西厨的空间。
2、借用主卫面积内嵌衣柜,让主卧有了一张双人位办公桌。
装饰:
1、收纳。门厅柜与客厅柜连为一体,足有10米长。
每一个屋子都有一面收纳柜,都是内嵌,整体而简洁。
2、简洁明亮的装饰风格。灰白色墙漆+白色柜体+木质地板,本案的设计特色。
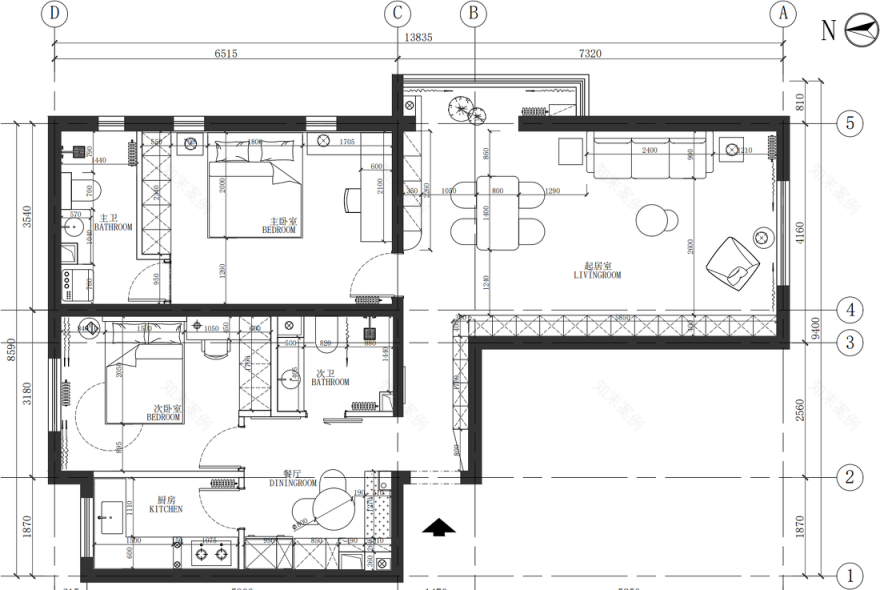
▌带尺寸的平面图 _ Final Layout with Dimension ░
▌预算与采购清单 _ Budget and Shopping list ░
设计机构丨JORYA玖雅
设计师丨筱蒙
摄影师丨查苏
设计面积丨86㎡
房屋位置丨北京朝阳区百子湾家园
户型丨2室3厅2卫
工长:王玉山
监理:刘增
主材搭配师:温杰
部分花费:
基础施工:11.5w
部分主材:30w
(中央空调2.5w;窗户:4.6w;暖气:2.1w;瓷砖:2.6w;定制柜:12w;门:1.6w;防盗门:0.4w;美缝:0.4w;石材:0.25w)
部分软装:
餐桌椅:泡沫小敏
次卧床:原始原素
装饰画:若奈犀牛
版权归作者JORYA玖雅所有
客服
消息
收藏
下载
最近













































