查看完整案例


收藏

下载
Glass & Plate是重庆新晋的一家提供全时段西式餐饮和精酿啤酒的西餐厅。餐厅落地在有重庆“小曼谷”之称的黄泥磅社区紫薇路上,以日常餐具“杯子”和“盘子”单词组合命名。空间由Geemo Design负责设计。我们期待以平凡、质朴的设计语言来营造出餐厅亲切和日常的氛围感,而非一味的追求商业味道。
▼外观
以谷仓为参考抽象出的几何门头在序列组合的落地窗中显得别致,给餐厅稳重的外立面增添一些趣味,成为视觉传播中的标志性记忆。表皮使用黑色烧杉木与天然质感水刷石,色泽质朴、坚固耐久。绿植被种植在从室内延伸而出的地台上,似一道“透明”的边界。身临其境,好似一处街边亲密的烹饪花园。
▼以谷仓为参考抽象出的几何门头
面包房里的烘焙故事透过谷仓的横向条窗娓娓道来。黑色烧杉木从室外贯穿至室内,形成的独立体块容纳咖啡、面包吧台和厨房。
▼黑色烧杉木从室外贯穿至室内
客人从一扇朴素的大门进入餐厅,踏进经打磨显现出清晰的自然纹理的石材地面。入口吧台设置咖啡和面包售卖区,方便堂食客人选购的同时亦可作为外带打包服务的补充。
▼入口吧台
▼室内空间
半开放式明档让厨师成为制作美食的表演者,充满烟火气的每一道佳肴都透过玻璃将强大的能量释放到各个空间。厨师能够感知到餐厅内场情况,同时也可以让每一位客人了解到发生在厨房幕后的故事。
▼半开放式明档
不同功能划分的盒子相互咬合重叠产生新的空间层次,中部留出的挑高区在紧凑中融入一份轻松。红砖半墙在挑高用餐区的分隔增加公共用餐区的私密感。手工藤条编织的吊灯自然悬挂,为这个亲密的烹饪花园餐厅带来一份浪漫。
▼从二层看挑高用餐区
由天然实木铺设的天花板和墙壁沿着空间蔓延开来,客人围坐在温馨木调的环境中,通过通透的立面落地窗与街道展开对望。
▼卡座用餐区
▼精酿吧台
▼挖空体块满足空间的立体感
▼看向储酒室
设计的核心想法把餐厅的各个功能进行分解,然后将它们组织成一系列独立但相互连接的空间。每个部分都根据使用者的需求进行调整。精酿吧台和储酒室以体块挖空的方式满足空间的立体感。悬浮在半空中的储酒室,透过大面积的玻璃将造价昂贵的储酒设备展示的一览无余。
▼卡座用餐区细部
▼楼梯通向二层空间
二层用餐空间更为私密和灵活,可以调整为聚会包场。
▼二层用餐空间
▼空间细部
我们借助住宅的舒适性而非常规的商业空间思考,通过天然的材料和手工制作来营造Glass&Plate餐厅的归宿感和亲切感。当顾客在餐厅用餐时,能够感受在这名为Glass&Plate的自家餐桌用餐的独特氛围。
▼挑高用餐区细部
▼门头细部
▼施工图现场
▼二层平面图
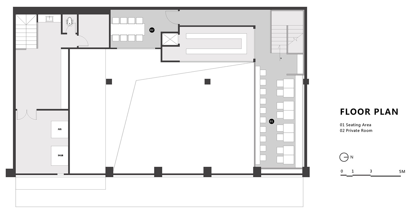
▼首层平面图
项目名称:Glass&Plate
设计公司:Geemo Design 治木设计
设计团队:石朝思、易毅、唐爽、向立
项目地址:中国 重庆
主要材料:石材、红砖、涂料、木料
完工时间:2021.05
项目面积:400平方米
摄影团队:偏方摄影
客服
消息
收藏
下载
最近









































