查看完整案例

收藏

下载
案例简介
Case description
■这是一套顶楼平层住宅
■常住人口夫妻两人与4岁小男孩
■男女业主从事建筑相关工作
■经历了第一次的疫情宅家生活状态的困扰
(由于空间小,三代人一块居住,生活起居各方面紧张;小孩正是喜动、爱玩、爱闹的时候,影响各自的生活状态)
因此置换了此套房,男女业主对生活的方式有了反思与改变:希望家不仅仅能承载基本的居住功能,更希望通过改变空间状态,去调节宅家后家人之间的居住关系;希望空间多元化,开放、简单、明亮
■居住性质:
学区房 改善型住房
■业主需求:
❶需考虑主卧、儿童房、客房(两老人接送小孩上学,有自己的居住的房子,但偶尔会过来住)
❷希望储物空间多,有衣帽间,杂物间,空间利用率高,比如外门厅区域及阳台能够利用起来
❸希望室外光线能够充分进入室内,解决室内空间整体光线不足的缺陷
❹女业主喜欢烘培,希望能有中西厨,厨房尽量大
❺女业主喜欢养花,男业主平时希望养鸟,儿子四岁,喜欢在家里各个小角落玩耍,希望家的包容度度够大能有开放性、交互性,在家能够放松心情,有更多共同的生活场景画面,增进情感交流
❻因为一楼只有一个卫生间,希望卫生间功能性强且能够保证人多的时侯使用起来不互相冲突
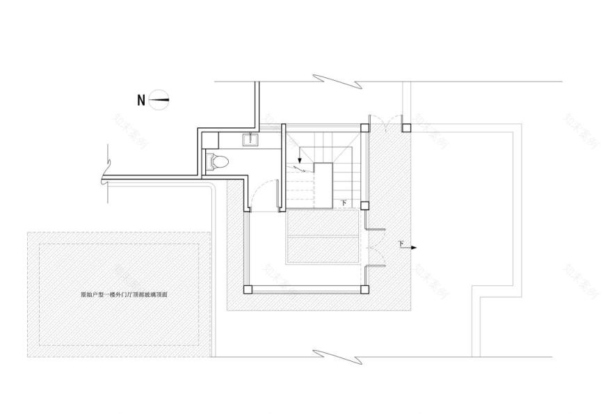
■外门厅过于冗长且对外,利用率不高
■原始入户外门厅面积比较大,挑高空间
■挑高上方盖的玻璃顶棚
■外门厅包含每层楼互通共用的采光井,只有栏杆 相隔且不能单独封采光井,因此存在安全隐患 ,需要通过设计去解决这一方面问题
■原始餐厅区域,因受四方动线上的限制,显得格外狭小,餐厅不方便布局
■室内无楼梯上楼顶
■客厅旁露天空间,无顶棚,有安全隐患
■露天区墙体与室内梁结构交界处有明显贯通裂纹,需要在后期施工过程中有效解决
■由于室内墙体的分割,多处空间光线被遮挡,整体进入室内空间光线不足,偏暗
■只有一个卫生间空间,距离卧室的动线较远,不是很方便❶由于室内墙体的分割,多处空间光线被遮挡,整体进入室内空间光线不足,偏暗
■只有一个卫生间空间,距离卧室的动线较远,不是很方便
■客厅露天阳台尺度较大,利用率低
■靠阳台的卧室面积尺度与窗户都较小
光线到达卧室率较低
楼顶空间尺度大,但受物业限制只能搭建室内露天上空外延300mm区域及一楼卫生间对应上方区域
设计概念及解决方式:
❶通过改造墙体,调整各区域尺度,扩大空间利用率,完善功能,建立开放性的亲子居家空间。
❷引光入室
▼入户玄关,餐厅,厨房区引入顶光
▼儿童房玩耍区通过封窗,大玻璃顶引入侧光及顶光
▼二楼顶面搭建区预留玻璃顶引入顶光,侧面四周通过封玻璃窗引入侧光
▼二楼地面搭建玻璃栈道,设计悬浮楼梯,让光尽量多的洒进室内
▼卫生间通过新建墙体留出洞口,设计透光不透明玻璃隔断,把光线引进卫生间
❸动线优化
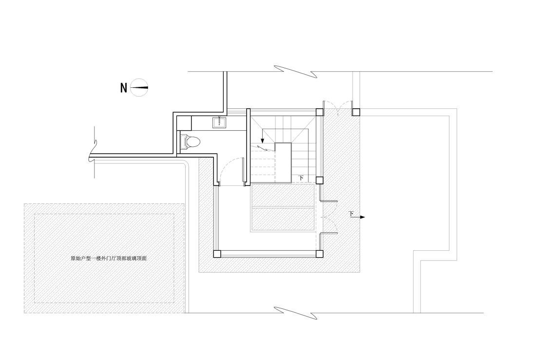
▼餐厅区域设计洄游动线儿童房设计洄游动线
▼室内增设楼梯区上二楼空间;卫生间设计四分离(洗漱、小便、大厕、淋浴四分离)
❹增加居住趣味性
▼过道区置入不规则木盒
▼儿童房设计游乐设施
▼设计悬浮楼梯,梯步地台区构建儿童玩耍角落
❺通过悬浮、叠加、穿插、延续让空间连贯有力量
❻利用原始梁结构构建空间体块,强化梁结构,增加视觉冲击力,营造“房子中的房子”建筑画面感。
■以共用天井边沿作为封窗分界线,在原始挑高玻璃顶下方重新封玻璃顶
■原始外门厅区安装入户防盗门,把外门厅融进室内,利用空间,建立多功能区域:设计鞋柜区、工具收纳区、杂物区、锅炉、气表设备区…..
梯步叠块与柜子结构融合成整体
■内门厅利用原始结构柱,通过岛台叠加形成新的整体,划分出入户中心线,中心线两侧为进入室内空间双动线,形成餐桌、岛台为中心区的洄游动线
■空间形体叠加、延续与穿透
▼沙发背部顶面吊顶木饰面的延伸与楼梯材质交相呼应,顶部黑色风口顺应吊顶体块,拉伸左右空间
▼沙发墙黑色不锈钢设计装置线条,贯穿客厅与楼梯墙面
▼加宽前两步梯步采用石材造型,左方延伸至盥洗区,右方延伸至沙发侧面,石材体块与木质台板叠加,形成简单的装置边几
▼餐厅梁结构强化,加宽尺寸贯穿整个客餐厅区域,通过弧形吊顶过渡、柔化梁体侧面,光影的遮挡,梁侧面形成光影渐变,虚实间更具建筑魅力
▼通过电视高低柜的细节处理,与墙顶穿插融合,丰富的前后层次,高低结构,就像太极拳法中“柔中带刚,刚中带柔,刚柔并济”
精致的细节处理去丰富空间留白区
把握空间之间的虚实变化
营造干净、安静的居住氛围
■设计“长线条”体块
▼餐厅区设计岛台与餐桌于一体
▼餐桌上方定做转角长形磁吸灯
▼顶上梁位作为视觉中心点,贯穿客餐厅空间
■功能完善
厨房橱柜形体转角至餐厅区,设计冰箱柜及西厨操作区
■设计手法的延续让空间连贯有秩序
■一楼只有一个卫生间,把洗漱区外置,卫生间内马桶区,淋浴区与小便池分别独立,这样能保证家庭人员使用上的拥挤情况,提高生活效率
■浴室柜与侧板相连,整体悬空,让形体体量更轻盈,地面木地板与砖在统一水平面硬碰收口,同时也保证了扫地机器人的可达性
■楼梯与盥洗区通过悬浮储藏柜(钢架基础)建立空间关系,隔而不隔
■悬空柜使用仿石材灰色柜板,与墙地面灰色砖及楼梯石材融合成一整体
■设计开放式U形厨房,增大操作空间与储物量
■光线通过入户顶部光的进入,厨房整体亮度得到极大地改善
■过道区置入木盒,三个卧室门隐形与木盒中,增加空间神秘感与空间趣味性
■通过界域的界定,满足小孩玩耍的空间归属感
■顶面设计斜面顶与木盒斜面相呼应,以不规则形体的设计去打破空间常规形态
■为了让悬浮楼梯达到最佳的悬浮效果,通过设计手法把二楼光线尽量多的引入室内空间,补充室内光线的同时,让楼梯更具立体、悬浮、轻盈
■原卫生间是暗卫,前期焊楼梯钢架时考虑了预留两处采光孔位,通过透光不透明玻璃隔断保证隐私的同时把自然光引进卫生间
■楼梯侧面做玻璃扶手,光影折射,虚实相间
■木质楼梯梯步与石材梯步平台形成三角区域,也正是小孩独自爱呆在那玩耍的“舞台”,光穿过悬空梯步形成光影,成了更有趣的“舞台光”
■二楼搭建区域有限,室内空间设计休闲区与卫生间
■设计玻璃栈道区,创造不一样的生活场景画面。小孩坐在玻璃上玩耍,父母在楼下也能进行观察与互动
■二楼顶部留出两处玻璃顶,对室内光线进行更强的补充,玻璃栈道成了“舞台”中心,天光正是“舞台自然灯光”随着天气的变化与时间的推移,呈现不一样的“舞台效果”
主卧以柔和的色调营造简洁、干净的卧室居住氛围
床侧面设计衣帽间,床尾通过墙体结构改造,设计整排衣柜,扩大收纳量
■儿童房把阳台融入室内空间,设计独立玩耍区
■创造“生活场景”
儿童攀爬墙、攀爬梯🪜、洞洞板、开放收纳格的融合,在光的介入下,惬意、自然
■框景概念
客服
消息
收藏
下载
最近












































