查看完整案例

收藏

下载
案例简介
Case description
本案是平层,格局方正,采光充裕,从生活小事带来的微妙情绪中汲取灵感,糅合现代主义的设计精神,打造疏朗自在的栖居体感,利用大色块讲述平面转化为立体的层次感美学,借客厅的“迴游动线”表达细水流长的生活态度。
日子只需用心,就能过得与众不同、有滋有味。在暖融且明亮的世界,感知情愫:在初春裹上一张薄毯,窝于沙发静静阅读;在酷暑,调制一杯冰柠茶或酸梅汤,追剧时慢饮;到了秋季,打开灶火,炖煮一碗冰糖雪梨,与爱的人分享甜蜜;到冬季,我们一起吃羊肉火锅~
本案是平层,格局方正,采光充裕,从生活小事带来的微妙情绪中汲取灵感,糅合现代主义的设计精神,打造疏朗自在的栖居体感,利用大色块讲述平面转化为立体的层次感美学,借客厅的“迴游动线”表达细水流长的生活态度。
浅色调以哑光质感描摹简约格调,注入石材的温润气质,碰撞跃动的火光,更为强烈地烘托起温馨而居的生活场景。穿插布艺的柔软感,以冷暖色温悄然合围出整体空间的形态,舒缓肌理平衡了跳色的热情,塑造出恰到好处的艺术气质。
云翳演绎着白天的故事,星辰启迪着夜晚的思绪,侧栏倚靠,景致与物件组成的序列感,带来了美好的视觉享受,渐次渲染了氛围。多重设计手法汇于一处,用理性的利落感,衬托自由洒脱的想象力,让人与自然、艺术共舞。
思维蓝图以隐逸之势折叠空间,划分不同功能区,创造和谐的互动,用极致的简洁、优雅、舒畅布局,通过美学张力解决功能与风情共存一体的矛盾,带着自然法则的奥妙,为生活的仪式感作序。
以恰当的比例分配黑白灰底色,引入各式各样的细腻纹样,撩拨美食空间的生命力,勾画出西厨的浪漫情态。延伸板块,分隔主次,打通闭塞尺度,设置暗色推拉门,将精致美感过渡至烟火世界。
根据马斯洛的层次需求理论,考察居住者的生活习惯,由浅入深,布置富有安全感、惬意感、舒适感的休憩环境。疏密条纹拥抱优雅色调,于毗邻界面间展开静雅享受,空间兼具收纳性能与美学惊喜。
冷灰基调保持着清隽气息,颇具脱俗之感,甄选透明单椅强化了姿态的轻灵,在留白的场域呈现虚实意境,空间内萦绕着渴望的安然。
有人说,最伟大的叛逆就是人类的创造力,深以为然。静观狭长的空间,凭借光滑质感和温暖饰面稳定纷繁的视觉效果,唤醒内心的愉悦感与满足感。
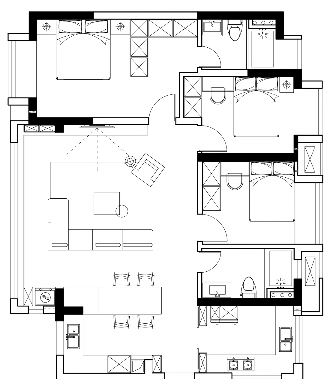
平面布置图
客服
消息
收藏
下载
最近


























