查看完整案例

收藏

下载
案例简介
Case description
当硬和软结合,会碰撞出怎样的火花呢?本案业主是一对很幸福的新婚夫妻,初见时女业主给我的印象 一位温柔的女孩,男业主 硬朗的男生。沟通过程中了解到女孩喜欢弧形元素,男孩喜欢线条结构、硬朗的材质及深色的元素,于是有了我们本案的呈现。
厨房+吧台的组合
在主卧楼板做了玻璃栈道的设计 多引入光
开放厨房 墙面 柜体 地面 不同材质定制了同一个色系
餐厅餐桌与橱柜结合 满足就餐 也可以当操作台使用
客厅角度
项目中多以弧形元素呈现 如:吊顶 钢结构 玻璃 墙面结构
材质上结构部分用白色凸显 配合微水泥材质
电视墙结合玄关立柱造型 电视柜悬挂的设计
通往二楼的楼梯我们利用楼梯下空间解决部分储物功能 楼梯左侧柜子中洗衣机烘干机隐藏其中
线性灯减弱原墙体突出的问题
入户玄关的立柱结构造型 这里有我们细节处理把楼板钢结构承重立柱隐藏其中
线性灯增加氛围感
客厅看玄关
入户门喷漆改色处理
主卧门做了墙内推拉门+弧形门梁设计室内窗也相呼应
主卧室
床头区域 结合原户型结构及管道 我们延续了弧形结构处理
客厅沙发区结合了户型的飘窗结构 可以把更多空间释放给活动区域 沙发垫也特意做了皮艺定制
二楼的层板跟隔墙结构也做了
主卧 玻璃隔断也根据弧形结构做了异形处理
主卧看二层开放区域
屋主的衣帽储物功能 分别都设计在二层的开放区域中
卧室区域隔墙上做了室内窗 给二层开放区域引入采光
步入二层 开放式书房
悬挂书桌的设计 长度满足屋主两人同时使用
二层入口异形结构的延伸 使动线流畅开放书房与户型二层附赠的阳台区域也有互动
二层多功能阳台
原本是户型的附赠面积
在这个区域我们结合了储物及临时客卧功能
二层入口的异形造型结合
户型层高并不高 在楼梯的位置上 对应吊顶位置也做的四分之一弧的造型 留出上楼的高度
异形结构 材质 光影
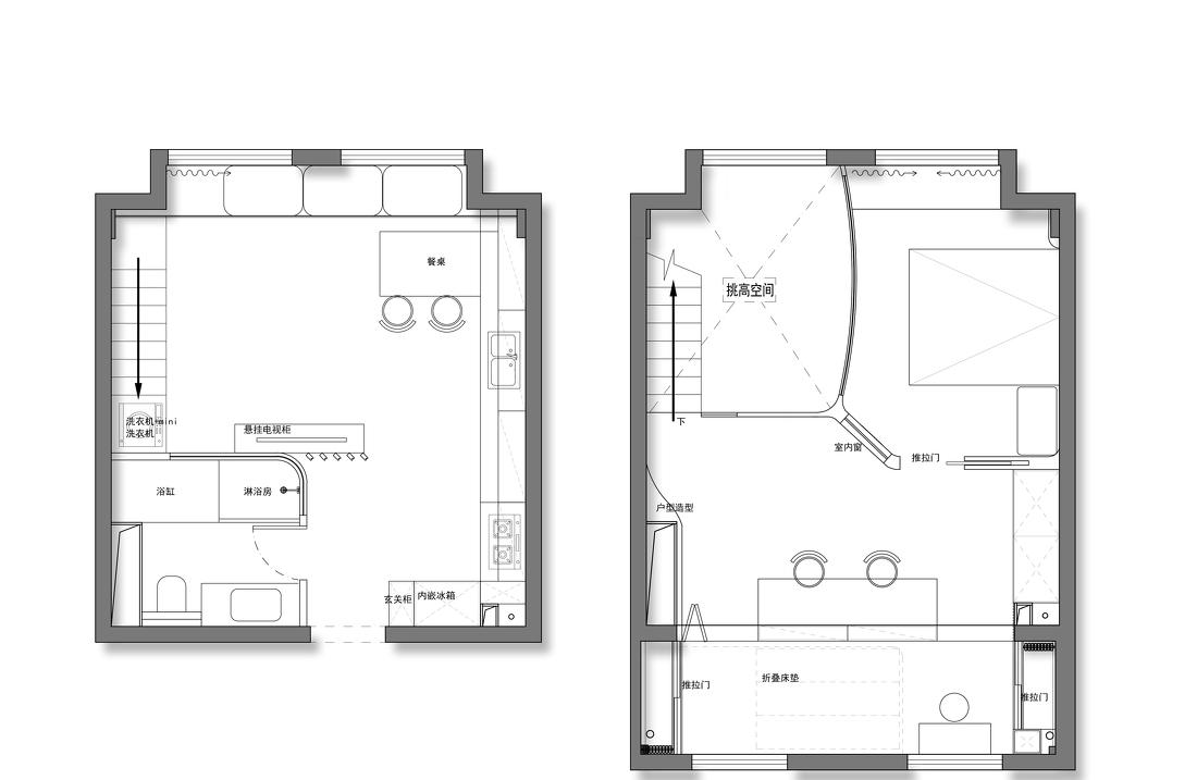
平面布局
结合飘窗结构 做了沙发区域延伸到餐桌位置
玄关位置立柱造型结合了钢结构承重柱
二层弧形结构延续
二层阳台与开放书房的联动设计
原始户型
1.优势户型开敞
2.劣势loft层高较低
卫生间
在顶部做了弧形室内窗 为暗卫引入光源
客服
消息
收藏
下载
最近























