查看完整案例


收藏

下载
案例简介
Case description
居所是温暖瞬间的永恒承载
记录了关于家
关于爱的记忆
而设计
是相对永恒跨度的瞬间艺术
序言
—
THE PREFACE
居所是温暖瞬间的永恒承载
记录了关于家
关于爱的记忆
而设计
是相对永恒跨度的瞬间艺术
The dwelling is the eternal bearer of warm moments, recording memories of home and love. Design is a relatively eternal span of instantaneous art.
/
◔
/
01.
客厅&The sitting room
/
空间设计以“瞬间的永恒定格永恒的瞬间”为灵感来源,结合精简专奢的现代设计语言,将家的温情倾注于细致雕琢的每个细节,匠心构筑一个高端品质人居的理想国。是家,让每个流动的人生,有了一瞬永恒的光晕和温情。
The space design is inspired by "the eternity of the moment, the eternity of the moment". Combined with the modern design language of simplicity and luxury, the warmth of home is poured into every detail of meticulous carving, and the ingenuity builds an ideal land of high-end quality living. Is home, let each flow of life, there is a moment of eternal halo and warmth.
—
客厅以挑空层高设计,叙述出空灵旷雅的视觉感官体验。大理石纹理清晰自然,艺术挂画以流动之势打破桎梏,色彩的搭配层次感十足,强调点睛之美。叮当碰撞的灯饰打造一幅翡色之空的唯美画面,循光而下,浅木色与米色的家具为空间增添十足的温润简雅的艺术氛围。
The sitting room is designed in order to carry empty layer height, narrating the visual sense sense experience that gives empty spirit kuang elegant. The marble texture is clear and natural, and the artistic hanging painting breaks the shackles with the potential of flow. The color collocation and layering sense are full, emphasizing the beauty of the eye.
02.
餐厨&The restaurant
/
餐厅旨在营造温润宁谧的至臻雅境,温馨舒适的就餐环境给予居者安定之气,阳光透过百叶窗洒进室内,光与几何交错,形成无形的线条,勾勒出不俗的格调之美。
The restaurant aims to create a warm and quiet quiet to achieve elegant environment, warm and comfortable dining environment to give residents peace of mind, sunlight through the shutters into the room, light and geometry interlacing, forming invisible lines, outline the beauty of common style.
—
黑色是沉稳的,亦是充满无限创造与想象的。厨房采用大量哑光墨色进行渲染,高雅大气的同时不失成熟风韵。与客餐厅相连的大理石瓷砖进行地面铺陈,消弭不同功能空间的界限,视觉上更为简洁明雅。
Black is composed, is also full of infinite creation and imagination. The kitchen uses a lot of matte ink to undertake rendering, elegant atmosphere does not break mature charm at the same time. The marble tiles connected with the guest restaurant pave the ground, eliminate the boundaries of different functional Spaces, and visually more concise and elegant.
03.
走廊&The corridor
/
挖掘艺术与自然中的美学要素融于家居生活,空间呈现出极富质感与格调的生活艺术美学。艺术装置品不沿袭常态,打破常规的风貌展现别具一格,空间打造出脱俗的艺术美感。
Excavate the aesthetic elements of art and nature into home life, and the space presents the aesthetics of life art with rich texture and style. Art installations do not follow the normal, break the conventional style to show a unique style, space to create a refined artistic beauty.
04.
主卧&Master bedroom
/
主卧整体风格以时尚简约为主,现代感气息扑面而来。空间在注重极致舒适的人文感受的同时,诗意的情调蕴藏在汇聚巧思的细节之处。色彩搭配和谐统一,橘色作为点缀色,活力十足又不显张扬,演绎得恰到好处。
Advocate lie integral style is given priority to with vogue and contracted, while paying attention to acme comfortable humanities experience, poetic emotional appeal contains the place that gathers the detail that thinks opportunely. Colour collocation is harmonious and unified, orange serves as ornament color, vitality is dyed-in and does not show make public again, deduce properly.
—
衣帽间与主卧风格统一,功能分区明显。半透明黑色柜门隐而不密,氛围感拉满。
Cloakroom and advocate lie style is united, functional partition is apparent. Translucent black cupboard door is hidden and not close, atmosphere feels to pull full.
05.
次卧&Second lie
/
次卧空间整体风格雅致非常,一株绿植点亮空间的生命活力。柔软的寝具,精致小巧的艺术照明,营造舒适慵懒的空间氛围,让卧室尽情展现亲和放松的一面。
The overall style of the second bedroom space is very elegant, and a plant lights up the vitality of the space. Soft bedding, delicate and compact artistic lighting, create a comfortable and lazy space atmosphere, let the bedroom to show the side of affinity and relaxation.
06.
儿童房&Children room
/
儿童具有丰富多样的想象力与创造力。女孩房通过对色彩的搭配,重在营造天真明媚的空间氛围。男孩房则以蓝色为主,不同饱和度的色彩赋予空间不一样的视觉语言,冷静沉稳又不失创造力与童真,陪伴孩子健康快乐的成长。
Children have rich and varied imagination and creativity. Girl room passes pair of colorific collocation, the dimensional atmosphere that builds innocent beautiful is heavy. The boy room is mainly blue, different saturation color gives the space different visual language, calm and calm do not lose creativity and innocence, accompany children healthy and happy growth.
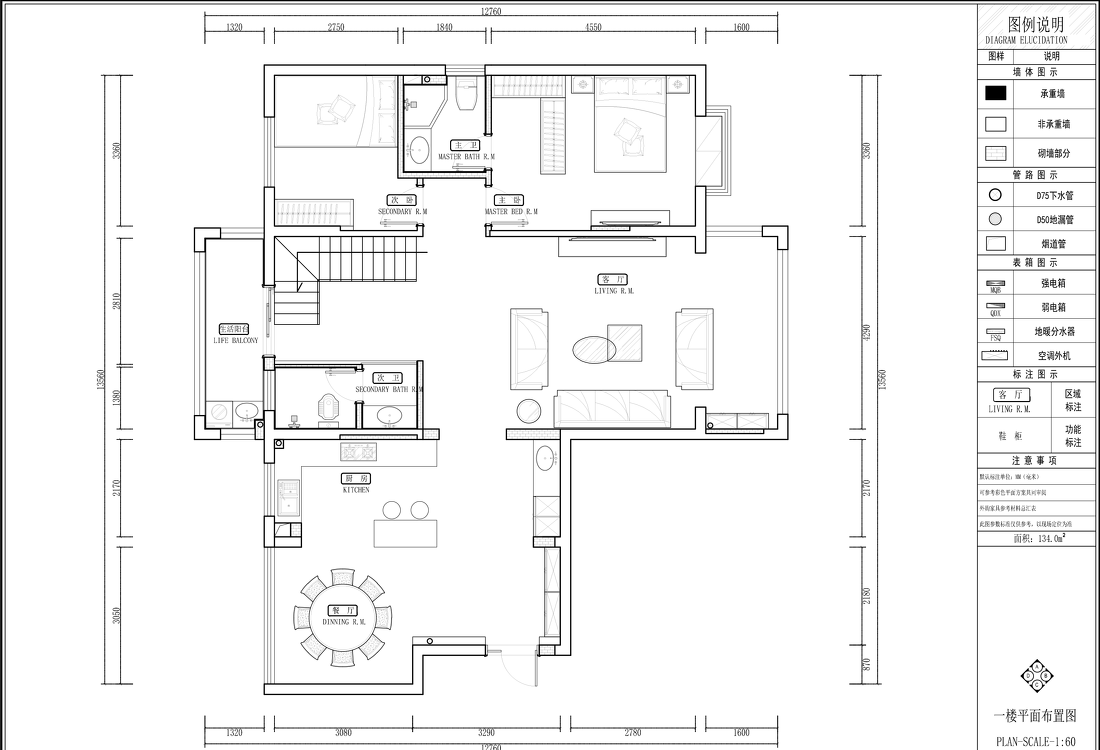
平面设计图 | GRAPHIC PLAN
PROJECT INTRODUCTION
—
项目名称|水岸豪庭复式大宅
Project Title | Waterfront grand compound mansion
项目类型|高端私宅
Type of project | High-end homes
项目面积|266㎡
Project area | 266㎡
项目地址|郴州资兴
Project Address | Chenzhou endowment xing
软装设计|米洛映象
Soft decoration design | Millo Casa
硬装设计|三维雅筑
Hard installation design | 3 d building
完工时间|2021
Time of completion | 2021
客服
消息
收藏
下载
最近

























