查看完整案例

收藏

下载
案例简介
Case description
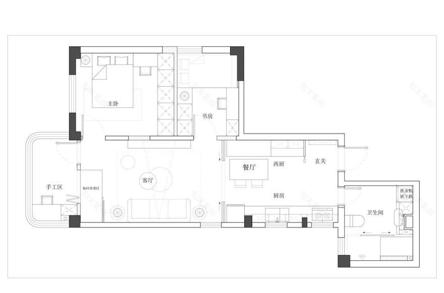
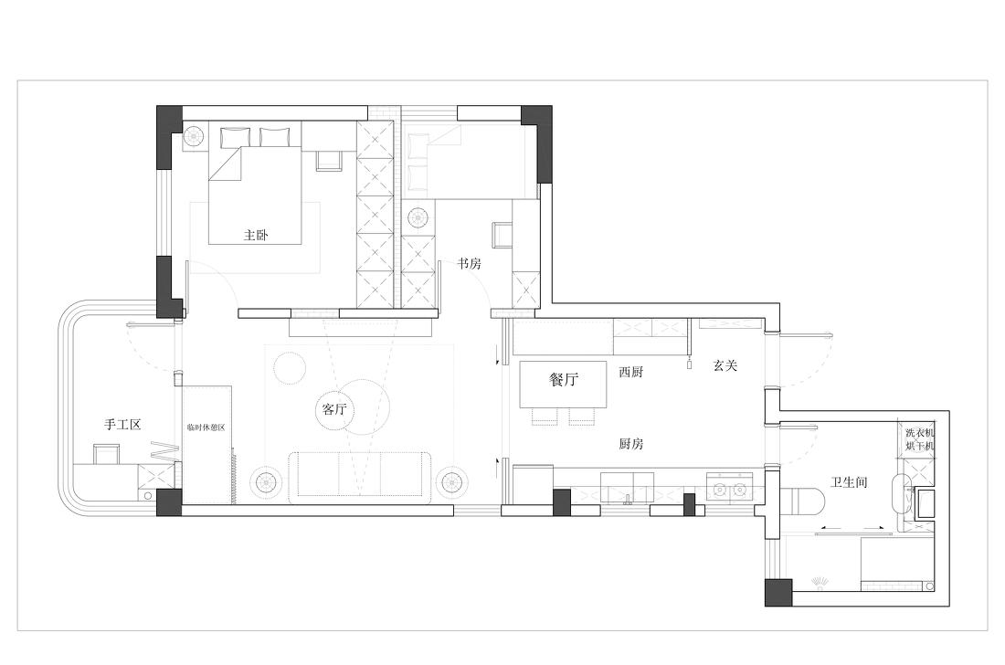
家的简介
这是一套妈妈给准备留学归来的女儿的特别礼物——女儿长途跋涉之后的治愈之家,承载女儿的独当一面和偶尔的团聚留宿.
①为解“开门见山”的尴尬设计玄关,有效保护主人的私密性.
② 餐厨一体化,可开可合,让房子的公共空间宽敞、明亮.
③ 改变主人房入口,大大提升客厅的空间利用率.
④ 把阳台纳入客厅,又保留其独立性,可作为手工区.
设计师紧紧围绕居住者的核心需求,布局合理的空问动线,做了一个两房半的设计以满足妹妹及妈妈的陪伴与留宿。以白色作为空间的主色调,温润细腻的木元素穿插其中,打造了一个通
透、开阔、亦虚亦实的生活空间.
❶ 为解“开门见山”的尴尬设计玄关,有效保护主人的私密性.
❷ 餐厨一体化,可开可合,让房子的公共空间宽敞、明亮.
❸ 改变主人房入口,大大提升客厅的空间利用率.
❹ 把阳台纳入客厅,又保留其独立性,可作为手工区.
原户型缺乏玄关功能,且公共空间一览无余。利用西厨的收边墙结合质朴的麻绳制造玄关区,通过引导动线营造出更为别致的空间体验。
入户做了隔断巧妙的加入装饰麻绳,可以微妙的看见后面的景色,让空间更加有层次感,隔而不断,视觉上连为一体。
改造前后餐厨对比
原本的餐厅空间比较局促,所以我们采用了餐厨一体化的布局。靠墙设置固定卡座,保证餐厅和厨房的过道尽量宽敞,同时补充了一组到顶的餐边柜,烹饪、就餐更集中。
造型简洁的原木餐桌搭配白色调的吊灯营造出温馨的用餐氛围,想象在这张餐桌上,有一人食的自在,也会迎来“一房两人,三餐四季,都和你”。
厨房一字型布局,空间最大化合理利用。橱柜延续餐厅的原木风,台面墙面和吊柜做成白色,丰富空间层次感。操作空间和储物空间都足够大,右侧还预留了冰箱位,拿、洗、切、炒一气呵成,整个空间简约大方。
餐厨空间与客厅用推拉门做隔断,可开可合的玻璃推拉门完美的隔绝了创造美食时的油烟味。让整个公共空间看起来更加通透,把吊轨留在吊顶,方便日常清洁打理。
小户型餐厨一体,颜值收纳都要满足。
在生活的小尺度里雕刻空间的无尽气韵。
灯光铺满,静谧的家。
闲淡时光
改造前后客厅对比
公共区域的空间不大,但功能齐全,以暖感木色和浅灰色沙发为组合,铺设出干净而整洁的视觉效果。电视背景墙,做了隐形门,既满足了空间的划分需求,又让背景墙看上去更加完整。设计师充分利用每一寸空间,避免琐碎的摆放,显得整洁、大方。
有很多种理由宅在家里,随手可拿的杂志,或者一首录音机里的老歌。
低饱和度的配色与布艺的棉麻质感,带来视觉与触觉的双重柔和。灯光选择无主灯设计,多角度、不同特性的光源组合在一起,提升客厅的层次感,让空间更加高级有质感。
无论清晨还是傍晚,这座城市总有一盏灯是属于你的。
沙发特意选择矮脚款,低矮的造型,缓解空间的压抑感。
没有华丽的堆砌,干净利落、素净纯粹的设计很大程度地保留了空间独有的美感.
每个元素相互呼应,相互融合,共同构建出一个独特的家的模样!
全开窗户
半开窗户
客厅与阳台没有选择常规的推拉门作为隔断,砌上一堵矮墙,做了一个“画框”,灵活巧妙地创建了一个由里向外的视觉趣味,丰富了人与空间,空间与空间,空间与自然的关系互动.
靠着矮墙做了一个mini榻榻米,木饰面元素呈倒U型包裹着墙面和天花,形成了一方小天地,可供偶尔有人留宿.
改造前后阳台对比
阳台是住宅中最接近户外自然环境的空间,但时常被忽略以洗衣房、晾晒区使用。我们把手工区安排在阳台,一桌一椅,一草一物,浸润在漫漫窗纱下的朦胧日光里,鼓捣自己的兴趣爱好,这一刻,任何烦心事都能抛之脑后。
改造前后主人房对比
明亮的光线,舒适的大床,方便收纳物品的抽屉,临时办公的桌子,展示心头好物的空间,这些期待都在这里一一实现了。
床头柜,以木饰面延伸到衣柜形成梳妆台,线条流畅,为卧室营造出明亮又温柔的休息空间。
整个房间都弥漫着温暖和柔和的氛围,可以让人联想到春日的暖阳。
改造前后书房对比
榻榻米房搜集到阴天所有的光,安静、柔软是百叶帘可以掌控的气氛。
能满足休息,又可以做收纳,还装得下居住者的爱好,这样一个简洁的空间在家中很需要。
小小的房间,经过精心的布局,集衣柜、书柜、书桌、床于一室,包罗睡眠、办公、贮藏功能之余舒适度还极高。木饰面与白墙的简单搭配,盐系感满满~
对于小户型来说能够拥有一间独立书房是件奢侈的事情,因此需要将房屋空间利用最大化以满足更多的功能需求。将书房和客卧合二为一。无论是色调还功能规划上,都简而有序。
随着居住时间的递增,家里的杂物必然越来越多的,具有充足收纳的榻榻米,是保障家居氛围简洁大气的关键所在。
改造前后卫生间对比
极简的设计,纯色瓷砖没有凹凸造型,达到视觉上干净的效果。
卫生间的细节也是满满,浴室柜为了方便搞卫生,也做了悬空的方式;使用频率比较高,对于收纳要求更高,所以整面墙都作了镜柜,起到了收纳和空间镜像的作用。
卫生间同时兼顾了洗衣干衣、洗漱、淋浴、泡澡和储物功能,生活动线流畅合理。
客服
消息
收藏
下载
最近

















































