查看完整案例

收藏

下载
案例简介
Case description
屋主需求:业主计划将这个别墅改造成现代简约风格的休闲型民宿,配套多种休闲娱乐设施,主要面向旅游观光度假、公司团建等客户群体。因此在本案例中,简约和舒适是这栋别墅的属性,豪华被重新定义,并通过内敛的设计得以体现。
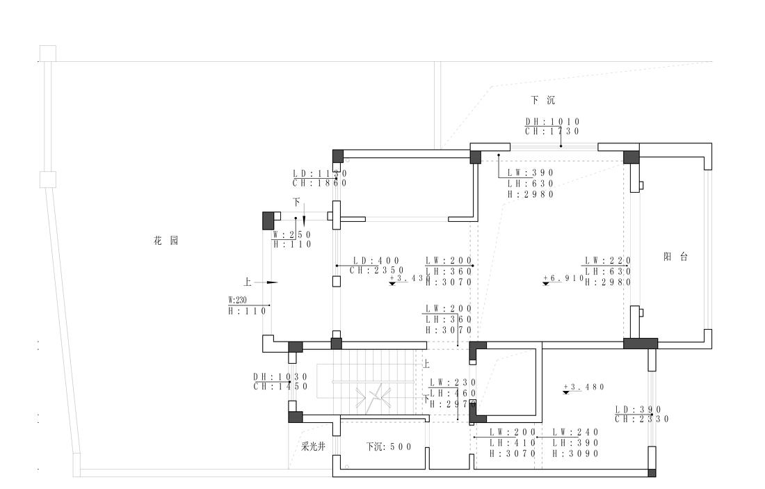
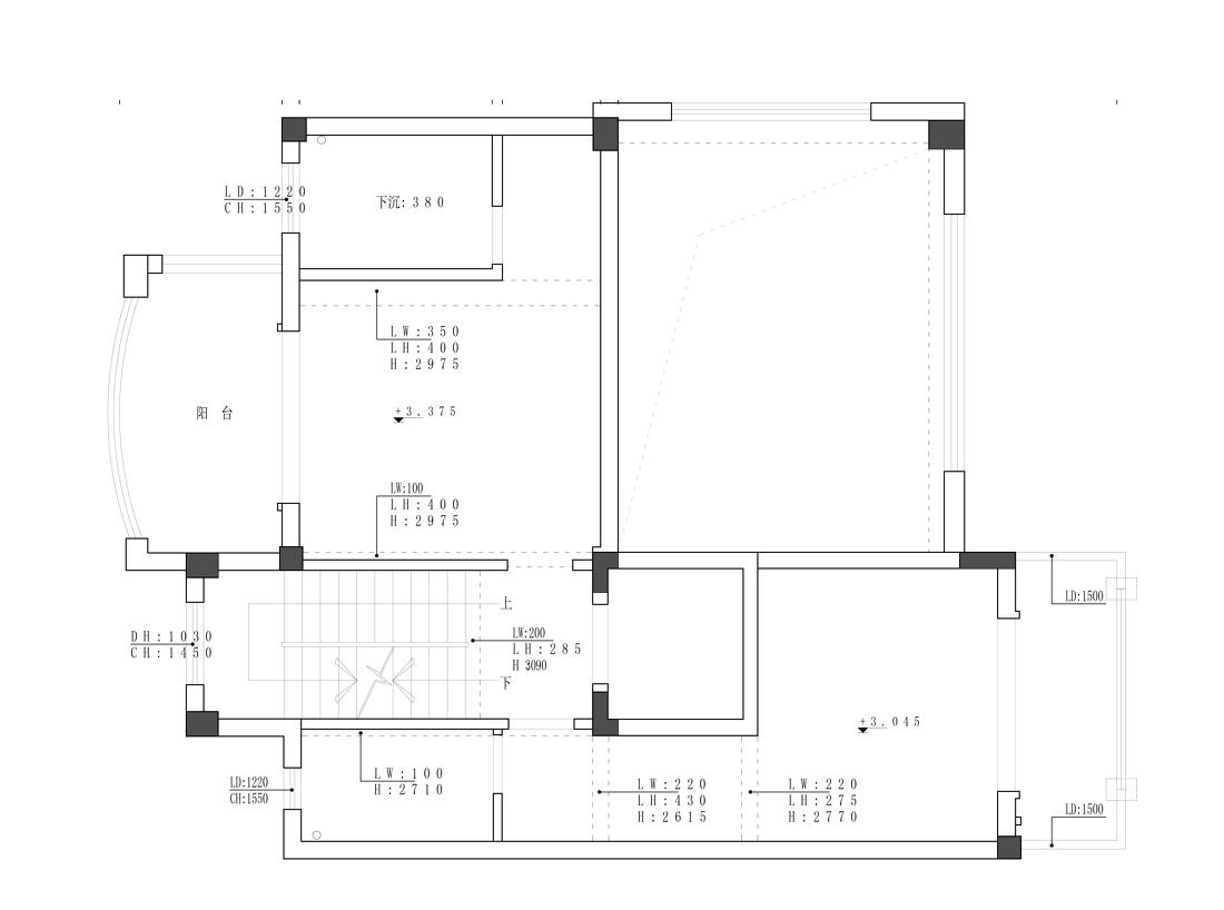
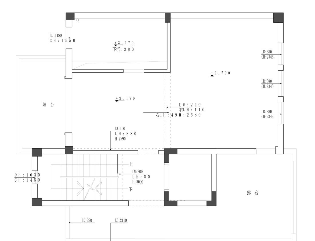
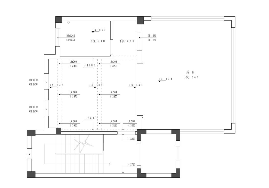
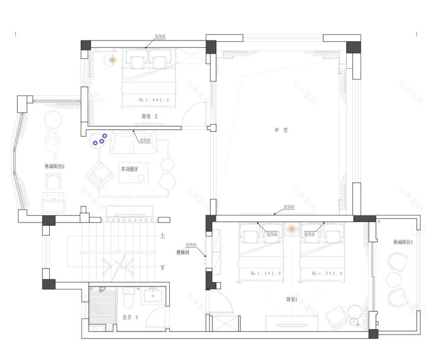
户型解析
设计师在电梯位设计为玄关,对室内活动场景稍加遮挡。无窗的区域因势设计为不需要采光的KTV室。室外花园增加泡池、烧烤区、品茗区、钓鱼区、休闲区等配套设施。
将中空位改成客厅,而原来的卧室改成偏厅,摒弃原来的传统封闭式厨房,而采用了开放式厨房的新生活方式,与客餐厅产生密切的连动关系。楼梯空间幽闭小气,将其空间打开以增加延伸感
客厅高挑空设计,追求空间横向的流畅和纵向的秩序感,稳定空间比例,四角相对,在移步换景中,都能看见优雅的结构美。
自然光线倾情而至,通透着整个空间,与室内的材质产生美妙的交互。直线条表现理性、连贯的感觉,营造简而不凡的线条意境。
客厅、餐厅、厨房开敞开放、互联互通,形成开放式格局,每个空间都不呆板,没有墙面隔阂,放大视觉感受。
圆形的空间布置,让这个空间成为是各种对话场景之间的汇集,访客,朋友在此,谈心、交流;小孩在此,看书学习;主人在此,喝茶、工作。
客餐厅与厨房的融会贯通既获得视觉上的开阔,也确保了三者的随时互动。餐厅衔接厨房,为与立面视觉协调,契合整体色调的灰和白,将色彩温柔叠加,呈现一个温润的用餐环境
一家人围桌而坐,享受美食与亲情的温馨。艺术是生活的再现、是情感的表现,一蔬一饭,亦是人们对生活抱持热情的表达
偏厅与其他空间互通互连,又体现出各自的独立性及功能特性。冷暖结合、刚柔并济的软装配搭以一丝不苟的姿态,空间达到平和的状态,给人以舒适的质感和精致度。
多功能区大面积的落地窗让视野,采光得到充分的开放,背景墙的木质线性结构以其经久不衰的魅力唤醒对秩序感的追求,也征服众人挑剔的目光,呈现空间自由,气韵流动,光影绰约的意外效果。
卧室以灰白色为主调,将空间填补不同亮色作为点缀,轻松柔和的色调配之简单的挂画。零散造型的灯悬于桌面,和方形布局形成一种和谐之美。
灯具作为能够活泼空间关系的点和线融入到空间当中,赋予空间活泼的趣味;主卧包围式的床头拥有了更多的归属感。
木质线条造型从墙面延伸至天花,巧妙分割空间形态,似是围合出若有若无的边界。一抹亮橙色则是点睛之笔,与同色系的吊灯、地毯相互配合,一点点糅进这灰色空间里。
灰色的空间尽显整洁、利落之感。卫生间有力延续了简约纯粹的气质没有一丝拖泥带水,黑白灰对比形成强烈的反差,带给人现代空间感的视觉冲击力。
卫生间的墙面与地面瓷砖一体,流畅的线条配上石材与木材之间的视觉碰撞,增添了不少理性美。
负一层开场自由的空间架构,增加相互交流的自由度,形成协合呼应;模糊界限和风格的设计,为空间创造无限的可能。纵横有序、流动自如的视觉感受,铺陈简约现代的情景氛围,为亲朋好友间互动提供了理想场地。
幽幽灯光下,最是适合寄一腔情愫于歌声在空间中流转。抬头便满眼是闪烁的星空,更多了一些美妙和奇特的体验。
前院两侧都用了圆的元素进行设计,一侧富有青春活力,一侧宁静悠扬。
客服
消息
收藏
下载
最近















































