查看完整案例

收藏

下载
案例简介
Case description
本案业主是一个三口之家,一对80后夫妻,男业主是煤矿地质勘探人员,一个刚上小学的男孩,而女业主则是在家的全职太太,负责照顾一家三口的日常起居。
男主人非常尊重女主人的意见,所以在设计初始,整个方案的沟通上,秉持着“一切以她喜欢”的原则展开,所以在格局上的规划和后期软装的搭配上,设计团队在方向的把控上非常明朗。140平方的居室,女主人侧重收纳空间的设计以及先生办公区域的规划和小孩未来成长空间的设计。喜欢黑白灰色调的简单风格,满足功能需求的前提下,强调希望营造自然舒适的居室风格。
希望空间在结构上看着更加通透挑高,我们在吊顶的表现手法上做了减法,保留原建筑的梁位,然后以黑色造型方柱贯穿原建筑梁位,不仅弱化了原空间梁位的压抑性,而且使整体空间更加干净利落。
边几视角
在当下日新月异的今天,如何用艺术的表现手法打造空间,让黑白灰这个经典设计焕发新的魅力,让空间与人拥有更好的对话,是本次我们设计出发的初心。
为了打破玄关纵深感太强的格局,在入户玄关处我们设计了造型隔断柜,既解决了入户玄关的收纳问题又很好地给客厅营造了一种半通透的私密感。
而电视背景墙的处理上,素白隐形门的设计让整个空间给人温暖宁静的舒适感。
我们一直在探寻空间与人的有机共生, 空间作为一个载体,它承载着物质和精神的双重属性。
“家的温度是与你眼神交汇的那一刻”,多么动人的一句话,在全案的设计中无疑流露着男主人对女主人的满满深情。以经典的黑白灰为居室的基调,三种色彩在特殊比例之下,发生了微妙的化学变化,给人一种舒适宁静的感受,而在局部软装上的选择,以黄色沙发作为空间的点睛色,使整体空间极具美学底蕴。
在厨房的设计上,黑白配色的中岛,浮雕纹样的大帽灯,与背景墙上抽象的花砖交相呼应,形成一个独特的艺术视角。
卫生间三分离的设计,满足了一家人日常洗漱互不干扰的需求。
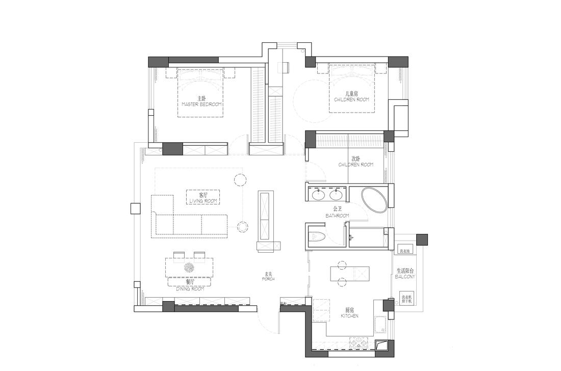
平面布局图
客服
消息
收藏
下载
最近













