查看完整案例

收藏

下载
案例简介
Case description
当赋予一个空间灵魂,它就变成了家。暖心的男主人会在不经意间把剥好的橙子送到我们的手里,女主人为我们准备很多特色美食。姐姐活泼开朗,喜欢充当小摄影师给我们拍照,弟弟天真可爱,是家里的开心果,还有和蔼可亲的爷爷奶奶,每次与这个家庭相处时都会让人觉得很温暖,这便是人们理想中的温馨之家。
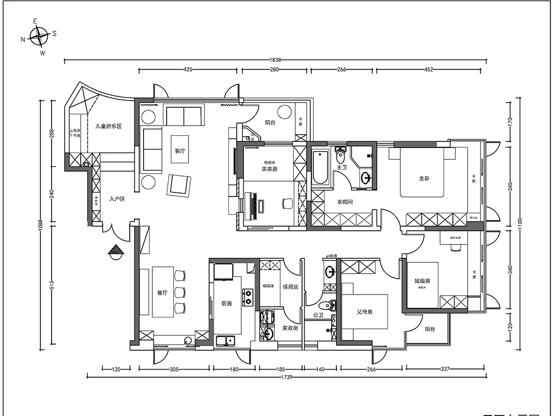
户型改造分析:
①、对原有入户阳台进行封窗,为姐弟俩创造出一个“梦想王国”;
②借用餐厅窗户两边位置,设计了2个酒柜,并在窗前设计一个西厨操作台面,同时也兼顾餐边柜的功能;
③、脑洞大开,把原本1个空间分成3个功能分区,公卫还做了干湿分区,关键是各个空间还不显得拥挤;
④、把房间阳台改造成客厅的公共阳台,解决以往从房间里面才能到达阳台的不便;
⑤、把原有套房分割成两个独立的房间,主卧和姐姐房,并且把较大的主卫改造出一个令人羡慕的衣帽间。
从原始图和成品图对照可以清晰看见入户门往左边移动20cm,腾出位置设计整面功能齐全的鞋柜,这个小改动就是赚到空间,这是多少人理想中的入户玄关。
悬空的电视组合柜注重实用性,还不显得笨重拥挤。
客厅两组沙发主人都很喜欢,那就换着心情坐吧。
餐厅窗边的西厨与餐边柜使餐厅既丰富又整洁。
把原有入户阳台进行封窗处理,不管刮风下雨大太阳,姐弟俩在家也有一个“游乐园”。
公卫,洗手台侧柜的凹位是牙刷杯专属的“小家”,这个侧柜满足了全家洗浴物品收纳的巨大需求。
透过有趣的小窗洞正好可以看看认真学习的弟弟。
粉色的床品和暖色的公主房搭配得毫无违和感。
巨大的落地玻璃窗,或小酌或品茗,两人世界的私享时光。
衣帽间墙体采用透光玻璃砖,尽可能把光“借”到了衣帽间。
客服
消息
收藏
下载
最近































