查看完整案例

收藏

下载
案例简介
Case description
不得了的4房:本次案例坐落于深圳市福田区有名的百花学区+深圳实验中学学位,男女主人非常重视教育问题,为了让小朋友有个良好的学习环境,从舒适的大房子搬迁到了优质的学区房里。在拥有4个房间的条件时,坚决把最大的房间让出来给两个小朋友,入住近一年时间,家里仍然井井有条,干净整洁。
女主人是一名金融界精英,热衷于黑白灰的高贵典雅搭配,这也许和女主人的职业也有关系,沉着、冷静。男主人则是一名优秀的宠妻狂魔,一切装修都是以女主人的喜好为基础,只管默默掏钱,此处真是羡煞旁人...再加上活泼可爱的俩小主人,时常给家中带来各种欢乐。
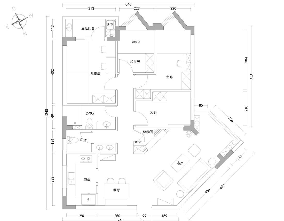
改动亮点
①、 在本来异形的客厅里新建一面与沙发背景对称的墙体,改善看电视终于不用斜着看,同时还增加了一个储物间;
②、 原本主卧带主卫的套间改成儿童房,现在2个卫生间都做了干湿分区,3个洗漱盆都对外使用,满足于6个人的需求;
③、主卧借用了次卧一点空间来满足衣柜收纳需求。
墙体大面积白色与深色实木地板形成鲜明的对比,具有延伸性的客餐厅(公共空间)成了两兄弟最喜爱的游乐园,家里的装饰画均出自于瑞士、日本有名的艺术家之手,抽象的艺术作品给小朋友带来无限的想象空间。
现在的电视墙原本是一个异形空间,看电视都是斜着的,经过我们的设计改造后,电视背面不仅多了一个储物空间,看电视也能舒舒服服,是不是很赚呢。
电视柜采用黑钢设了内嵌式,减少磕碰,尽可能的给小朋友腾出玩耍空间。
餐厅与厨房之间开了一个小窗,增加了它们之间的通透性,女主人在制作美食的同时还能照看小哥俩,并与之产生互动,拉近家人间的距离,还从厨房借了一道光线到餐厅。
这里便是保证俩兄弟营养的基地,白色的橱柜、墙砖搭配深色地砖、电器,让空间凸显明亮、整洁。
过道背负着进入4个房间,2个卫生间,1个储物间的重要交通使命。吊顶采用拱形处理,让空间更宽敞。
酷酷的房间也可以舒适温馨,专门根据房间的宽度定制了舒服的床铺,每天让辛劳的主人回家能够充分“充电”,元气满满的迎接第二天的到来。
2个对外使用的卫生间,足以满足全家人的使用需求。
2个对外使用的卫生间,足以满足全家人的使用需求。
2个对外使用的卫生间,足以满足全家人的使用需求。
2个对外使用的卫生间,足以满足全家人的使用需求。
客服
消息
收藏
下载
最近






























