查看完整案例

收藏

下载
案例简介
Case description
本案的女主人是一位职场全能妈妈,有着两个可爱的女儿,大女儿热情活泼。喜欢音乐,小女儿乖巧可爱。喜欢绘画和阅读,从家里的书海可以看出来,夫妻两人对孩子的成长倾注了许多的心血。
这次的买房装修也是考虑到孩子的上学需要,放弃了郊区别墅选择了现在方便孩子和上班的小区。
女主人同时还是一家建筑公司的合伙人,在工作和生活平衡中对美也有着独到的见解和追求,海外的工作经历让她对浪漫精致的法式生活有了特别的偏爱,对这次的新家装修,她希望能将法式浪漫融入自己的生活,即便不能踏足诗和远方,但灯火围坐、家人相伴,也是小天地里的别样浪漫。
房子结构是顶层复式,房子原本的上下楼房间比较多,卧室大客厅小,采光和通风都不太好,特别是动线尤其不合理,厨房需要穿过卫生间才能进入,为了更好的让家人们互动,让空间更加通透舒适,女主人果断牺牲两个卧室将一楼做成开放式格局,让法式风格的浪漫的磁场尽情地在家里流动!
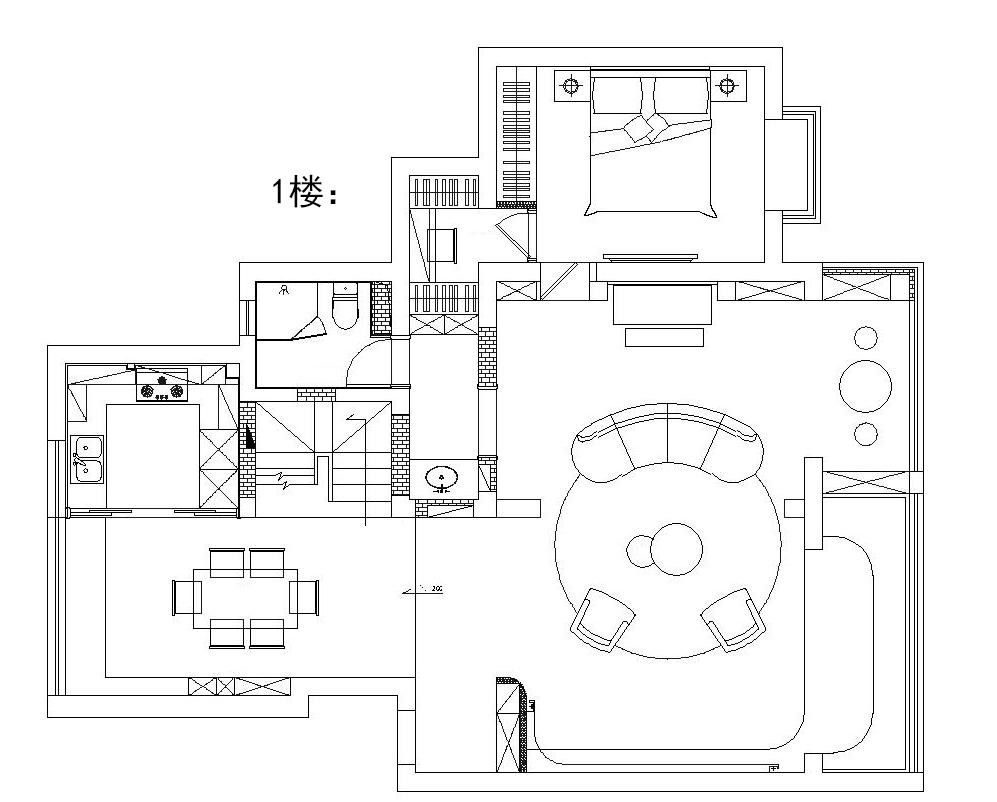
#一楼平面布置图
房屋原本有4个主卧室,而客厅只有1个,常驻人口只有屋主夫妇和2个女宝宝,最尴尬的是家人们在一起活动交流的区域太少,而睡觉休息的空间太多。一楼打通了卧室和客厅的墙体隔断,让整个客厅的区域面积增大一倍,同时去掉一楼客厅和二楼卧室之间的楼板,形成一个6米挑高区域,让整个客厅在高度和深度上都做了立体的延展。
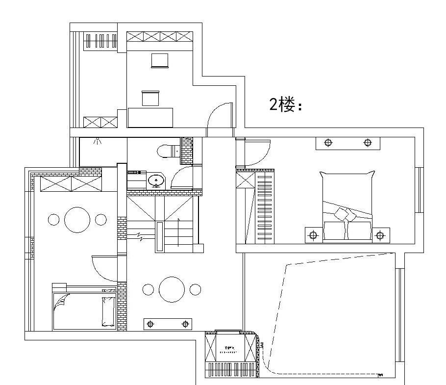
#二楼平面布置图
一楼为了实现这个挑高的客厅,牺牲了2间卧室,但是换来了家人的“共享空间”,更棒的是,挑高区域为全屋带来了更好的自然采光,现在光线可以照到餐厅的最里面,二楼的休闲区域也得到充分的光照,整个家的气流也是更通畅了。
二楼被划为孩子们的“公主城堡”,在这孩子们有自己的书房、卧室、卫生间和休闲阅读区,姐妹们小的时候可以同室而眠,长大后整个空间可以划分为两件独立的卧室让孩子们能够充分拥有自己的私人空间。
结构上卫生间洗衣房这些功能空间保持独立,而两个房间相对独立,这样的设计兼顾到孩子们从小到大成长中的变化需求,让家人的陪伴和孩子的隐私都得到更好的平衡。
在这个案子中客厅是改变最大的也是最有亮点的区域,首先将原来处于入户门左手的楼梯移动位置,让整个客厅可以餐厅得以通常连接,形成一楼的整体开放区域,从此进入厨房再也不需要先经过卫生间了。
在一楼挑高的客厅里,大女儿可以在沙发后的开放琴房练习新的乐曲,小女可以在客厅落地窗前开心的阅读自己喜欢的绘本,窗前的卡座可以放满孩子们喜欢的故事绘本,爸爸在沙发休息的同时也能看顾孩子,这个“共享空间”俨然成了四口之家的核心地带。
圆弧造型的奶白色布艺沙发对孩子们特别友好,柔和的线条增加了整个空间温馨感,搭配圆柱形的古铜色的金属茶几和丝绒质感墨绿色单人沙发以及浅咖色的抱枕,不同材质的组合营造出客厅的高级感和时尚感。
家里的布偶猫最喜欢在新家的客厅玩耍,喏!眼前的这个亮绿色布艺单人沙发,已经成了它的专属座位,女主人甚至无奈的表示,是因为上面都是猫毛,大家都不愿意坐。
自然大地色系的搭配和家里的布偶猫咪的毛色完美兼容。这也许是主人把对毛孩子的偏爱投射到了家中。
以沙发作为软性隔断将客厅划分为家庭休闲区和琴房阅读区,以钢琴为中心,两边设计了收纳壁柜和一个进入主卧的隐形门。
客厅中心悬挂一盏弧形几何造型的极简风格的布艺吊顶,方正空间搭配圆形吊灯,交错的搭配让静态的空间产生了动态的美感,生活的中的美其实也很简单,一个小心思而已。
开放式的灯带收纳柜,摆放这主人喜欢的艺术品,在灯光的照耀下成为客厅的另一道风景线。
落地窗前的绒面休闲沙发椅,白面包的造型柔软可爱,给空间里增加了一些童趣和天真,非常适合家里有小朋友的屋主。
原本餐厅的区域是楼梯后的厨房空间,将楼梯移位后,再将厨房侧移,开放式的餐厅就出现了。坐在餐桌前可以看到客厅里的一切和外窗的美景,生活需要多些通透多些明亮!
餐厅餐桌椅的配色,延续了客厅的自然大地色系,大理石桌面+金属圆柱组成的餐桌,搭配灰色丝绒材质餐椅,不经意间显露的奢华尤为镇慑人。餐桌上方的一字型吊灯也令整个餐厅空间变得稳重。
椭圆形大理石的桌面搭配圆柱金属质感的桌腿,简单的几何造型在不同材质的演绎下将生活的仪式感带到桌前,好好吃饭,好好生活,对自己和家人的热情款待,就是对生活的最高敬意。
为了孩子的膳食健康,家人都会亲自下厨,所以厨房虽然直接与餐厅相连,但是增加了一道玻璃移门,这样遇到油烟大的情况也不怕满屋子都是菜味了!
厨房以白色为主搭配简洁的铜拉手,显得干净而又饱含气质。
二楼顺着楼梯上来有一块休闲阅读区,通过这里可以进入洗衣房和卫生间。
未来这里可能会作为姐妹俩的投影娱乐学习室,通过投影来学习网课或者观看电影对眼睛保护更友好!
主卧的顶面和立面采用的设计均是使用了法式当代风格的特征,简约的装饰线条,低饱和的乳白+浅咖+灰色搭配让整个空间显得沉静而优雅。
女主人日常生活中,特别喜欢躺在床上追剧看书,在挑选软装时对于床头软包的需求很强烈,几经周折终于选到了自己心怡的床品。
床头灯也在灯光师的建议下配备了不同种类的光,适应屋主的各种场景需求。尤其是床头蘑菇吊灯散发出温暖的光线让这个私密的空间变得细腻而迷人。
床头边几的选择也极具艺术感,审美在线的屋主对于家具的选择很有自己的想法,好在设计师也见多识广,对于业主的需求都能精准的检索到适合的品牌与产品。
主卧里设有步入式衣帽间,大容量的柜体设计充分满足了女主人置装的需求。墙柜的两侧柜门选择了玻璃材质,主要时考虑到女主人日常护肤洗漱用品的收纳,可以一目了然看到柜中储藏的物品。
这是二楼的次卫,主要是两个孩子使用的。颜色用了让人身心放松的天蓝色,用花砖做腰线装饰,让两个小公主也能带着愉快的心情洗漱。
淋浴房做了干湿分离设计,大空间尤其时别墅卫生间的淋浴水温调节尤为令人头疼,业主选择了恒温花洒及大功率高性能热水器,完美的解决了这一难题。
客服
消息
收藏
下载
最近



























