查看完整案例


收藏

下载

翻译
来源: АrсhDаilу
MONO 办公室 / Design Studio Mono
建筑师提供的文字描述。 Design Studio Mono 是一家室内设计公司,它基于“空间改变住宿者的思想和行为”这一信念,创造一个有故事的空间。 我们希望新办公室希望成为人们可以更自由地思考和交流的地方。 对于这种变化,我们试图按照Mono的设计理念创造一个包含自由价值的新空间。
为了表达自由的核心价值,每个部分都有一个有机的流动,并表现为一个开放的空间,使自由交流成为可能。 进入入口时所见的粗犷大胆魅力的吧台试图以非结构化的形状传达空间的身份。
立面是设计工作室mono身份中最显眼的部分。 组成和主席非常重要。 我们用柔和的曲线构建了形式,这是我们设计的主要特征,并用拱形入口和圆形窗户来表达。 外部材料在白色调和红砖之间形成对比。
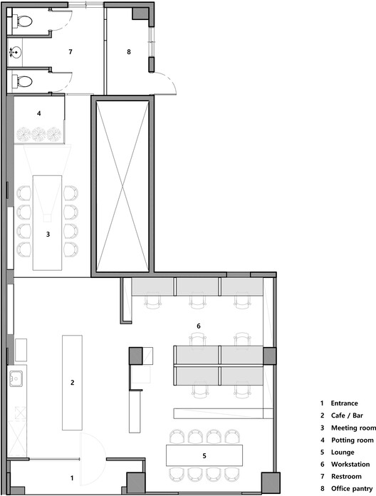
空间分为自助餐厅、工作站、会议室和休息室。 所有的空间都是开放的,每个部分都有一个有机的流动,希望成为一个可以自由交流的空间。 会议室是开放但舒适的,有一个圆顶形结构,专注于项目。 园艺空间层次分明,顾客的视线停留在屏幕上,营造出舒适的氛围。
为了弥补开放式办公室的不足,在宽大的办公桌上增加了一个低高度的隔板。 在保证隐私的同时,又与整体设计相协调。 我们希望新办公室将成为每个留在这里的人记住设计工作室 Mono 的标志性空间。
来源: АrсhDаilу
客服
消息
收藏
下载
最近













