查看完整案例


收藏

下载
探索事物于不同角度的发散认知,以相对述平化的方式。
来阐述其内在诸多的复杂可能性,挖掘更多不同的生活方式探讨和对人性的再思考,让空间更具可考究及情感共鸣的建立...
以‘内建造’的方式来嫁接相邻模块的脉络和关系,使其保持独立性的同时,呼应整体,辅以动线的交织与所建立的互动。
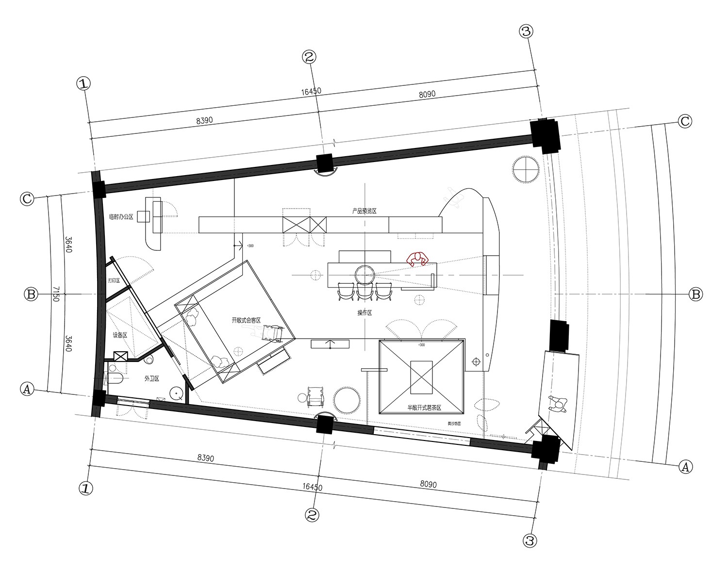
秩序_
于‘间隔’来区分构造
以‘斜向’的格局内切割,来作为动线交织的引入和过渡,切换块面构造的同时,于现有格局建立内‘秩序’的变化。
尺度_
由‘比例’作为内开间的度量尺。
由近至深的尺度缩减再有扩,制造渐进的压缩式心理转换,接至缓冲区,作为分区之间串联动线的交汇,而延伸至回形廊道的流畅。
切入_
以‘物件’来内置格局
以‘盒体’的概念切入来作为置于空间格局内的‘障碍体’,让其围绕而交错,借由空洞开启的形式来实现视线和心理感受的‘窥探视’欲望。
作为体块之间的‘嫁接’,于盒体而置于台阶之上,采用底部悬空的结构处理,使其以‘浮’的介质半联通相邻分区,实现对应错层的视觉落差。
由侧至右向的动线引导,借助柜体的‘遮掩’来引入过区的理念波及,让穿行动线以置边缘化的形式来出现,制造内场景的交互及融合。
以结构作为呼应整体格局的线引,和谐整体后的再局部‘破坏’,以‘窗口’的形式来实现分区之间所建立的微妙关系,使其作为建筑体的概念来进行思考。
项目名称:迴构
项目地址:浙江省 瑞安市
主创及设计团队:隹聿设计工作室
建筑面积:165 m2 (商业空间)
主持设计师:兰斯,林思思
设计参与:季勇强,鲍智豪,张雨婷
兰 斯
隹聿设计工作室 创始人 / 设计总监
客服
消息
收藏
下载
最近











































