查看完整案例

收藏

下载

翻译
来源: АrсhDаilу
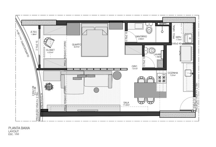
客厅:巴西公寓的 10 种布局
设计客厅不仅仅是决定沙发和地毯套装。 通常,因为它是房子的主要环境,它与其他更多公共用途的项目相连,如厨房和办公室——甚至私人空间,如宿舍,在面积缩小的公寓的情况下——因此,为了构想更大的空间流动,有必要考虑不同的策略来帮助设计一个更舒适和愉快的空间。
通过这种方式,我们选择了十个巴西公寓客厅的例子——从 31 到 140 平方米——以及它们的布局计划,以展示设计如何促进这些空间的使用。 选择材料、创造多功能家具、采用内部景观和可渗透的空间限制是其中一些突出的特点。 在下面查看它们。
来源: АrсhDаilу
客服
消息
收藏
下载
最近























