查看完整案例


收藏

下载
本项目位于上海市黄浦中心大厦办公楼,要对其地下餐饮空间进行改造。原有的运营模式类似传统的公司食堂,主要为楼上的办公人员提供午市餐饮服务。业主希望通过本次空间改造,优化就餐环境,推动就餐服务体验的整体升级。在前期调研寻访中,客群对原空间的评价普遍较低,认为“光线昏暗,空间压抑,地面潮湿且油腻”。这一方面可能与传统食堂运营模式有关,另一方面身处空间封闭的地下室,更恶化了就餐体验。
△ 就餐区
△ 就餐区
由于地下室的条件受限,唯一的自然采光是两端的天窗。固然已经按标准照度布光,但视觉感受上亮度依旧不足。而另一方面,地下室四周都是实墙,空间封闭。加上主空间狭长,层高较低,更加剧了压抑的感觉。
可以说,其基础空间条件与传统意义上的理想就餐环境相差甚远,成为设计中亟需解决的问题。如果可以让人感觉不是在地下室,而是身处一个有光有景的自然环境里,那么就餐品质必然可以得到巨大的提升,这也成为了我们的主要理念。
△ 视频编辑:庞圣耀
01/天窗光盒
首先解决光的问题。受到原有地下室两端天窗的启发,虽然现场没有条件直接引入自然光,但可以通过模拟天窗顶部光照,将原有的天窗联系在一起成为特有的照明体系。我们用一系列天窗光盒串联整个餐饮空间的就餐流线,使得就餐者无时无刻不处在柔和的自然漫射光照中,提升视觉亮度感受。
△取餐区通道
△收银区与就餐区交界
△从面档柜台看向就餐区
02/景观光盒
而空间压抑的问题,关键在于“窗”,其不仅可以补充自然光,并且可以通过窗外的景深扩展空间感受。应该说,处于室内的人对于该空间的感知大部分都受到窗的影响。
国外曾经流行过一个“假窗挑战”,当墙面投影出不同的画面时,仿佛真的瞬间身处异域。窗把人与外部世界联系在一起,身处在哪,时间、季节、气候等信息都是从窗景获得的。如果窗景画面发生改变,就好像带动整个房间跨越界限,来到了另一处时空。
△ 就餐区
△ 就餐区(拍摄:庞圣耀)
△ 就餐区(拍摄:庞圣耀)
因而我们在墙面上通过拼接电视墙组合出一个“景观光盒”,并搭建相应的多媒体控制系统。通过播放不同的场景视频,就像可以随意穿梭时空,随意选取想要“就餐的地点”。如此,这个餐饮空间可以在山野,在密林,在湖边,在沙漠,或是隐入水下观赏游鱼,或是穿梭星海探索宇宙,转瞬上天入地,跨越春夏秋冬。
△ 视频编辑:庞圣耀
03/空间色调及质感
考虑到原有运营公司本身的服务能力,整体设计上更趋向于简洁素雅。地面和部分墙面采用水磨石和仿石喷涂,浅灰色的色调增强了漫射光,提亮整个空间。
部分墙面和顶面选用了哑光质感的和纹不锈钢和金属漆,在“窗外景色”变换的同时,材质微弱的漫反射受到屏幕色彩的影响,染上一丝颜色,使得环境更加整体,又不会过于纷乱。
△正对取餐台
△收银区
△取餐区
△盥洗室
04/流线整合及功能扩展
除了空间环境的整体提升以外,我们对于原有功能和流线进行梳理调整,以提供更多样更人性化的服务。首先通过梳理取餐区、收银区流线,并增加面档、小食台进行分流以减少原有拥堵的排队长度;
△运营中的取餐区(拍摄:庞圣耀)
△运营中的就餐区(拍摄:庞圣耀)
△运营中的就餐区(拍摄:庞圣耀)
另外,从原有食堂打菜模式转变为自取菜碟的模式,更符合大众的就餐习惯,也减少了厨房服务人员的工作压力;独立设置的面吧区优化了空间利用模式,扩大了面食制作空间,可提供多种面点和麻辣烫,丰富了就餐品类,并且为后续的早餐、夜宵服务拓展提供可能性。
△面吧
△收银区看向就餐区
电视墙在营造环境的同时,可以作为电视屏幕在就餐时播放新闻,并在举办各类活动时作为屏幕播放会议报告或多媒体影片,使得整个空间的使用更多元化,提高了空间利用率。
△ 就餐区
△ 就餐区
△ 就餐区
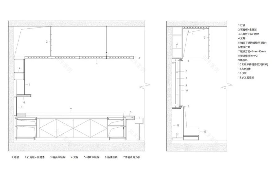
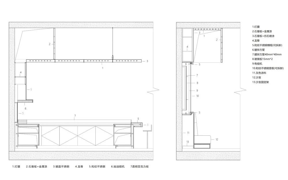
//技术图//
△ 平面图
△轴测图
△ 墙身大样
项目概况:
项目地址:上海市黄浦区中华路
改造面积:376 平方米
业主单位:上海众鑫资产经营有限公司
方案设计:上海中房建筑设计有限公司
设计团队:封陈杰、陆臻、罗雅馨、陈钰茜、王汝露、庞圣耀、王晓东、单海军、张敏燕
施工图设计:上海中房建筑设计有限公司
建筑团队:封陈杰、陆臻、罗雅馨、陈钰茜、王汝露、庞圣耀、王晓东、单海军、张敏燕
结构团队:徐文炜、彭维康
暖通团队:王翔、石强君
给排水团队:徐立群、姚思浩
电气团队:吴忠林、王卉、倪麟童
审核:张继红
校对:宦杰
建筑摄影:梁山(除标注外)
客服
消息
收藏
下载
最近




























