查看完整案例

收藏

下载

翻译
来源: АrсhDаilу
之前和之后:巴西公寓的 10 次翻新
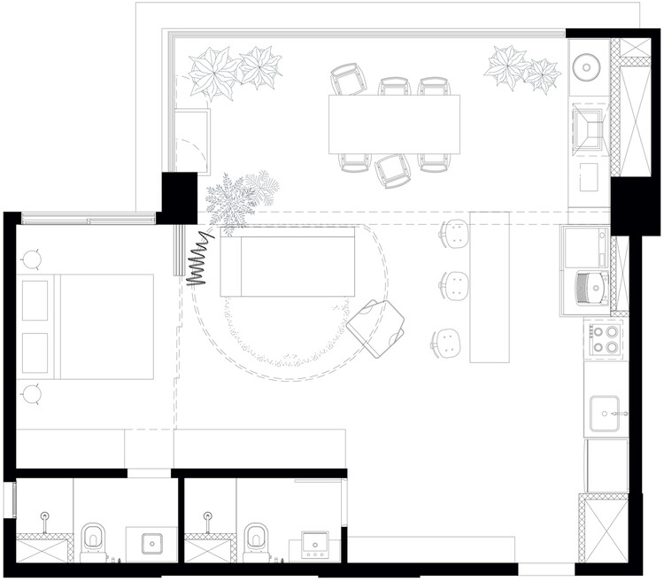
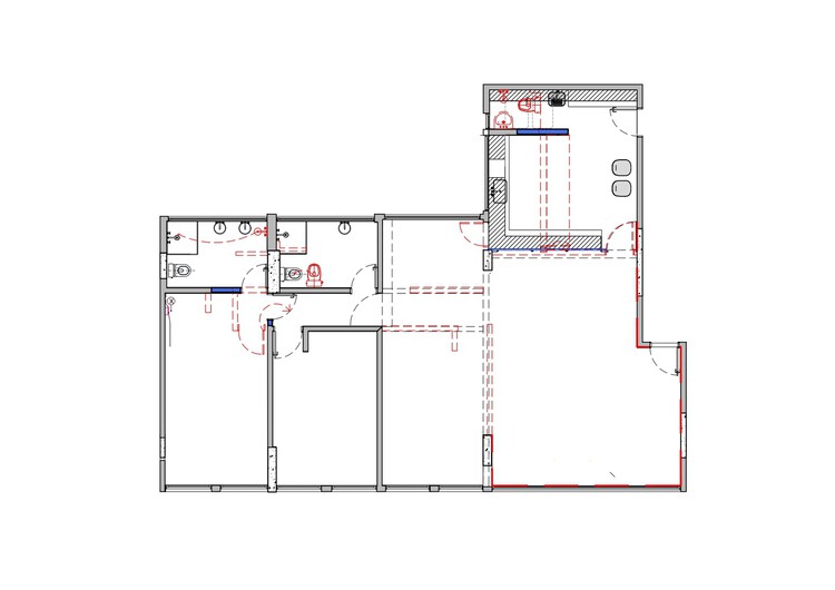
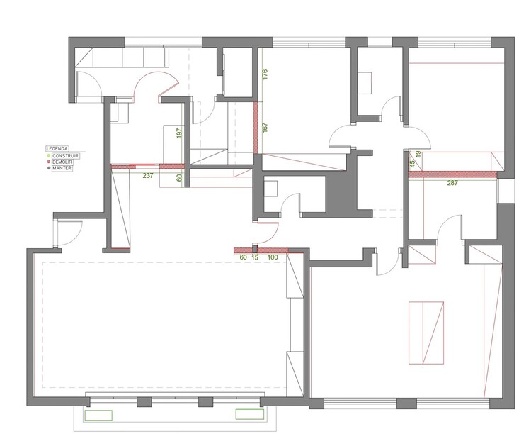
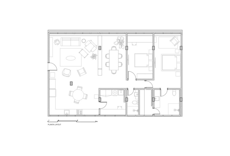
通常,翻新是为了彻底改变空间,或者以更外科手术的方式,改善流动性和隐私问题。 无论要拆除多少墙壁,更换涂料和设计细木工,结果总是在寻找一个更实用、更美观的空间。 对于通常具有标准平面图的公寓,干预它们也是为每个家庭带来独特和更加个性化的一种方式。
出于这个原因,我们在这里带来了十个例子,在这些例子中,不仅可以看到以不同规模进行的干预,还可以看到通过拆除、建造或最终计划来表现它们的不同方式。 值得仔细研究图纸,以了解建筑师如何寻求奖励结构支撑、开放计划和改善空间流动。 在下面检查它们。
来源: АrсhDаilу
客服
消息
收藏
下载
最近

































