查看完整案例

收藏

下载

翻译
The Coast House / Стейси Фаррелл Архитектор
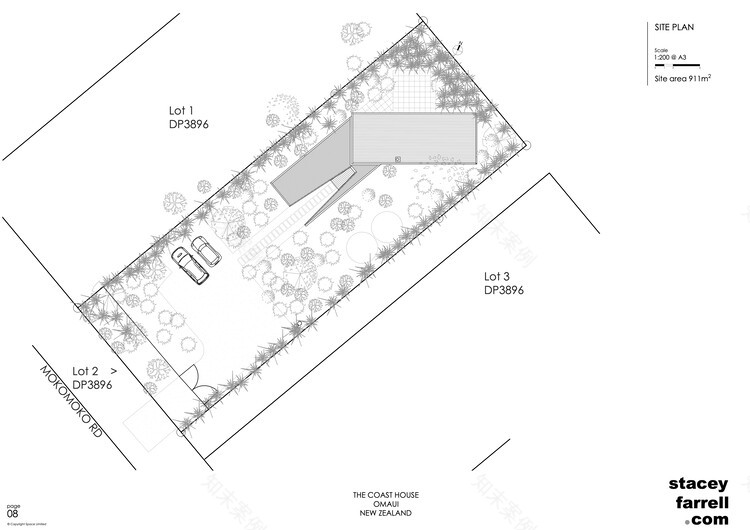
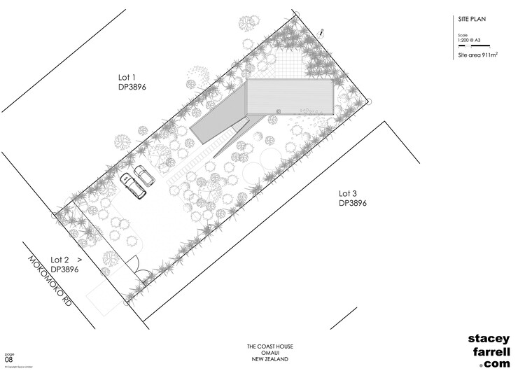
Задача заключалась в том, чтобы максимально использовать сельский район с видом на побережье и изобилием дикой природы… при очень небольшом бюджете. Дизайн менялся на протяжении многих лет, когда владельцы разбивали лагерь на участке, чтобы познакомиться с ним, карабкаясь по деревьям, чтобы увидеть виды с будущих этажей. Клиенты хотели уединенное убежище, которое было бы уютным и роскошным. Дом должен был быть с низким энергопотреблением и минимальным обслуживанием, с облицовкой для поддержки сбора воды. Дом должен был иметь возможность быть запертым и оставленным и использованным другими, когда хозяев не было дома. Дом должен иметь низкий уровень воздействия и иметь возможность перемещаться в случае повышения уровня моря.
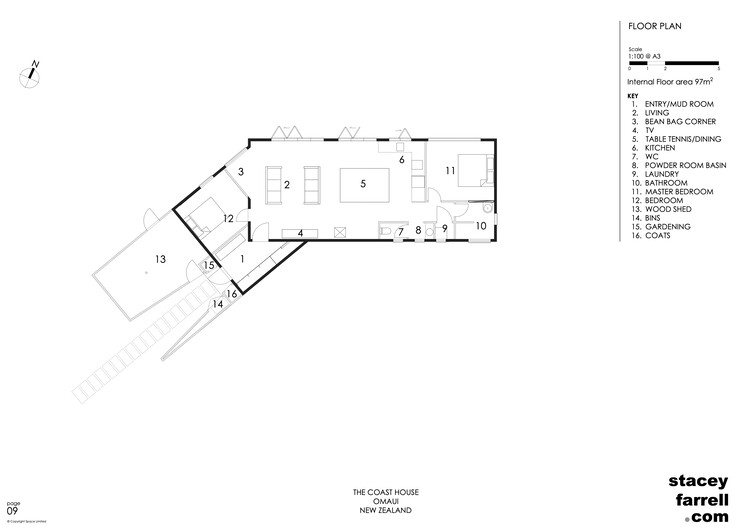
Дизайнерское решение. Этот дом был спроектирован так, чтобы незаметно спрятаться в его суровых южных окрестностях. Пейзажу отдавалось предпочтение. Материалы и цвета намеренно урезаны, чтобы не конкурировать с пейзажем. Вы входите в The Coast House через манящий защищенный вход, вырезанный из заземленной формы, покрытой коричневым гофром. Эта форма обеспечивает дровяной сарай с одной стороны и хранилище с другой. Этот вход предназначен для местных альпинистов, которые в конечном итоге перелезут и спрячут его, создав впечатление, что он растет из земли.
Из сжатого входа дом открывается наружу и внутрь вверх, ориентированный на солнце, виды и теплопотери. Более высокая, одетая в черное форма выходит на побережье, в ней расположены жилые помещения и еще одна спальня. Вы выходите из этих пространств во внутренний дворик, чтобы понаблюдать за птицами и полюбоваться видом на океан. Материалы необработаны и зачищены внутри. Вместо того, чтобы покрывать стеновые панели SIP, мы покрасили их и поработали с их текстурой, чтобы добавить богатство и ощущение домика. Многослойные подкладки были использованы для сокращения палитры внутренних материалов до 2, соответствующих 2 материалам внешней облицовки. У входа есть шлюз, чтобы сохранить тепло и дать место, чтобы сбросить пальто и обувь и найти убежище внутри. В нем также есть шкафы «запирай и оставляй» для владельцев.
Материалы. В идеологии и методах строительства пассивного дома использовались SIP, что уменьшало зависимость дома от отопления. Сантехнические и электрические приборы не находятся на ограждающих стенах здания, чтобы уменьшить потери тепла. Построенный с изолированным деревянным полом на забитых деревянных сваях, дом можно было переместить, если уровень моря поднимется. Это также значительно сократило земляные работы до легкого касания земли. Ландшафтный дизайн с низким уровнем воздействия оставил проницаемыми участки, включая парковку и подъездную дорожку. Бетонные брусчатки означали отсутствие необходимости в постоянном окрашивании и обслуживании настила. Стальная облицовка с цветным покрытием требует минимального обслуживания и пригодна для сбора воды.
Проблемы преодолены. Первоначальная цена означала, что мне пришлось урезать изрядную сумму с проекта или не строить. Это означало пересмотр облицовки, удаление террасы и переосмысление другой террасы, чтобы она стала патио, а также перераспределение солнечной энергии и резервного питания от батарей на потом.
Источник: АrсhDаilу
客服
消息
收藏
下载
最近













