查看完整案例

收藏

下载
案例简介
Case description
屋主是一对90后夫妻和一只可爱的猫,她们追求时尚,对房子的设计有着比较高的追求,拒绝千篇一律,即使是精装房,也希望能装出特色。未来很长一段时间不会换房,因此,她们希望在特色设计的基础上能对全屋的功能和生活动线进行更好的规划。基于生活的日常出发,寻找高于生活的形式反映当下生活的功能,轻轻的、干净的、将生活所需包围。
玄关一侧巧妙运用了洞洞板的可变性,屋主可以根据生活的需求进行调整收纳,美观又实用。另一侧主要用于收纳夫妻俩的写字,底部镂空方便摆放常用的鞋子。
#玄关#精装房改造#原木风
客厅与阳台打通,打造了一个集吧台、休闲为一体的大横厅。把会客厅和阳台构成一个整体,缓缓拉伸到尽头处的就餐厅。同时,考虑到整体的色调,将原来深色的地板和墙布更换成原木色地板和大白墙,让整个空间变得更加大气与敞亮。
#精装房改造#原木风#客厅餐厅一体化#大横厅
女主喜欢家里在温馨的基调上带点复古的调调,因此,沙发与吧台的吊灯采用了复古的元素,丰富空间的层次感。恰到好处的陈设比例,悠然布置出舒展的姿态,而人置于其中,便能感觉生命之外还有生命。
#精装房改造#原木风#客厅餐厅一体化#大横厅
阳台改造前后,客厅与阳台的承重墙做了弧形处理,让整个空间显得更加圆润与温馨。在色调上,将原来的墙布换成了大白墙,拉伸了空间感。
#精装房改造#原木风#客餐厅一体化#客厅与阳台打通
全家最靓丽的模特-猫宠,一张懒人躺、一只猫、一个球(月球灯),一个台灯,这个小空间是这个家慵懒而幸福生活状态的缩影。
#精装房改造#原木风#客厅#客厅与阳台打通
阳台改造前后,考虑到猫宠的生活,将猫宠的小窝安装在采光和透风都比较好的阳台。猫宠的豪华居所,阳光充足,配置齐全而温馨,在这个家,每个家庭成员都能找到自己舒适的归心之所!
#精装房改造#原木风#客厅#客厅与阳台打通#宠物窝
餐厅采用吧台与餐桌一体化,在材质上选用了原木色系。同时考虑到餐厅的储物需求,设置了一排同色系的餐边柜。整个空间采用了去家务化设计,干净、整齐。在生活动线上采用了客餐厅一体化,实现了客厅与餐厅的零障碍沟通。
#精装房改造#原木风#客餐厅一体#吧台餐桌一体
这里既是健身房也是客房,有客人时放下墨菲床即为临时的客房。平时打开联动门,在空间上实现了与客厅的零障碍互动。每个空间,都有自己专属的空间形式和理想的内在精神,似隔为隔,似断又连,酝酿浪漫。
#精装房改造#健身房#多功能房#莫非床
夫妻俩大部分时间都是居家办公,因此书房的设计上更多的是强调舒适性以及与其他的空间的互动,书房与客厅、走廊之间的墙体都进行拆除,以透明玻璃取代。书房的位置设计在光线充足的地方,既宁静又明朗。原木色的衬托中,由日光指引,开阔了广大视野。
#精装房改造#书房#原木风书房
主卧更换了地板和墙体颜色,更换后以原木+白色为主色调,摈弃了复杂的造型,整体设计布局充分照顾到生活主题,每处设计都十分贴近日常习惯。因为男女主人居家办公时间比较多,因此考虑到冬天居家的舒适度,主卧也安装了暖气片,不管室外如何寒冷,室内和煦如春风。
#精装房改造#原木风卧室#卧室
因为飘窗不能打掉,结合生活需求打造成一个集休闲、收纳为一体的休闲空间,休闲时一本书、一杯茶,雨天听雨,晴天看云......
#精装房改造#原木风卧室#卧室#飘窗
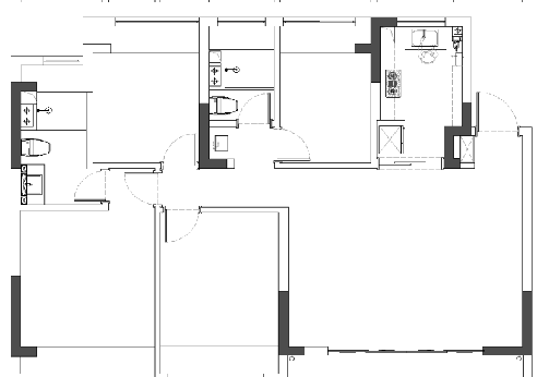
原始户型图
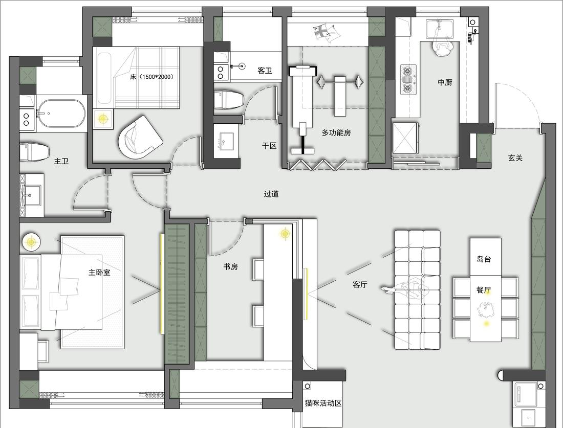
装修后平面图
客服
消息
收藏
下载
最近























