查看完整案例


收藏

下载
JIUMUTANG DESIGN
九木堂设计 60期
潮城里
一座每层风格迥异的别墅
新中式
1 FLOOR
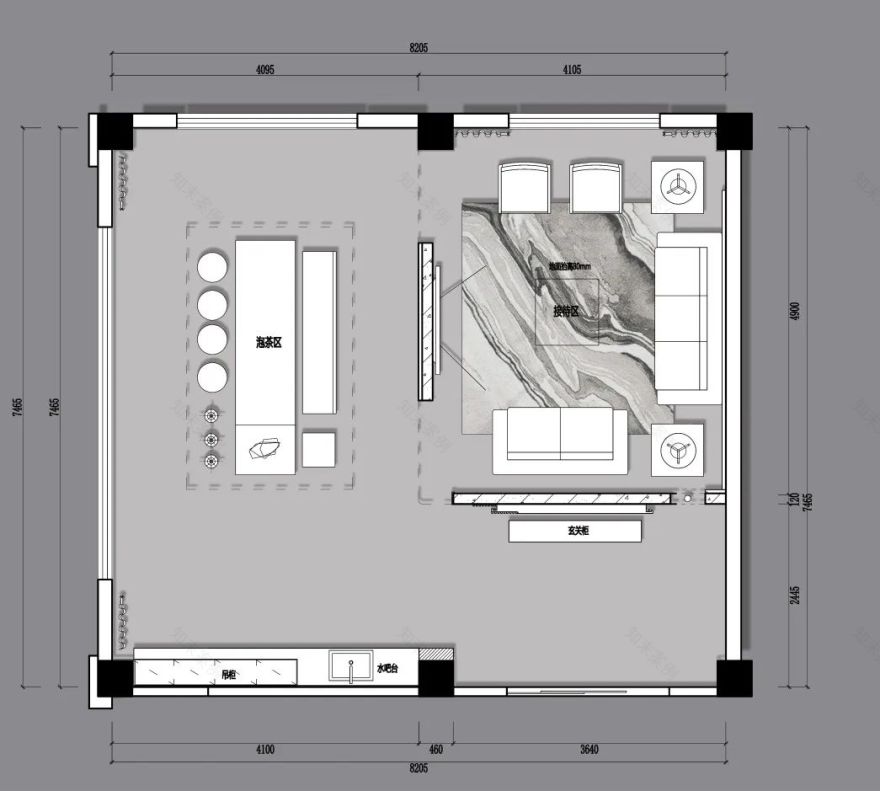
一层
进入别墅一层大堂,入眼皆是简洁自然的中式美感。挑高的空间没有过多的鲜艳配色,容易显得刻意少了些自然过度。棕木色和大理石纹理质感温暖质朴,令人感受其宽广境界。
在纵向维度的建筑上,这里使用多种元素的朴素材质,形成低空到中空,不同层次错落于多个不同的功能空间。区分于以往那套固定、重复的空间规划,一层的家居动线更趋向于增添更多可能性。
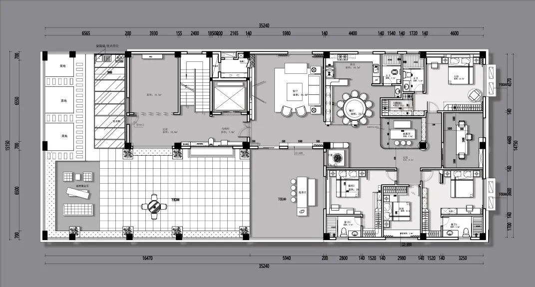
4 FLOOR
四层
这一层空间被设计得仿佛一个新中式展馆,从门厅到走廊,再到餐厅及客厅,每一个区域都有不同的美感。跟随动线的顺序游走整个空间,感受色彩、比例、对称以及几何等多种元素在其中的艺术之美。
空间的每一处都浸润了各种中式韵味美,将复杂繁冗的设计造型都剥落,用圆润简约的线条与细微的设计特质来引导人感受当下的生活美学。
丰富多维的立面造型与日常生活场景充分交汇融合,自由、开放、独具特色的空间场域,融合影像、绘画、茶艺、书法、建筑等多重艺术氛围,营造理想家居的模样。
休憩场域更强调让人归返内心的宁静,在简约的纯粹中感受呼吸吐纳间的自然能量。我们在现代家居与艺术美感的交织之间,为生活注入让精神如诗意自在的灵感家园。
THE END
编辑:Zone
供图:潮州市九木堂装饰
©本文版权归“潮州市九木堂装饰”所有
客服
消息
收藏
下载
最近
























