查看完整案例


收藏

下载
项目名称:美术城
项目面积:260㎡
设计风格:现代简约
主案设计:武登高
深化设计:方琳、易高
案例
Plane structure chart
平面结构图
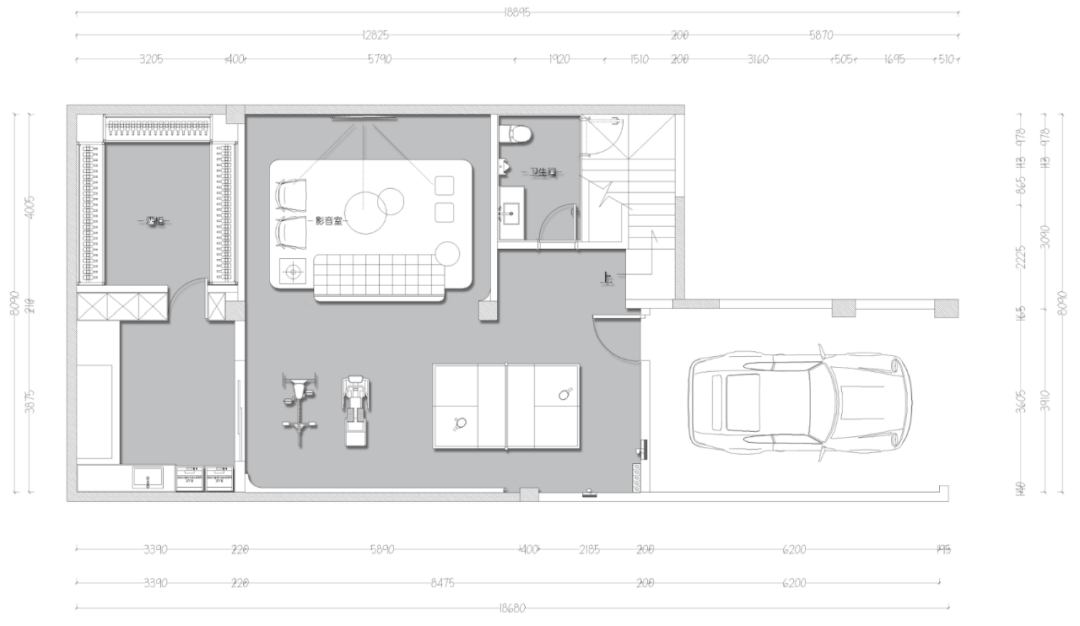
▲负一平面图
▲一层平面图
▲二层平面图
Rendering display
效果图展示
▲门厅
▲门厅
门之后,是身心的居所。以玻璃隔断作为开始,增强家的艺术气息。定制衣柜集收纳、便捷于一身。中间镂空随手放下负担枷锁,弧形拱门休息台划出专属的换鞋区。
▲餐厅
▲厨房
进入家中第一个是家中的餐厨空间,二者之间以玻璃推门作为隔断相互联系又彼此独立。厨房利用简单 U 形操作台,留下充足的活动空间,操作台根据业主习惯进行布局。
餐厅中西结合,以水吧台与餐桌结合,更符合现代时尚的生活节奏。利用墙体改变动线,让餐厅趋于独立。与家人一同,享受美食享受当下。
▲客厅
▲客厅
从餐厅穿过,后方是家的核心区域之一——客厅。一侧是通往户外的通道,生活的另一种开启方式。简洁的颜色,舒适的沙发无不在彰显生活的极简美好。以砖红色为配色,作为空间点缀。电视机背景墙层次分明,以灯带装饰。木质的背景板无形之中增添几分温润。
▲二楼中厅
▲二楼书房
视线随动线移步二楼,这里相较于一楼更加安静。将二楼中厅设置为起居室,睡前起后不失一处好去处。舒适的沙发或坐或躺,使用方式多样。这里是家的私密区,给业主打造随心所欲,想怎么样就怎么样的心情。
书房有着多面采光窗与户外交流,更好的沉淀心神投入工作学习之中。墙面搭建简易书架,将户型缺点变宝。
▲一层南卧室
▲二楼北卧室
▲二楼南卧室
▲ 二楼公卫
卧室作为一天的休息之地,设计师简化其装饰,避免给居者造成干扰。大面积的采光窗可以让空间与自然更贴切,让居住体验更加惬意。
▲负一休闲区
▲负一休闲区
负一集休闲、娱乐、运动于一体。丰富业主的生活,注重空间本身质感,体现业主的生活品味。注重艺术感的营造,生活要有这快乐相伴。
▲负一影音室
▲负一影音室
另一侧是家中的影音室,U 形沙发布局,将情感聚拢。享受视听上的盛宴。利用灯光烘托出空间的氛围,使生活更加浪漫。
▲负一洗衣房
洗衣房上方采用采光井的设计,让自然光照射。种植绿植点缀,有效避免空间的压抑感。设置墙面壁橱作为收纳,保持空间的整洁,在细节上俘获居者的心。
▼主案设计
武登高
中国室内注册设计师
注册号:ZB20803174
毕业院校:西安美术学院
设计理念:用艺术的眼光雕琢生活
设计风格:中式 简约 欧式极简
从业时间:17 年
易高国际创始人、设计总监
2017 年瑞典色彩学院 色彩专业结业
2004 年--2010 年北京元洲装饰首席设计师
2011 年--2013 年陕西九朝装饰首席设计师
2013 年至 2016 年北京峰上大宅装饰专家设计师
2009 美化家居设计大赛三等奖
2011 获陕西省优秀设计称号
2012 筑巢杯设计大赛优秀设计奖
2013 住宅装饰行业优秀设计师
2014 住宅装饰行业优秀设计师
2015 第三届【锋尚·京瓷杯】新中式设计大赛最佳功能布局奖
2016 第三届中国建筑装饰设计艺术作品展获铜奖
2017 居然顶层精英设计师
2017 年中国(陕西)设计杰出青年
2017 第四届峰尚杯新中式设计大赛 最佳方案奖
2017 首届禾记万佳杯设计设计大赛优秀奖
2017 创意生活设计金蝴蝶奖
2017 商业旅游地产年度优秀住宅公寓设计师
2017 评选为亚太空间艺术大师
2018 金楠奖设计大赛优秀奖
2018 获得第二届西安建筑装饰设计“青年设计师领袖”称号
2018 设计作品《中海百贤府》获得
第二届西安建筑装饰设计别墅类银奖
2018 设计作品《龙湖香醍》获得
第二届西安建筑装饰设计样板间设计优秀奖
2019 金堂奖全国百强先锋榜百强设计师
2019 年度腾讯家居搜狐焦点家居杰出设计师
2019 德国高仪住宅精英榜 TOP108 匠
2019 蒂森克虏伯杯别墅设计大赛经典设计奖
2019 第三届西安建筑装饰设计奖“年度青年设计师领袖”
2020 中国设计新青年评选“城市举荐官”
2020 设计作品《石中木》获得陕西地区优秀住宅软装设计
2021-2022 中国新地产设计大会年度优秀别墅设计师
2021 金住奖-中国百杰居住空间设计师
2022 中国国际空间设计大赛十佳设计师
成功案例:中华世纪城紫薇臻品
白桦林居中海华庭 中海国际 紫薇融侨就掌灯 中海东郡 曲江公馆 曲江尚林苑 曲江兰亭 曲江华府 枫林意树湖城大境 中海铂宫 中海百贤府 紫汀苑紫楹台曲江和园 中海曲江大城 .....
||
点击以下图片查看易高国际更多作品▼ ||
▼易高·案例 |凤凰池 421㎡欧式风格/欧式魅力空间
▼易高·案例 | 曲江大城 240㎡现代简奢/畅享生活小资
▼易高·案例 |曲江大城 200㎡现代风格/感受色彩魅力
▼易高·案例 | 丽彩溪岸庄园 550㎡欧式风格/高级莫兰迪色搭配
▼易高·案例 |
万科大明宫
305㎡现代简约/感受家的温馨舒适
▼易高·案例 |曲江九里 118㎡新中式 /中式端庄大气
▼易高·案例 | 紫汀苑 248㎡美式轻奢 /奢华雀语
易高国际工程直管
100%自有工人、零增项、零增量、诚信一口价
↓
中国设计百强品牌/专注别墅大宅设计/施工/软装陈设
易高国际秉承
【出于易高·必为精品】的施工理念
【受人之托·忠人之事】的服务理念
竭诚为您提供全案设计服务
·
关注我们,了解最新动态
还您一个独一无二的家居生活
客服
消息
收藏
下载
最近
































