查看完整案例


收藏

下载
现在我所见到建筑之美,我知道它是由内而外慢慢地发展起来的,是从那住在里面的人的需要和他的性格中生长出来的,住在里面的人才是唯一的建筑师。
—— 梭罗《瓦尔登湖》
「引光作序,自然共息」
客厅空间
当居住空间属性由隔离转向与自然的融合,我们开始重新定义界面间的关系,四方狭窄的盒子已然不能容纳须臾万里的灵魂,我们想要更舒展明媚的居所,与自然共息,亦能承载飘摇的风雨。
以敞开的姿态迎接光线的汇入,物体间不同的材质肌理被光的语言放大,彼此间显得层次分明,刚柔兼具。
简单的黑白灰色系填入,极简的外观下,裹藏的是精致而丰沛的内在精神。
空间内与外的关系,被墙角自然生长的绿植模糊,枝桠够向室外的光源,赋予静态空间蓬勃向上的生命力。
楼梯隐入电视背景墙后,与穿插的线条体块形成天然的有机连接,结合墙角的绿植,恍若穿墙而入,到达一个全新的次元维度。
电视背景墙延展向上,与二层形成视线的互通,体现整体感的同时又极具建筑般的张力,北侧引入玻璃采光,丰富空间明度,形成贯穿的光线体验,在一日不同的时间下,光影缓缓移动变换,即使身处钢筋混凝土的森林,亦能感受来自自然最直接的悸动。
「艺韵流溢,烟火人间」
餐厨空间
浅灰色地砖一路延伸,糅合起客厅与餐厅两者空间。沿窗设置操作台面,从而将交互空间裹挟于一处,居住的艺术往往不光是居住本身,交流也同样是一大课题,满足味蕾之际并不妨碍参与亲人间的闲谈。
而来自厨房的食物香气满溢全屋时,也恰是这人间最具烟火气的时光。
弧形线条迎合立体的几何空间,桌面的暗纹暗喻着循规蹈矩的外表下,不断跳跃涌动的心脏脉搏。暗处的花哨与明处的井然相映成趣,空间兼具多重的意蕴表达。
「简色充盈,泊心而居」
卧室空间
空间的极简设计,也从另一层面为居住者的生活,留下更多可供填补丰盈的场所。
拓展户外空间纳入主卧,设置休闲区域,为二层空间提供多属性的功能定位。
铺陈更为清浅的色调,承载洁净惬意的氛围感受,通过柜体的延展,为休闲区域提供置物的可能,闲暇时刻,安坐于窗边看城市明灭的灯火,别具意味。
卫浴区三分离的形式,在洗手台对侧设置次净衣柜,生活的体验感被推敲打磨之后,刻画入空间的形态体现,这便是设计赋予生活的意义。
设计师摒弃过多繁复的色彩,选择置入低饱和度的着色,视觉体验与感官享受同频共振,恰如其分地包裹疲惫的灵魂。
清晨与日暮,出行与归宿。家的意义在一次又一次的出走中,显得弥足珍贵。起码这世间有一处,代表你矢志不渝的爱与承载。
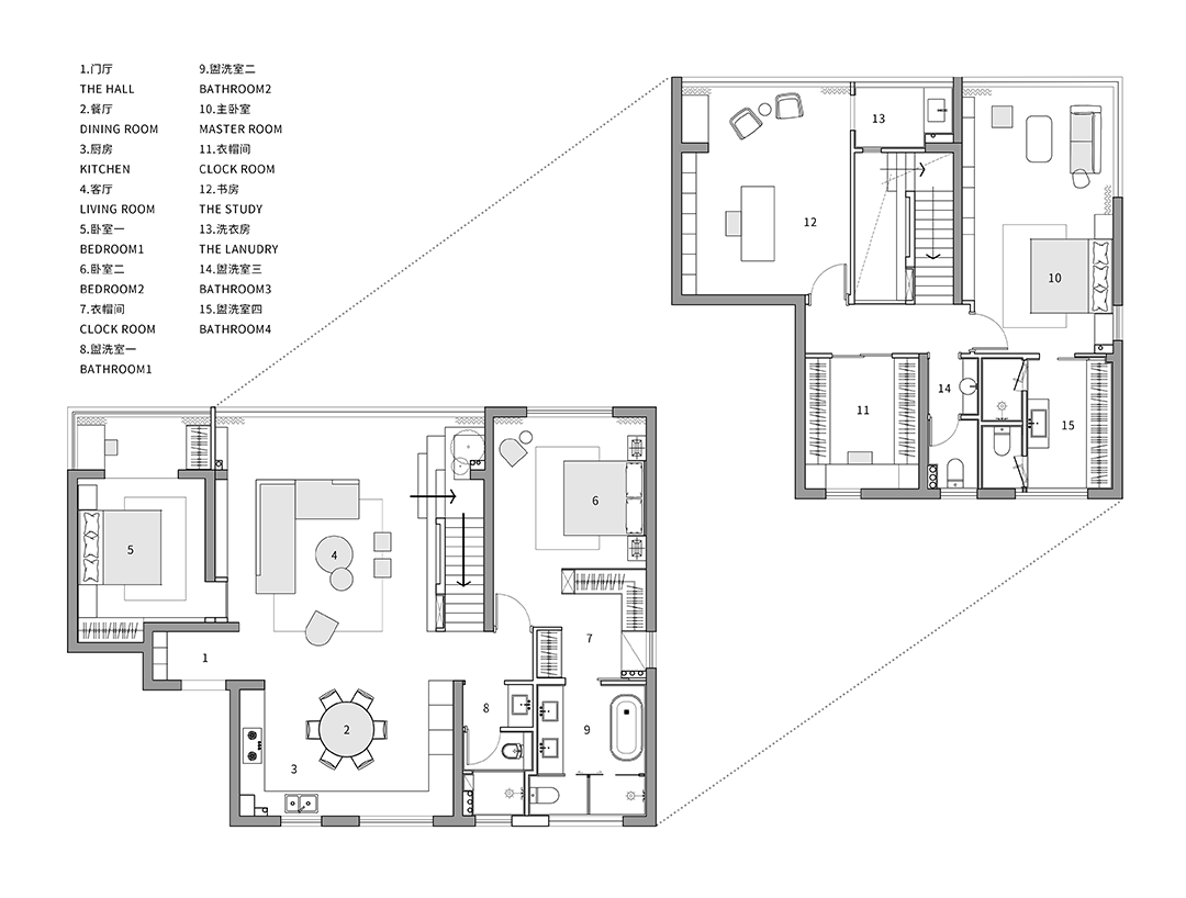
平面图
DESIGN PLAN
项目信息
ABOUT THE PROJECT
项⽬名称 | 跃境
设计公司 | 榀象设计
项⽬地点 | 浙江·温州
项⽬⾯积 | 220㎡
主案设计 | 池旻烨
项目摄影 | 吴昌乐
文稿来源 | 橙设传媒
设计时间 | 2020.03
完⼯时间 | 2022.12
岩板团队 | MYHOME明禾吉利·欧洲精品瓷砖
瓷砖团队 | 唯美L&D陶瓷
木作团队 | 铭森木作
橱柜团队 | VIFA威法高端定制
客服
消息
收藏
下载
最近






































