查看完整案例


收藏

下载
光洒落在哪里,如何洒落
影子又在哪
以及表面怎样黯然,怎样生辉
又或怎样拥有深度
以传播“人居美学”为使命的GREENZONE 绿众木通过新的场所的建构、重塑,借此更新品牌的具体形象。体验馆由原本的两层仓库改造而成,外立面水平和垂直排布的格栅在一定程度上有效地消解了建筑的体量,呈现一种隐约的通透感。
情绪转换
而平面功能则依据行进路径灵活布置,避免开门见山的直白表达,入口处内退出有着起承转合作用的半围合式灰空间。静默和流动虽为迥异的两种状态,有时却可以当作同义词看待,尤其对于水而言,无论成池一片或是细流慢注,静默不语与潺潺流动同样寓意深刻。
从外部穿过转折的汀步进入室内,情绪由喧闹的、外放的、公共的场域过渡到宁谧的、内向的、私属的空间。临近的建筑立面所产生的光影反射于水面,浮现“清风徐来、水波摇曳”的生动情境。
游园意象
平面布局的长短、宽窄、尺度对应三维场域里的节奏起伏,随着动线的推进,建立高低错落的空间体验感。水平延展向来是运动的符号象征,接待区前台与抬高的等候区彼此咬合,使不同材料的空间体块之间具备联系、相互衔接,同时借助二层外露的展示台底面垂掉而下的吊灯构成非对称的均衡感。
居于一隅的等候区因入口处剪力墙的存在而生成封闭的立面,朝向外部则由格栅与玻璃结合,转折的虚实之间,创造了若隐若现的立面景观。作为动线转换的主要场所,不同路径交织在一起,循着踏步可以去往二层,路过汀步到达中庭的休闲区,也可以转而进入日光一泻而下的陈列区,灵活多变的动线赋予了空间游园的东方意象。
倘若把建筑物当作一个纯粹的阴暗体块,然后试图引进光来,就像在凿空黑暗一般,此时,光仿佛是渗入的一种新体块。露台式天花格栅的安装展示产品同时,与顶面开口裸露出的梁体结构在一定阳光角度的照射下,投射于粗砺的墙面,构成了倾斜的粗细光影,通过玻璃茶台的反射,镜像出活泼的、有生命力的自然光影。
进退关系
从使用者或者居住者的视角出发,庭院是内在世界的精神外延,涉及人与自然、人与空间、空间与空间的关系以及场域气韵流动的走向。以一层天花为界面,凭借有序排布的格栅围合出互为“他借”的空间,体块的进退之间,穿插着横竖的“窗口”和半高的玻璃围栏,天光晕染而下,使木作更具有人文温度的亲近感。
有别于辟出的独立产品展示区,空间作为一种行之有效的物质载体,立面、地面与天花等可视面成为了最好的产品展示面,体现原始面貌、色泽表情、肌理触感、建构美学和工艺方法。所以,室内空间庭院化,在东方的审美意识里,向内生长似乎论及自我追求的哲学范畴,兼顾谦逊、自省、内敛的性格色彩。
材料本体
空间存在于它自己的领域;它与生活有着实体上的紧密联系,而这种可触及的实体无不由材料所构成。对于任何材料来说,它都有自然临界点的存在,如板面压槽、轻盈的屏风、砖块的交错方式或者通透正方体的叠加出现,真实地展现材料生命的组成。在室内外不同光源的氤氲下,冷暖对比,呈现出微妙的视觉表情。
单一功能转变为多功能的定义,除了空间多重属性的需求,也成为了环形动线的主要活动场所。旋转楼梯而上,与前台区垂直楼梯形成前后的补充关系,如此一来,便于二层灵活路径的安排。同时,留白是不规整空间里有效的处理方式,临近楼梯平台的一池静水,暗示入口的水蔓延至内部,水的流动由无形走向了具象的所在。
生长之光
在安杰伊·斯达休克看来,事或物按照自身的进展终结、消失或者不复存在,而当自己观察和描摹它们时,仅仅是由于它们使光收到了折射,由于它们塑造了光,给予了光一定的形态,使我们得以了解、认识。二层通过顶部的开口,天花与立面间隔出适当的距离,斜面的形体处理更有利于捕捉光的动态生长和行为方式,从而使建筑成为光的容器。
关于光的肌理表情和敏锐感知,对于观察了室内实际景象之后的彼得·卒姆托来说,值得由衷的赞叹:“光是什么样子呢?它很棒!我肯定你们也有同样的体验。”光作为非物质的形式存在,虽然无形却借助构筑物的外在轮廓或内部空腔来描述自己,并通过有意识的节奏律动塑造出生动的阴影,同时因时间的流动和物质的承载而变得意义非常。
从品牌的自然性策略由此推导出光的灵感来源,光作用于物质,犹如设计建构于空间,抽象性思考逻辑转变为具体的表象特征,而承载着生活方式的革新和未来愿景的实现,在空间被完整地建立起来时,契合品牌诉求的具象形态逐渐变得清晰可见,GREENZONE 绿众木体验馆的最终呈现未尝不是一种新的尝试。
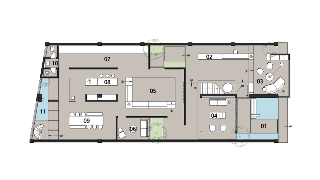
△原始平面图
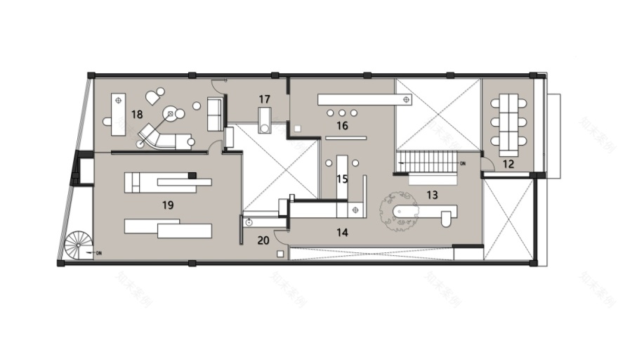
△平面图
项目名称|GREEN ZONE 绿众木体验馆
项目业主|广东绿众新材料有限公司
项目地点|中国 广东 佛山
建筑面积|600㎡
设计时间|2021年11月
竣工时间|2022年8月
设计机构|城饰设计 / CITY DECO DESIGN
设计主案|霍志标、黎广浓、练彬彬
设计团队|黄浩斌、卢俊杰
软装设计|城饰设计 / CITY DECO DESIGN
照明顾问|盛田嘉
项目施工|叶忠波
项目摄影|隐象
建筑摄影 / 欧阳云
客服
消息
收藏
下载
最近

















































































