查看完整案例

收藏

下载
本案业主夫妻与女儿同住,平时也是一家三口,偶尔才会有亲人和朋友做客,所以在原来的户型布局中需要增加多一个功能房,同时希望女儿的房间可以有更大的衣柜,以及书桌和布.偶的收纳功能。
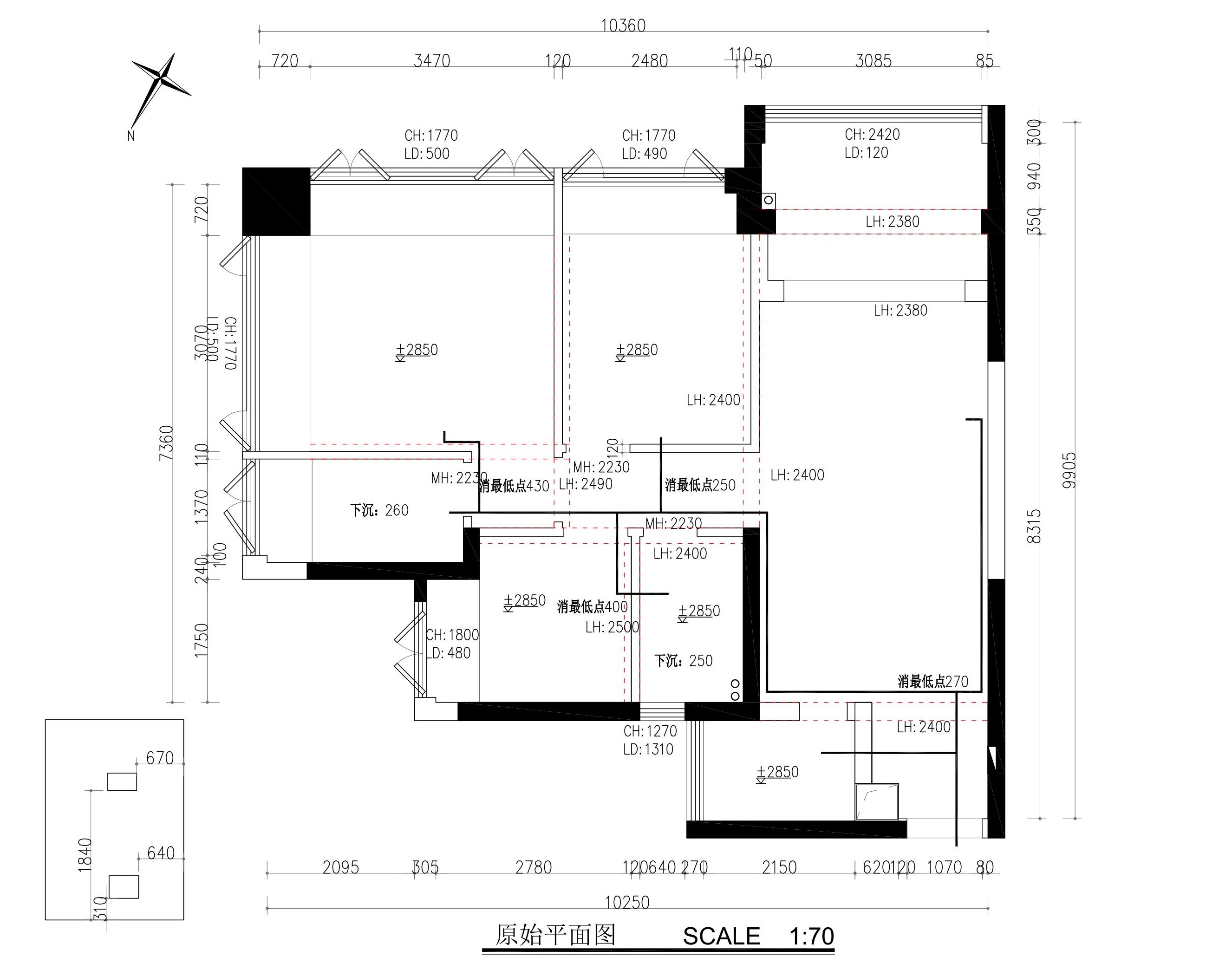
原始户型图
1.入户需要鞋柜,方便进门或出门使用
2.厨房位置偏小要考虑使用功能和采光
3.主卧室衣柜不好摆放,需要大衣柜,同时保留卫生间
4.走廊偏长且采光不够,女儿房希望增加更多的储物功能
5.书房需更多功能,完善书房功能
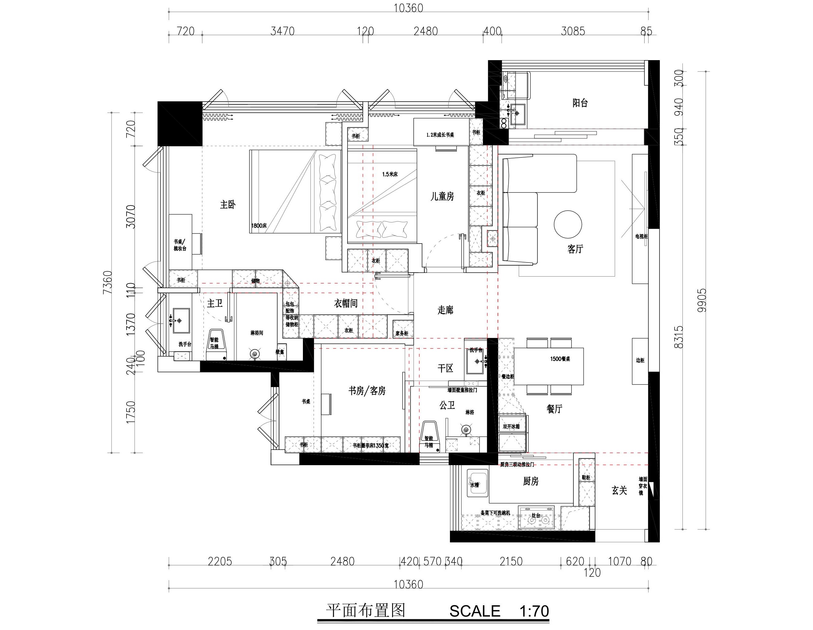
平面布置图
1.利用厨房烟囱位置改内嵌鞋柜,增加鞋柜功能
2.原厨房墙体打掉,将厨房门做成三联动推拉门,门口整体打开让厨房光线更通透。将冰箱功能外置于餐边柜,让原本不大的厨房功能,更加简单且利用率更高
3.主卧门位置移动,利用走廊及儿童房的进深,做出衣帽间,同时围合式跟随卫生间墙体增加衣帽间储物量
4.公卫将做干湿分离,洗手盆外置,改变走廊的动线,将原来的走向简化,改变的布局几乎无走廊
5.儿童房进深优势,借一部分给主卧衣帽间,同时儿童房开间不够,借部分衣帽间深度,增加儿童房的面积,整墙的衣柜,更多的收纳
6.书房书柜做隐.形.床设计,可以应对更多的使用场景
玄关
玄关利用厨房外墙做玄关柜,中间预留位置随手放置进门后的小物品、包包等,下方镂空预留灯带。镂空位置高度为15cm,方便放置拖鞋。
厨房
厨房L型料理台方便烹煮动线,橱柜选择隐.藏式拉手的设计让整体看上去更简洁大方。
厨房将原门口墙体拆除改用三联动推拉门,空间感更强,增加餐厅与厨房光线及空气流通。
冰箱外置于餐边柜,解放厨房内的空间,餐边柜350mm与冰箱650mm衔接位置用斜角整墙酒柜,化解过渡不同厚度墙体,也增加柜体之间的互动。
餐厅
岩板餐桌配上皮质餐椅,简约大气,透明餐边柜摆放的是业主的珍.藏,餐桌紧靠橱柜方便物品的拿取。餐边柜吊柜与地柜之间预留600mm收纳使用。
客厅
客餐厅一体,空间更大气,入户右边的木饰面背景墙让客餐厅不会呆板,整体看上去多了几分暖意。
黑色皮质沙发搭配软糯地毯,干练舒适。大理石瓷砖光面的折射让客厅更明亮,电视下方镂空200mm,电视柜悬空减少卫生死角。
沙发背景墙仅预留壁龛做背景墙点缀,暖光吊灯增添了几分氛围感的同时,减少了沙发背景墙的空白和冷清。
卧室
主卧增加衣帽间,两边为顶柜衣柜厚550mm,拐角处为深咖原木玻璃展示柜,侧面转角外同样预留位置装饰柜,可以化解转角的尖角,将整体动线更柔合。
主卫改变开门方向后藏匿于衣帽间后方,更好地保护个人隐.私。门的两边分别是储物柜和玻璃展示柜,为收纳提供更多空间。组合式梳妆台靠窗而立,光线好而不占地方。
皮质床背突显干练,床头两侧抽屉式高脚床头柜,与梳妆台和谐统一,回型吊顶内藏灯带作为主灯,躺.下不刺眼。L型两侧落地窗窗台采光极佳,主卧整体通透明亮。
主卫窗台用百叶帘遮挡,柔和光线的同时保护隐私,一体式洗漱台下方镂空储物,减少卫生死角,墙边壁龛方便洗漱用品的摆放,淋浴区用玻璃推拉门隔断。
儿童房
小公主喜欢粉红色,所以儿童房主调为粉红色,进门右手边为小朋友的玩具收纳区,背景墙用粉白拼接,搭配粉色的小兔子造型床头,可爱又俏皮。
床尾利用承重和床的空隙做了个玻璃展示柜,下方收纳柜在侧方开门。床尾靠近窗台的位置为小朋友的学习阅读区。弧形吊顶侧边预留凹槽暗藏灯带,照明的同时不刺眼,给小朋友提供更好的照明环境。
书房
书房利用窗台的位置垫高做书桌,侧边为敞开式书架。
顶柜下方是可伸缩的折叠床,客人留宿的时候可以拉开,平时不用的时候合上,为空间提供多种使用模式。
卫生间
公卫干湿分离洗手台外置,下方镂空无卫生死角,同时可以摆放脏衣篮等临时储物以及未来扫地机.器.人也可以放置于此,长虹玻璃做空间隔断。镜柜既能满足照镜子又能满足储物,旁边的收纳架方便物品的摆放和拿取,鱼肚白瓷砖上墙,干净明亮。
淋浴间利用原排污管道做双面壁龛,一面用于淋浴间内部,一面用于马桶区域内,储物更丰富。
客服
消息
收藏
下载
最近






















