查看完整案例


收藏

下载
一种恰如其分的意境,从功能出发,去除一切冗余元素,只留下必须的、基本的功能,并将它们用最合适的形式表现出来。
“直线是人为的,只有曲线才是天赐的,自然界没有直线存在,如果有,也是一大堆弯曲造型转换而成的”——高迪,他对曲线的迷恋源于对自然的崇拜,自然就是美,但不是刻意的美,而是有效用的、实用的美。曲线赋予了建筑的“生命感”和“生态性”。
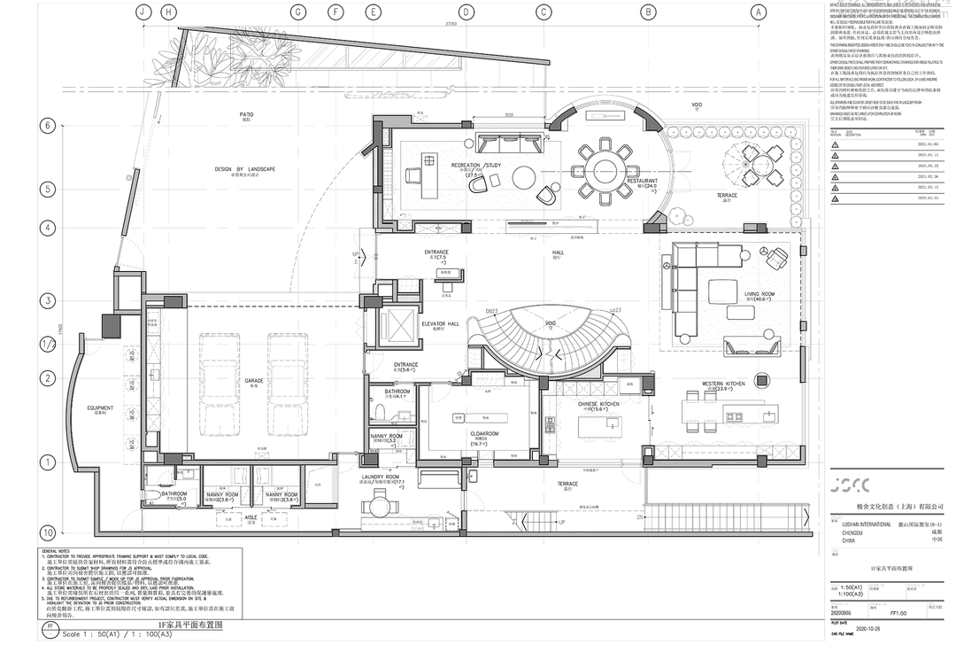
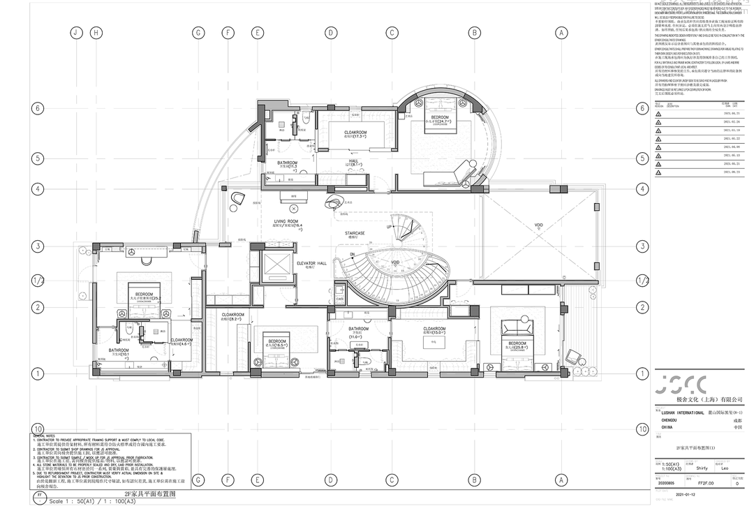
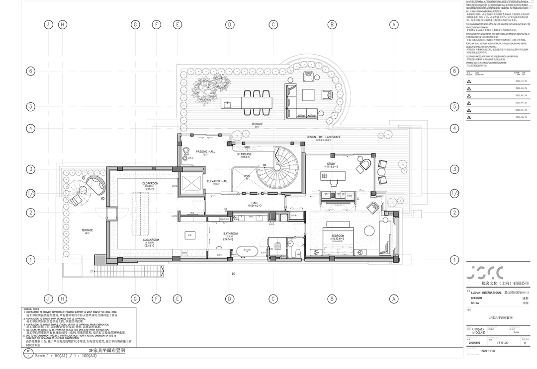
原建筑的弧形楼梯在整个空间中尺度其实稍微过大,我们缩小了弧形楼梯的开孔,释放更多的使用空间,也让原本过大的楼梯比例上和整个空间更加协调。二楼到三楼的楼梯是整个空间的一个大胆的尝试,原方案楼梯对二楼和整个竖向交通中心的采光有一定的影响,我们做了一个旋转楼梯,这样可以减少对三楼挑空区的遮挡,旋转楼梯和一楼到二楼的弧形楼梯交叠在一起无意中产生雕塑般的空间效果。
平面布局本着解决功能的逻辑往往会出现意想不到的效果,这个效果恰恰是合理的,它就应当是那样。这样的优化调整让业主产生了纠结,因为已经在施工了,调整了电梯的位置,意味着改动比较大,基本推翻了原有的平面布局。
项目是一座室内面积为1500平的独栋别墅,设计施工历时三年,回想起来感觉该记录一下,2020年8月,项目找到我们之前,已经开始施工。
拿到原设计平面布局图,发现平面可以优化的空间还比较大,我们重新梳理了空间与空间之间的尺度关系,主人动线和服务动线的关系。整栋别墅共4层,建筑中心的弧形楼梯和电梯串联起竖向交通,我们把原电梯的位置调整一下,使电梯和楼梯之间的交通更直接,这样可以近一步缩短不必要的过道空间,电梯的调整对整栋别墅的动线和空间都提升比较大,尤其对于三楼主卧空间,这样卧室卫生间衣帽间三个空间可以整个南北贯通,形成一个环形动线,空间利用率和实用性大大提升。
别墅所在地的阴雨天气较多,因此对于室内来说,光线极为重要,在平面处理上业主也希望空间能尽量打开,取消非隐私性的必要窗帘,在这两个问题上与业主有过讨论,在尊重业主的需求下,我们认为空间还是需要适度的秩序感和围合感,因为人与人之间,人与环境之间都有他适度的尺度,脱离了合适的尺度,会缺乏安全感,缺乏空间给人的情感传递。最终和业主达成了一个平衡。
和业主接触下来,对项目越发充满激情和憧憬,因为这是很多室内设计师都希望遇见的业主,知道自己要什么,审美和品味及高,注重逻辑,尊重设计,一个好的落地项目,从业主到设计,施工,供应商的配合缺一不可,很庆幸这个项目大家都在往一个好的方向努力。
为了使整个项目自然纯粹,在材料选择上,我们尽量减少材料的种类,所以整个项目的硬装材料只有两种涂料,一种岩板,一种石材,一种木地板,而且几种材料的色系都是统一的,以这样的方式呈现意味着对空间感,工艺,细节,产品都提出了更高的要求,不然整个空间会平淡无奇。
为了使整个项目自然纯粹,在材料选择上,我们尽量减少材料的种类,所以整个项目的硬装材料只有两种涂料,一种岩板,一种石材,一种木地板,而且几种材料的色系都是统一的,以这样的方式呈现意味着对空间感,工艺,细节,产品都提出了更高的要求,不然整个空间会平淡无奇。
项目的实施过程中,避免不了一些无法把控的因素,项目有它的遗憾和不足,这个项目也不例外,业主会和我们一起复盘,探讨对平面的布局,材料的运用,细节的收口,对一些细节收口可以有更好的解决方式,很庆幸能遇见一个这样的项目,也很感恩业主,施工,供应商对整个项目的付出。
△彩色立面图
一层平面布置图
二层平面布置图
三层平面布置图
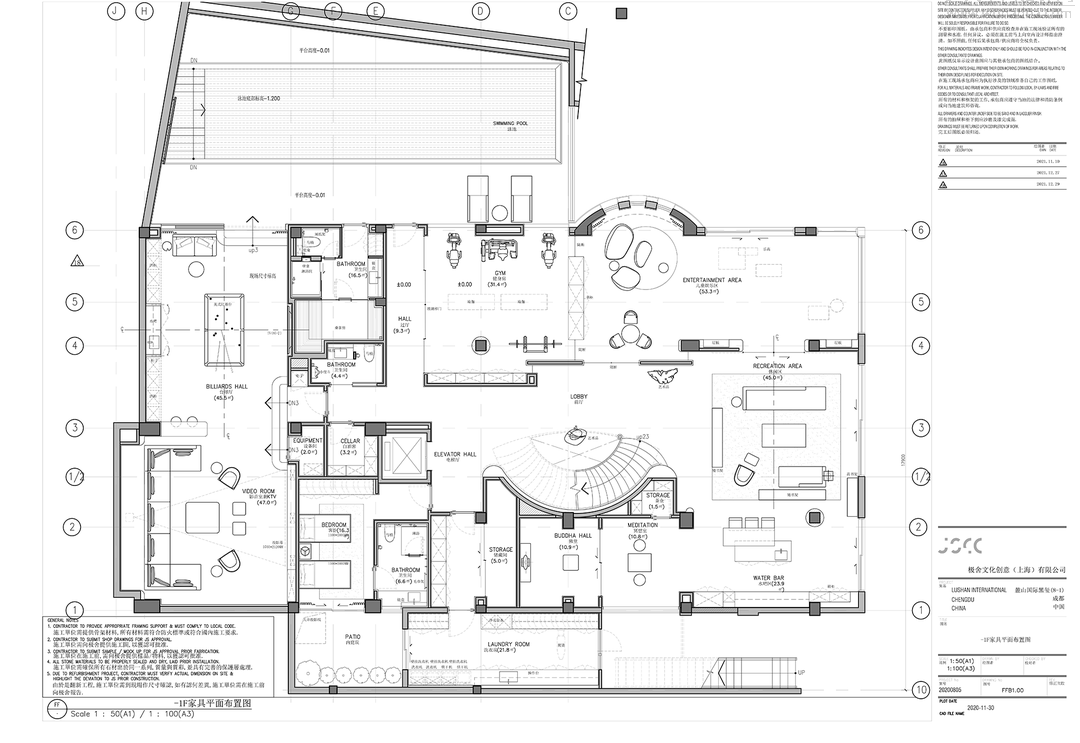
负一层平面布置图
项目类型丨私人住宅
项目地点丨中国
设计公司丨JSCC极舍文化创意(上海)有限公司
设计主创丨丁立任、何勇
施工单位丨广艺空间装饰工程有限公司
灯光设计丨Viabizzuno
项目摄影丨彦铭工作室
材料运用丨艺术涂料、沉香米黄石材、岩板、木地板、意大利树脂涂料等
供应品牌丨Armourcoat艺术涂料、Viabizzuno、Poliform、Rimadesio、Minotti、Luadi、必美地板、特可耐等
客服
消息
收藏
下载
最近















































