查看完整案例


收藏

下载
设计思源
运用直线与色块,通过意识直觉地引导构造,
带来节奏和韵律这些最复本的美,我相信这是一种艺术。
【皮埃 蒙德里安】
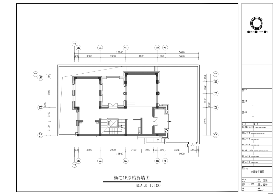
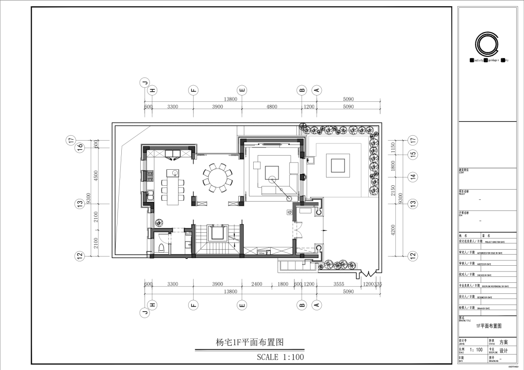
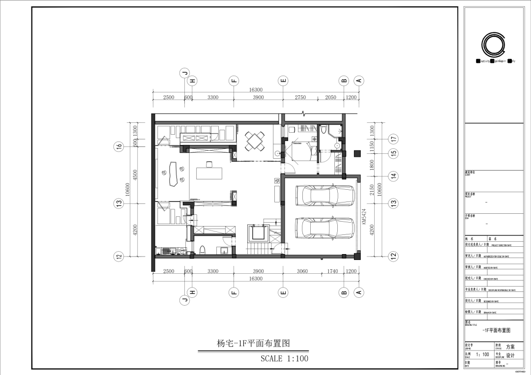
这是一套普通别墅的全案设计,历时两年完成,
照片摄于业主半年后,
拍摄刚刚整理的状态,呈现的是日常的状态。
花的时间打理,获得更高品质的居住感受,
是我们本次的主题,
也是平凡的生活必然因素。
启点
极简/高级灰
我们希望zhe'ge's这个别墅空间,沉静的生活方式,回家后。卸下铠甲坐在沙发里,是期望中的平静与舒适,不喧闹,自有声。
空间节奏
畅通关门部分,深明空间的初心,让更多的阳光进入冷峻里温度,下式的玄关处,为客厨带来更多层次的打感,
整一个空间去中心化处理,全敞开没有硬隔断,让风与音乐在这里自由流动。
灰色调大块面和直线条组成的空间里,置入几件曲线的构造装置和摆件,
在绝对理智中保有相对的感性,是这个家所要表达出的有趣所在。
材质关系
使用的是这个业主钟爱的材质,在,在,是这个空间的大人物
与居主人气场相和,调性十足,
灰色的浅色石材,另一种与金属木饰面,色遮蔽,
在关注度与关注度过视觉等级,
的不同之处与相应肌理的成分进来当安置,
利落又干净,内敛又高级。
地下室力量了一级的吉极简气质,
町重新设置视觉比例,浅色石材被大面积的使用,
格居什格局上扩出了茶室部分,开天窗引光入室,
主要的隔断形式继承一楼的灰玻与黑色哑光陈列架,
丰富了空剑空间点线面的同时也带来节奏感
探索
在完成案例的过程中,
如何平衡业主的心情与主材带来的冷峻感和生活需要的温度感,
关注每个家庭成员对聚合空间与独立空间的不同需求,
享受家庭欢聚的同时保有各自的精神领地
是我们设计的考虑重点,
在这个场域里,
极简主义的生活态度和价值观念已经融合进每一寸空间里。
项目名称
昆仑府别墅
项目面积
面积:512㎡
主创设计
NOVA SPACE DESIGN 孙红 & WEI唯设计 翁维
施工
云禾装饰
项目地点
中国 杭州
项目摄影
张佳宁
客服
消息
收藏
下载
最近



























