查看完整案例


收藏

下载
Moray Housee
公寓楼设计
「Moray House」是位于澳大利亚昆士兰布里斯班河畔的黄金地段的住宅楼项目,由昆士兰精品房地产开发商 Spyre Group 和著名建筑师 Bureau Proberts 共同打造。
这个项目的设计以最大限度地利用河流景观为目标,使住宅与周围环境完美融合。
# 建筑设计 #
「Moray House」在昆士兰州新农场马里街 65 号 4005,占地 1030㎡,共 6 层,其建筑由著名建筑师事务所 Bureau Proberts 设计。
整个建筑外观采用了扇贝形的设计,这种形状既与河流环境相呼应,又是一个独特的设计元素,使 Moray House 在周围建筑中脱颖而出。
其中,最引人注目的是立面上方的大型格栅结构,这个设计不仅美观,还提供了一定的隐私保护和遮阳功能。
在阳光照射下,还会产生有趣的阴影效果。
除了格栅立面外,Moray House 的阳台设计也很有特色,设计师采用了曲线设计,让每个阳台都呈现出流畅的形状,玻璃栏杆的使用,也使得住户可以欣赏到令人惊叹的布里斯班河景和城市天际线。
阳台外还种植了一圈绿植,景观设计 CUSP 采用了当地特有的植物物种,以营造出定制化的居家感觉。
# 室内设计 #
459㎡,售价 900 万澳元起(约 4168 万人民币)。
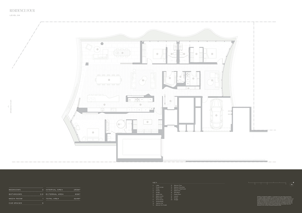
左右滑动浏览项目户型图
室内设计注重细节和功能性,利用中性色调搭配上天然木材和曲线线条,创造出一种高级的朴素感。
开放式起居空间将客厅和餐厅融合在一起,同时又有一定的隔离感。这样的布局既方便家庭成员的交流,也保护了餐厅的私密性。
在客厅设计中木质的地板和白色的墙面相得益彰,皮质沙发、石材茶几,浅灰色地毯,每一个件家具选择和摆件都经过精心的考虑和设计的。
阳台作为室内的延伸空间,与室内空间紧密相连,使室内外生活方式更加舒适和连贯。
阳台上的玻璃门能够完全打开,将室内外的边界消除,为住户提供了无缝的室内外生活体验。这种设计不仅使阳台成为一个额外的客厅,同时还让住户能够充分感受到外面的自然环境。
大型的石英台面和防溅挡板,
营造出清新、温馨的氛围。
同时,设计师还充分考虑了厨房的实用性和功能性,合理规划了各种电器和储物空间,让厨房的操作更加方便快捷。
设置了专业的酒柜和展示架,可以让收藏者将酒瓶按照品牌和产地分类展示。
主卧室位于房屋的正面,拥有通往户外的落地窗,可以享受到河流和故事桥的美景。满墙的衣柜采用了浅色调木饰面柜门,突显出一个舒适和温馨的氛围。
强调了空间的通透感和明亮度,
墙壁和地面都采用了大理石材质,为整个空间增添了高贵典雅的气息。
储物柜、挂衣杆和鞋架等设施一应俱全
从建筑到室内,Moray House 项目的每个细节都被仔细地考虑和打磨。通过融合当地特色和现代设计,打造出了一个充满生机和活力的住宅,为现代城市居住提供了新的标准和定义。
//
Devon-Devon 米兰设计周期间 4 月 17 日至 22 日,新品鉴赏等你来!10 点至 20 点开放,4 月 22 号至 19 点开放。
地址 Via San Marco, 38.
点个赞
点在看
客服
消息
收藏
下载
最近

































