查看完整案例


收藏

下载
2022 London Design Awards 伦敦设计奖
帝豪金融大厦位于深圳罗湖宝安北路的轴线上,作为迅速发展的深圳新笋岗片区的新门户形象,力求为片区树立城市更新与可持续设计的典范。
「帝豪」的前生与今世 THE PAST AND PRESENT OF REGENCY FINACIAL TOWER
一个时代的缩影:罗湖帝豪酒店@1991,© 网络
1991 年,改革开放的深圳,位于笋岗路与宝安北路的帝豪酒店开业;2016 年,帝豪酒店随着深圳城市发展和相应的片区升级、功能重新定位所需,正式拆除重建;25 个春秋,见证深圳快速发展的同时,见证了笋岗仓储区的风云变幻和繁荣兴衰;2023 年,正式完成重建,更名后的帝豪金融大厦已成为笋岗片区的新门户形象。
笋岗区新门户形象:帝豪金融大厦@2023
项目位于深圳市罗湖区笋岗片区,宝安北路与东路交叉口的西北角,改造后成为一栋集商业、办公及公寓为一体的超高层综合楼。
用地面积 5042.31㎡,地上规定建筑面积 49505㎡,建筑高度 199.92m,容积率 9.82,是超高容高集合超高层塔楼城市更新项目的极致典范。
城市微小地块
更新单元
RENEWAL UNIT
OF URBAN MICROPLOT
街区全景,新的高层建筑融合在街区之中
设计手稿 ©
设计主创、柏涛建筑 董事 / 总建筑师赵国兴
高容积率、高复合功能以满足微小地块城市更新的诉求。错动的板式塔楼,不但沿笋岗路东西两个方向形成街角建筑地标,同时建构了南面友好的城市界面。
设计手稿 ©
设计主创、柏涛建筑 董事 / 总建筑师赵国兴
塔楼南北两翼的交错之势,让塔楼在竖向更显挺拔,外在立面更具张力。整体挺拔有力,极具标志性。
平面规划在首层实行人车分流策略,场地西北侧为车行区域,东南侧向城市开放。
塔楼从顶部到底部体量慢慢增大,弧线渐渐展开,如蜿蜒的“溪流”,顺滑往前,一泻而下,一气呵成。
整栋楼拥有极佳的景观和日照条件,满足塔楼各种复合功能的使用要求。
技术突破 TECHNOLOGICAL BREAKTHROUGH
首创“z”型的核心筒:
1、空间模块性,空间利用率高;
2、“z”型的核心筒模块组合,结构稳定性高;
3、在有限的空间里最大限度增加南向采光面长度,短进深提高通风率。
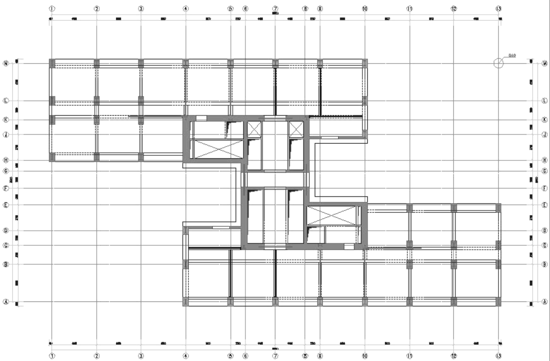
首层平面图 -"Z"字型筒体
典型标准层结构布置图
典型塔楼标准层结构布置在标准层平面中 Z 型的两肢沿 Y 方向布有四根框架柱。裙楼设置悬挑桁架+吊柱的型式,实现建筑裙楼通透视角。
V 型换柱结构及裙楼四层三维结构示意
顶部超高多变斜柱,造就建筑挺拔、立面流线优美的动感形象。
“z”型的核心筒模块为主要模块,连接办公或公寓功能模块,创造一种全新塔楼空间组合模型,兼顾布局与效率。
塔楼空间由两个一模一样的进深比为 3:1 的矩形办公居住功能模块平行布置,中间部分通过“z”型的核心筒模块将两个一样的办公居住模块咬合组成一个空间整体,打破了传统塔楼的空间组合方式,同时实现了对高层公寓平面布置面积的最大化利用,自然采光通风效果较传统的空间布局好很多。
帝豪金融大厦追求形式与功能的合理统一、强调建筑在地文化与国际接轨的大融合,更是力求能为使用者提供高效灵活、具有人文关怀的高质量工作空间、生活空间以及娱乐空间,努力满足区域发展的多元化需求,进一步助力“新罗湖会客厅”的打造。
项目档案
项目名称:深圳·帝豪金融大厦
项目位置:广东深圳
业主单位:深圳市顺豪实业有限公司
设计主创:赵国兴
团队成员:张磊、刘墨、郑枫、黄渊青
施工图设计:PTL 柏涛蓝森、PT 国际
团队成员:王亚杰、王兴法、林超伟、曹嫩、方飞虎、吴昀泽、梁华、黄建全、雷子科、卢奋、魏松柏、文炳基、戴建儒
景观设计:PTLA 柏涛景观
建筑摄影:陈桂明、汪洋
用地面积:5042.31㎡
建筑面积:84738.2㎡
- 推荐阅读 -
客服
消息
收藏
下载
最近






























