查看完整案例

收藏

下载
案例简介
Case description
空间有时候是会有自我意愿,它与使用者会发生着交流,而设计师是翻译这种交流方式的角色,感受,然后平衡双方的关系和意愿,这样的设计结果会让人有“这个空间本该是这样的!“的感叹,这是我们一直想要追求的工作理念。
----2019年底我们迎来了无锡兰芬美学SPA第7家门店的设计工作,设计方向依然遵循现代,自然,舒适的方式去呈现,并且每一处因地制宜,各有特点。这家门店位于无锡市中心西水东商业街,是一个独栋二层的商铺,建筑风格偏现代,铝板包边,大面积玻璃帷幕,而周边一部分建筑为老厂房改建而成,具有一些工业感。
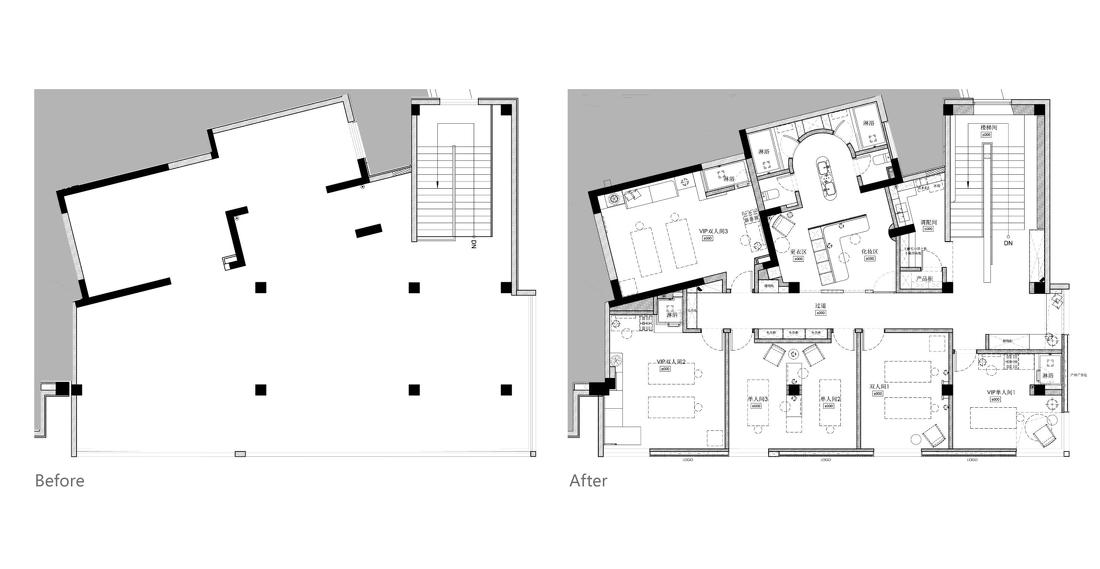
我们从室外到室内整体做设计改造:
1.从整个商业区的位置及动线考虑店面外立面的朝向以及主入口方式,使其入口醒目,融入园区客流主线。
2.简单方式改变了建筑外立面风格,软化原建筑的工业感,平和而清爽的姿态纳入到这个园区,并且利用了室外空间营造了独立花园及一个面朝商业区中心的广告位,增加其附加功能价值。
3.室内空间重组功能以及调整,动线规划,应地制宜的营造出我们想要的现代简洁,优雅,柔和并干练的女性城市度假感的休闲空间。
接待区宁静端庄,类似玄关的预留墙面窗洞,望眼欲穿却又半遮半掩。
赋予自家客厅感的休息区,从简餐台上随意取些甜点,静静坐在温暖的壁炉边发呆~
界线模糊的设计细节让空间都相互连接,却又各自独立互不干扰。
休息区软榻舒适,雅致,并延续到户外花园区。
略有vintage气质的业务咨询区,可以安静放松的交谈。
楼梯空间设计由原先空旷冷清,通过中墙,将其一分为二,空间变小,以及打开窗洞并把控比例后得到充足自然光,使楼梯区变得舒适很多。
定制纯手工编织吊灯及樱桃木实木条天花板,让楼梯间变得原始自然,温暖。
带光的黄铜金属楼梯扶手
自然光的引入让过道空间变得缓慢,放松。
粉色皮制软包与黄铜金属组合的梳妆台。
独立白色天然石材定制洗手台与哑光樱桃木墙面板营造精致宁静洗手间。
VIP护理间
梳妆台
城市花园
每一个护理房间我们都设定不同的人设去挑选壁纸以及展开相应的软硬件设计配置。
原始建筑概况
室外花园是室内休息区的延伸。
室外沿街花园区。
店面接待区入口。
外立面使用樱桃木进行有序铺设整理,使其建筑外表属性和功能得到改变,更加符合品牌外在表达需求。
1F原始与设计平面图
2F原始与设计平面图
感谢观看
客服
消息
收藏
下载
最近






































