查看完整案例

收藏

下载

翻译
Architects:RAU, SeARCH
Area :6150 m²
Year :2023
Photographs :Stijn Poelstra
Lead Architects :Bjarne Mastenbroek, Thomas Rau
City : Amsterdam
Country : The Netherlands
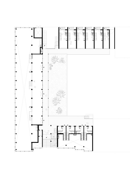
Prefabricated timber houses. The full timber modules are stacked in different ways, offering both single-module apartments and multilevel homes. Half of the 61 prefabricated timber apartments within 'Juf Nienke' are intended for teachers and other residents who work in the essential services within Amsterdam, such as education, healthcare, and police forces. The other 31 apartments are private-sector rentals intended for families.
Circular, nature-inclusive, and energy-positive. 'Juf Nienke' is a circular, nature-inclusive, and energy-positive building with a strong urban presence. Housing modules are stacked high above a grand staircase to create a large vertical void and signal the entrance to ‘Juf Nienke’. Residents climb these stairs to reach a raised timber deck with a beautiful view of the quiet communal courtyard. This raised terrace also acts as a communal street running through to the other side of the building and connects the three housing blocks.
The main 15-meter-high wooden structure rests on a concrete base of parking and a commercial plinth. The semi-underground parking garage has space for 25 cars and 246 bikes. The double-height transparent plinth will have a cafe, shops, shared workspaces, studios, and tutoring spaces.
The materials used in ‘Juf Nienke’ are mainly biobased and recycled; they have a low environmental impact and are largely renewable. The prefabricated timber modules (made HSB & partly CLT) can be paired horizontally or stacked vertically to create a variety of housing typologies. By varying the depths of the prefabricated timber modules but keeping a standard width of 4m the housing is completely demountable. This means ‘Juf Nienke’ can easily be adapted in the future.
By building the housing entirely out of timber we can store more than 580.000 kg CO2, actively responding to the challenge posed by climate change and contributing to a healthy living environment. By prefabricating the timber housing we can lower the amount of waste, often created during construction, minimize the impact on the surroundings and reduce construction time significantly.
The planting of both the courtyard and the raised communal deck has been carefully chosen to enrich the biodiversity. Lining the edge of the raised deck within the central garden are a series of niches for bats and birds and high above the entrance staircase the facade is continued to create a bat hotel for the winter months.
Permeable surfaces like the green roof and the vegetation within the central courtyard maximize the potential water retention on site. The building is connected to the area's heating system and photovoltaics on the roof will produce 140KWp.
客服
消息
收藏
下载
最近











