知末
知末
创作上传
VIP
收藏下载
登录 | 注册有礼

Entrance

2022/08/25 20:58:38
查看完整案例
微信扫一扫
收藏
下载
翻译

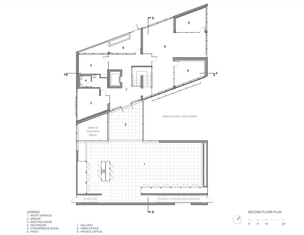
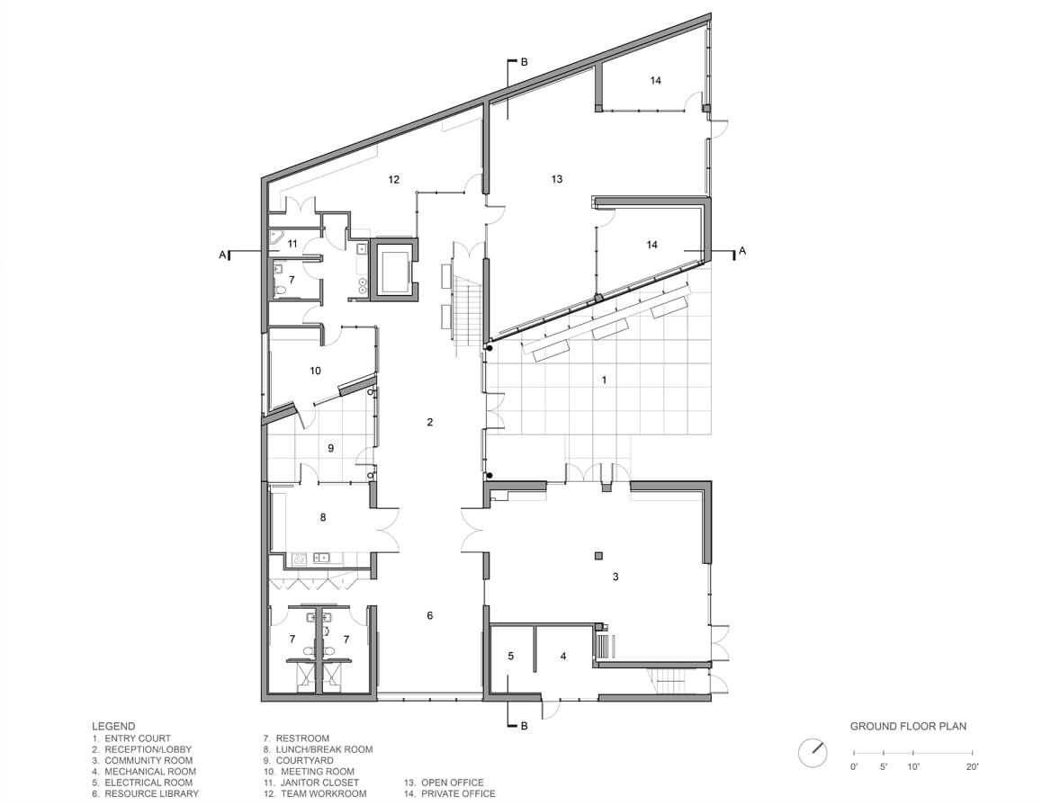
Entrance -0

Entrance -1

Entrance -2

Entrance -3

Entrance -4

Entrance -5

Entrance -6

Entrance -7

Entrance -8

Entrance -9

Entrance -10

Entrance -11
南京喵熊网络科技有限公司 苏ICP备18050492号-4知末 © 2018—2020 . All photos and trademark graphics are copyrighted by their owners.增值电信业务经营许可证(ICP)苏B2-20201444苏公网安备 32011302321234号
客服
消息
收藏
下载
最近