知末
知末
创作上传
VIP
收藏下载
登录 | 注册有礼

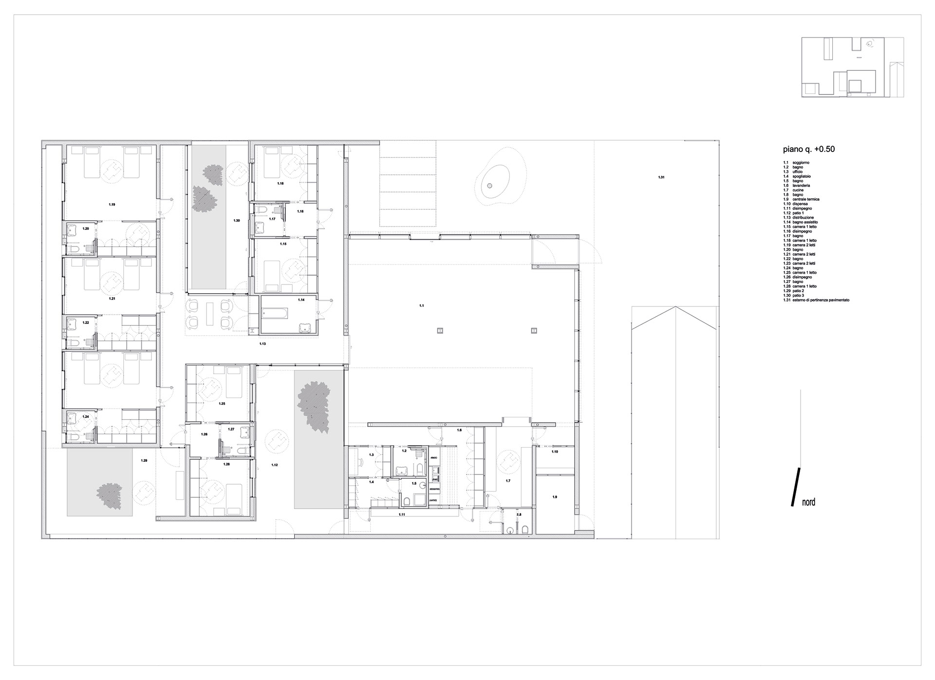
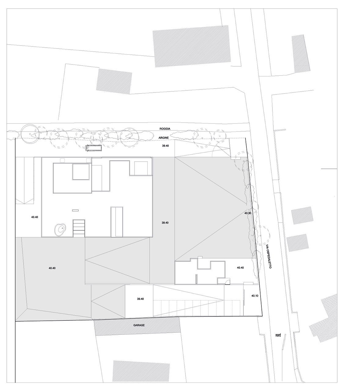
Special House for disabled people

2021/05/07 04:04:31
查看完整案例
微信扫一扫
收藏
下载
翻译
 Special House for disabled people 
			-0
 Special House for disabled people 
			-1
 Special House for disabled people 
			-2
 Special House for disabled people 
			-3
 Special House for disabled people 
			-4
 Special House for disabled people 
			-5
 Special House for disabled people 
			-6
 Special House for disabled people 
			-7
 Special House for disabled people 
			-8
 Special House for disabled people 
			-9
 Special House for disabled people 
			-10
 Special House for disabled people 
			-11
 Special House for disabled people 
			-12
 Special House for disabled people 
			-13
 Special House for disabled people 
			-14
南京喵熊网络科技有限公司 苏ICP备18050492号-4知末 © 2018—2020 . All photos and trademark graphics are copyrighted by their owners.增值电信业务经营许可证(ICP)苏B2-20201444苏公网安备 32011302321234号
客服
消息
收藏
下载
最近