查看完整案例


收藏

下载
:Matt Gibson
到2050年,墨尔本将拥有800万人口,在
Gibson )解释说:“事实上,在国际投资市场的推动下,墨尔本的小型一室公寓供过于求。另一方面,高品质的家庭住房短缺。
背后的建筑商和室内设计师团队–向Matt寻求在狭窄的场地上建造家庭住宅时,所有参与方都看到了为多代人生活创造独特,长期解决方案的机会。
马特·吉布森(Matt Gibson)建筑 设计和DDB设计的“混合用途住宅”
开放视野是设计过程中的关键考虑因素
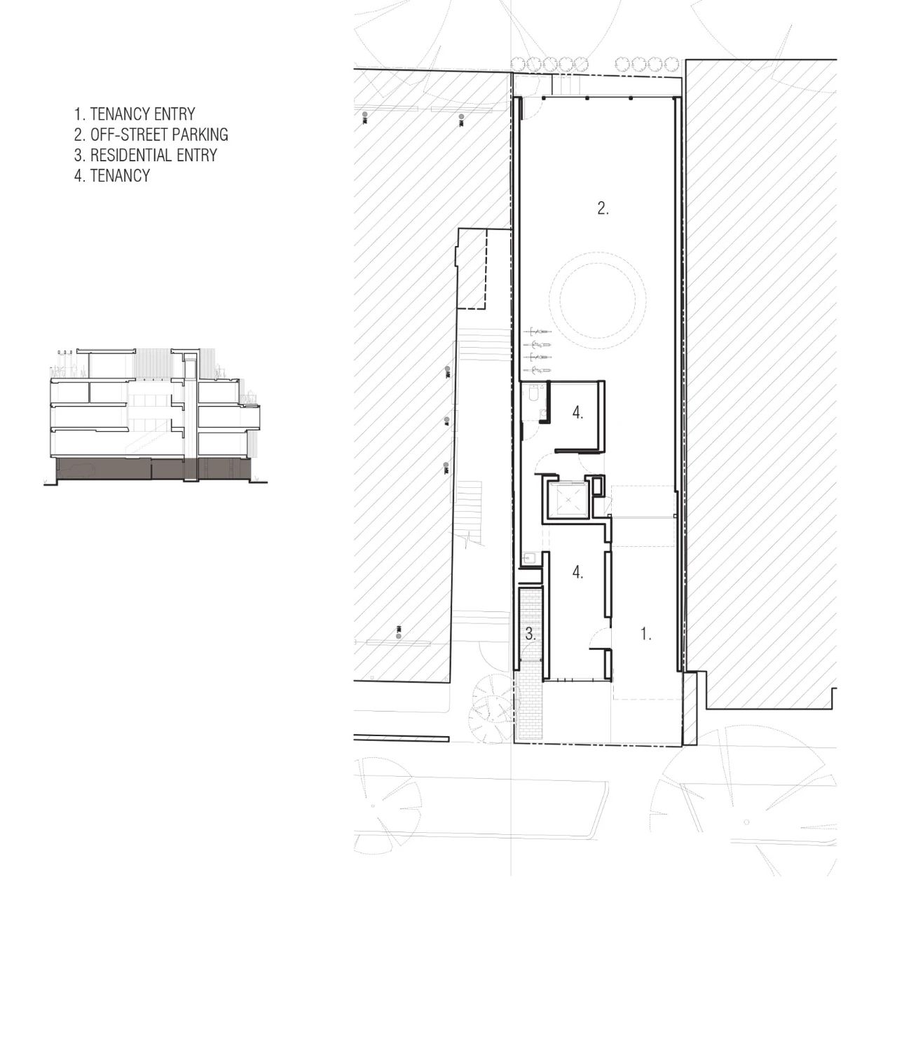
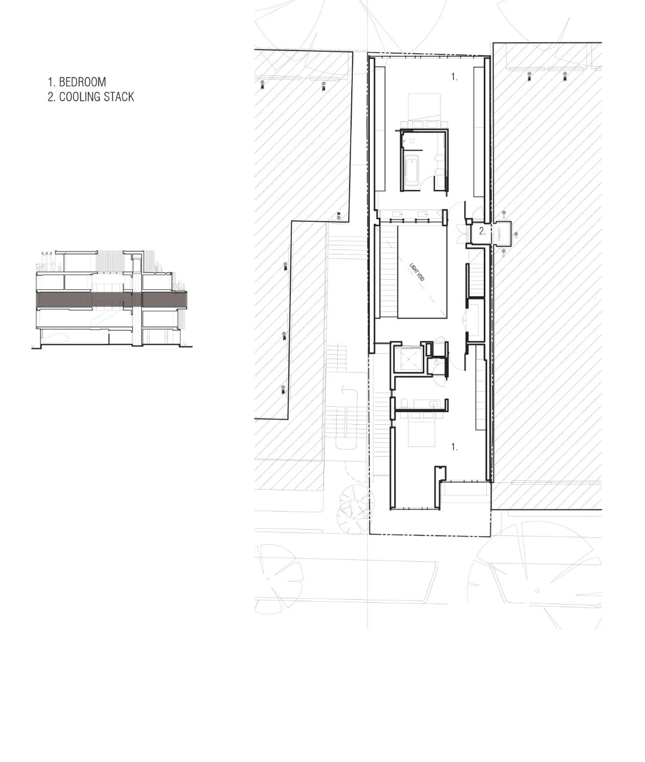
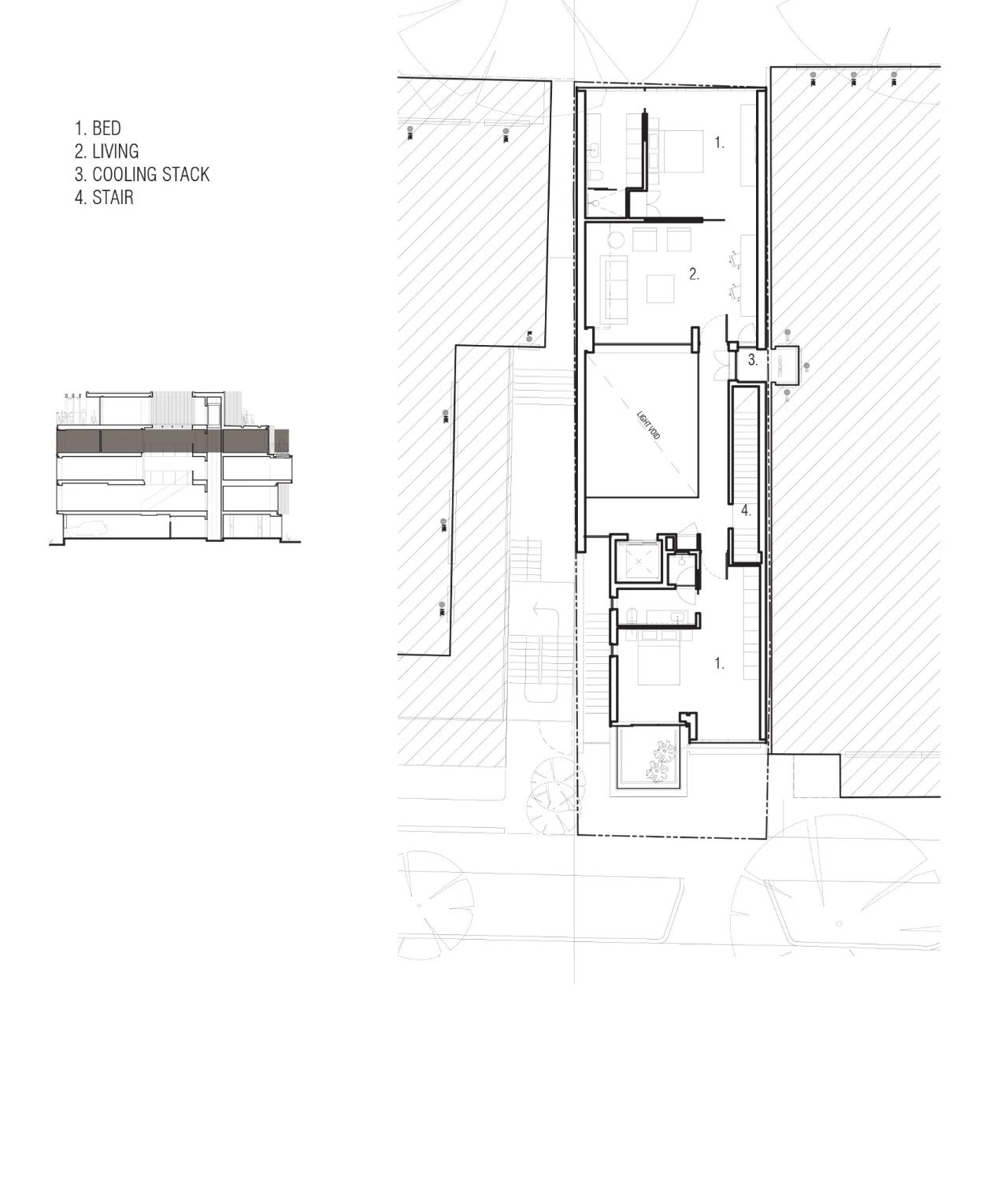
堆叠的房屋分为“区域”,包括公共生活区,个人居住区和静修区
中央垂直中庭在内部提供充足的日光
该房屋可容纳同一家庭的多代人
每间卧室都有自己的套间,感觉更像是独立的工作室
客户是具有远见卓识的建筑商和考虑到未
堆叠的房屋可容纳客人,成年子女和年幼的女儿
混合用途房屋包括10个堆叠的锌盒
在这个狭窄,尴尬的站点上,向上攀爬是唯一的解决方案
为了符合分区要求,该站点的地面用于商业目的
萨莉·塔巴特(Sally Tabart)
“多代人的生活在澳大利亚变得越来越普遍,这在一定程度上受到住房负担能力危机的推动,而且还因为它提供了便利,更好的舒适性并通过共享资源和家庭支持使成本保持在较低水平”。–马特·吉布森(Matt Gibson)。
Matt Gibson Architecture and Design
Matt Gibson
解释说:“多代人的生活在澳大利亚变得越来越普遍,这在一定程度上受到住房负担能力危机的推动,而且还因为它提供了便利,更舒适的环境并通过共享资源和家庭支持使成本保持在较低水平”。。
这个棘手的地点在高速公路的一端和住宅的另一端相对,是一对夫妇(房地产行业专家和室内设计师,他们经营
)与成年子女及其伴侣住在一起的家和一个小女儿。该设计解决方案位于圣基尔达(St Kilda)上的商务区,该设计解决方案既需要容纳大家庭,又有足够的空间容纳大家庭和朋友,同时还要满足分区要求。
客户看到了这个机会,“拥抱内城生活,挑战澳大利亚传统的“四分之一英亩”住房类型”,建筑师马特·吉布森(Matt Gibson)解释说。他和他的客户在尴尬而富挑战性的地点向上走,按照规定将一楼开放给商业用途,并为家庭创建了相互联系的堆叠式住所。面向住宅区的南立面分为十个以不同间隔缩回的镀锌盒子。
居住空间由三个净空区域组成:公共(起居层),个人(卧室层)和静修区(可进入景观和私人开放空间)。马特告诉我们:“每间卧室都有自己的浴室和休息区,从许多方面来说,它们都感觉像是独立的工作室。” “套间服务被堆叠在一起,采取了多住宅的方式,以期将来可能会被使用。” 大而垂直的中央中庭使充足的自然光线穿过各种房间和住宅,从而营造出公寓式生活中意想不到的美丽瞬间。
鉴于人口激增的现实,以及许多人无法承受的房价,我们正在重新考虑长期住房解决方案既可实现又可期望的问题,这一点非常重要。这个混合用途房屋的大小与相邻的排屋相似,但仅使用土地的一小部分来容纳多人。令人鼓舞的是,像Matt Gibson这样的建筑师和行业专业人士DDB Design合作,提出了不影响生活质量的中等密度住所的替代方案,并采取整体方法来实现更可持续的长期未来生活!
马特·吉布森(Mat Gibson)建筑设计事务
马特·吉布森(Mat Gibson)建筑设计事务所的
科林伍德工作室是澳大利亚设计的据点。由建筑师Matt Gibson创立并由室内设计师Karen Batchelor共同领导的12实践在每个领域的紧密互动中树立了声誉。巧合的是,两位设计师都在英国发展了自己的第一把戏,但他们以
交织当地气候的能力是首屈一指的。
马特(Matt)和卡伦(Karen)将他们与志趣相投的客户的关系和合作归功于他们积累的奖项清单。通常,公司受托居住在历史悠久的住宅中,每个住宅都展示了与旧住宅的独特互动。马特·吉布森(Matt Gibson)建筑和设计通过动态地利用光线,运动和材料,将房屋的过去,现在的景观和人们融合在一起。多年来,它无疑为许多快乐的居民带来了更多的收益。
客服
消息
收藏
下载
最近




























































