查看完整案例


收藏

下载
用现代几何的手法和光影的方式表达江南的中式意境。
豐·松竹中餐厅,豐,源自丰盛,丰足,五谷丰登,岁物丰成,年丰时稔;松竹,源自主厨烹饪艺术家“周松竹”,松竹本茂盛,自然本真。
P. 01
P. 02
豐松竹区别于过往中餐厅的设计方式,淮扬板前以及菜品品鉴会的使用场景,让设计对空间布局做了一些新的探索。所以在整体的设计逻辑上,希望去做一些隐性中式文化的表达和视觉传递,以一些现代的几何手法表达江南意境。
P. 03
P. 04
P. 05
项目设计灵感来源于一个芭蕾舞者跳舞的形象,然后演化至空间表达这种曲线之美。另一方面,作为淮扬新潮流中餐厅,豐·松竹的空间一定需要表达东方的、江南的元素。而承载它们的空间载体,来源于空间立面几何折页造型的变化,一方面完成造型设计逻辑的建立,另一方面芭蕾舞者曲线之美可以通过折页呈现,犹如展开一块黑色的画布,再点缀以山、水、松、竹,它们有的是真实而具象的存在,有的是以光或载体表达虚拟意象的存在。
P. 06
P. 07
P. 08
P. 09
P. 10
在诗词中,体量、重量上的对比是一种常用手法,就像史记中写到的“重于泰山,轻于鸿毛”,将它们转化为空间中的山石和羽毛地面。同时通过流水灯光表达入口处抽象的水。视觉上表达力量感对比,以及动静对比。
P. 11
P. 12
P. 13
P. 14
P. 15
P. 16
P. 17
P.18 公共就餐区,因为有品鉴会以及散座厅的两种使用场景的切换需求,所以使用了可拼合组合的方桌,让空间的切换只在空间内完成。同时通过灯光控制,在不同节日改变空间场景氛围,希望通过设计满足空间内容的可变性。顶部层高落差的变化,一方面处理了相应设备,另一方面增加空间视觉上的对比冲击。
P. 19
P. 20
P. 21 板前包厢和圆桌包厢则围绕空间主题,将羽毛从桌面呈现,发光桌面可以映衬杯中酒品,悬石犹如从墙体角落生长出来。墙壁上的梧桐叶则贴合豐松竹起源南京。
P. 22
P. 23
P. 24
P. 25
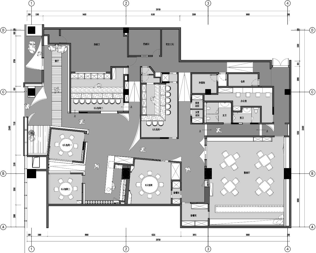
平面规划方案 P. 26
INFO
项目名称:豐·松竹新淮扬中餐厅
项目地点:江苏,南京
设计时间:2022 年 5 月
完工时间:2023 年 3 月
设计公司:禾本设计事务所
主创设计:苏江
设计团队:赧晓芳、黄宇
软装公司:其物软装
摄影:黑曜石
DESIGNER
苏江
禾本设计事务所主理人、创意总监
· 2022 年 40UNDER40 中国(江苏)设计杰出青年
· 2022 年金外滩奖 银奖
· 2022 年 LHDA 国际奢居设计大奖 (复式类)
· 2021 年 IAI 全球设计奖(室内奖)金奖
· 2021 年上海国际设计周国际色彩设计奖
· 2021 年上海国际设计周新锐设计奖
· 2021 年 BDA 包豪斯现代设计奖 优胜奖
· 2020 年“老宅新生”年度最佳商业空间设计奖
· 2020 年法国 GPDP AWARD 国际创新奖
· 2020 年英国 LICC 伦敦国际创意奖
· 2020 年江苏省第十五届室内装饰设计大赛一等奖
· 2020 年中国建筑装饰协会 CBDA 设计奖 金奖
客服
消息
收藏
下载
最近





























