知末
知末
创作上传
VIP
收藏下载
登录 | 注册有礼

阿斯顿•马丁首个私人住宅项目“野奢”设计

2020/12/10 14:14:00
查看完整案例
微信扫一扫
收藏
下载
阿斯顿•马丁首个私人住宅项目“野奢”设计-0
阿斯顿•马丁首个私人住宅项目“野奢”设计-1
阿斯顿•马丁首个私人住宅项目“野奢”设计-2
阿斯顿•马丁首个私人住宅项目“野奢”设计-3
阿斯顿•马丁首个私人住宅项目“野奢”设计-4
阿斯顿•马丁首个私人住宅项目“野奢”设计-5
阿斯顿•马丁首个私人住宅项目“野奢”设计-6
阿斯顿•马丁首个私人住宅项目“野奢”设计-7
Sylvan Rock是“设计敏感度的紧密结合”。创造一个温暖的纹理,大胆的形式和特殊的隐私的豪华住宅非常符合Aston Martin的愿景。我们想让业主和他们的客人以一种有机的方式体验房子的三维感觉,就像你体验我们的汽车一样-没有单一的立面主导。Sylvan Rock完全融入了周围环境和社区,是罕见的完整的住宅艺术作品。 ——Aston Martin合伙企业负责人Cathal Loughnane
阿斯顿•马丁首个私人住宅项目“野奢”设计-9
阿斯顿•马丁首个私人住宅项目“野奢”设计-10
阿斯顿•马丁首个私人住宅项目“野奢”设计-11
阿斯顿•马丁首个私人住宅项目“野奢”设计-12
阿斯顿•马丁首个私人住宅项目“野奢”设计-13
阿斯顿•马丁首个私人住宅项目“野奢”设计-14
阿斯顿•马丁首个私人住宅项目“野奢”设计-15
阿斯顿•马丁首个私人住宅项目“野奢”设计-16
阿斯顿•马丁首个私人住宅项目“野奢”设计-17
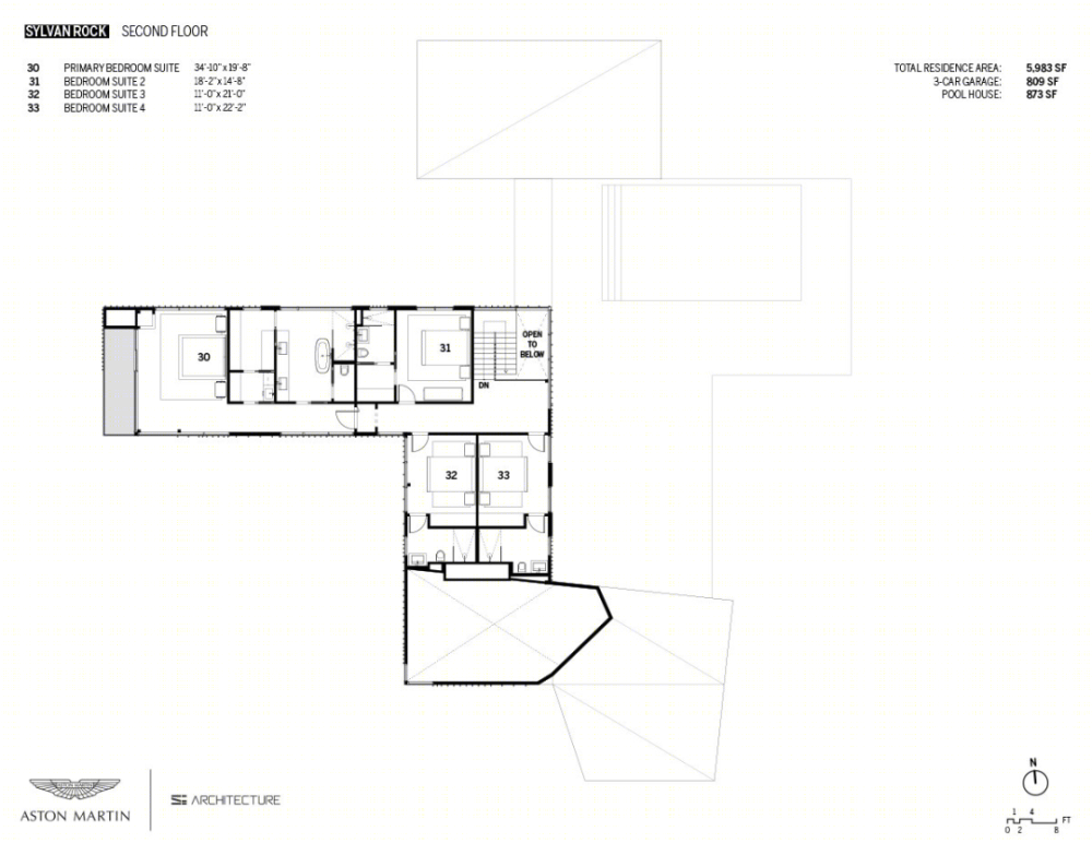
阿斯顿•马丁首个私人住宅项目“野奢”设计-18
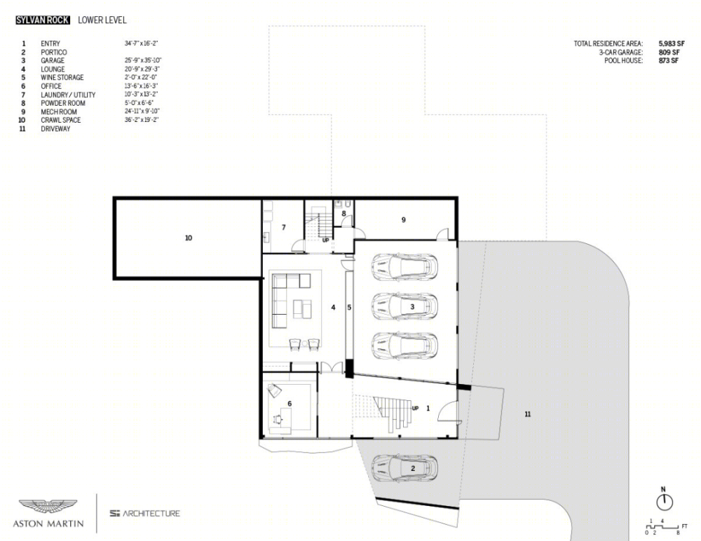
阿斯顿•马丁首个私人住宅项目“野奢”设计-19
阿斯顿•马丁首个私人住宅项目“野奢”设计-20
阿斯顿•马丁首个私人住宅项目“野奢”设计-21
阿斯顿•马丁首个私人住宅项目“野奢”设计-22
阿斯顿•马丁首个私人住宅项目“野奢”设计-23
阿斯顿•马丁首个私人住宅项目“野奢”设计-24
阿斯顿•马丁首个私人住宅项目“野奢”设计-25
阿斯顿•马丁首个私人住宅项目“野奢”设计-26
阿斯顿•马丁首个私人住宅项目“野奢”设计-27
阿斯顿•马丁首个私人住宅项目“野奢”设计-28
阿斯顿•马丁首个私人住宅项目“野奢”设计-29
阿斯顿•马丁首个私人住宅项目“野奢”设计-30
阿斯顿•马丁首个私人住宅项目“野奢”设计-31
阿斯顿•马丁首个私人住宅项目“野奢”设计-32
阿斯顿•马丁首个私人住宅项目“野奢”设计-33
南京喵熊网络科技有限公司 苏ICP备18050492号-4知末 © 2018—2020 . All photos and trademark graphics are copyrighted by their owners.增值电信业务经营许可证(ICP)苏B2-20201444苏公网安备 32011302321234号
客服
消息
收藏
下载
最近