查看完整案例

收藏

下载
01克制-近年来居家办公的增加与未来工作型态的改变给了设计师更多的思考
木色和白色的搭配顶面和地面的衔接
用克制的手法去处理这个空间
去淡化设计的痕迹才能帮助空间表现其本质的魅力以一种尽可能开放的空间去承载生活的联系静谧独存且优雅共生
02留白-留白不仅是一个画面而是一种状态它内敛 安静且温暖
去除繁冗无意义的装饰纯白之下是生活本需的暗涌
适当的温度合理的光线在这纯白之下井井有条悄声运转
白色即空它的“ 不存在” 形成某种力量它像一个空空的容器却能预见它承载万物的能力
留白是极简主义化于无形的语言
03态度大师-木色与大面白色的空间基调形成稳固的视觉支撑
适度的控制空间的节奏白与黑 冷与暖 分割与延续
让居住者在自由的场域里有不同的感知体验对家的态度就是对生活的态度
生活本是私人的 也是多样的而有一种是克制之后的极致自由
04包容-清浅的色调馨暖的灯光自然的纹路
共同组合为轻松惬意且包容性强的场所精神
暖黄色的光源在夜晚极致地晕染营造出静谧包容的空间氛围
无论屋主从何种生活状态或情绪中归来都能找到属于自己的一份宁静与放松
居于此
言行则不自觉轻柔
- 项目名称 -对/白
- 设计机构 -東亼空间设计
- 主案设计 -成森
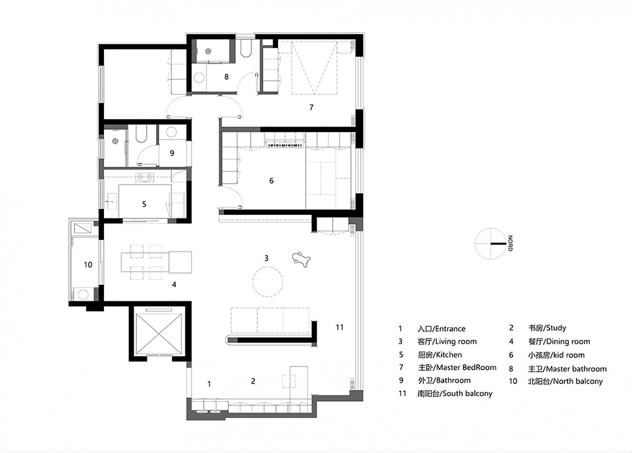
- 项目面积 -153㎡
- 项目地址 -江苏 无锡
- 项目摄影 -吴昌乐
客服
消息
收藏
下载
最近




































