知末
知末
创作上传
VIP
收藏下载
登录 | 注册有礼

未来星光 120㎡现代混搭宅丨意笙设计

2023/05/16 14:56:46
查看完整案例
微信扫一扫
收藏
下载
未来星光 120㎡现代混搭宅丨意笙设计-0
项目信息
PROJECT INFORMATION
项目地址/Project Address:未来星光
项目面积/Project Area:120㎡
设计风格/Design Style:现代混搭
设计单位/Design Unit:意笙设计
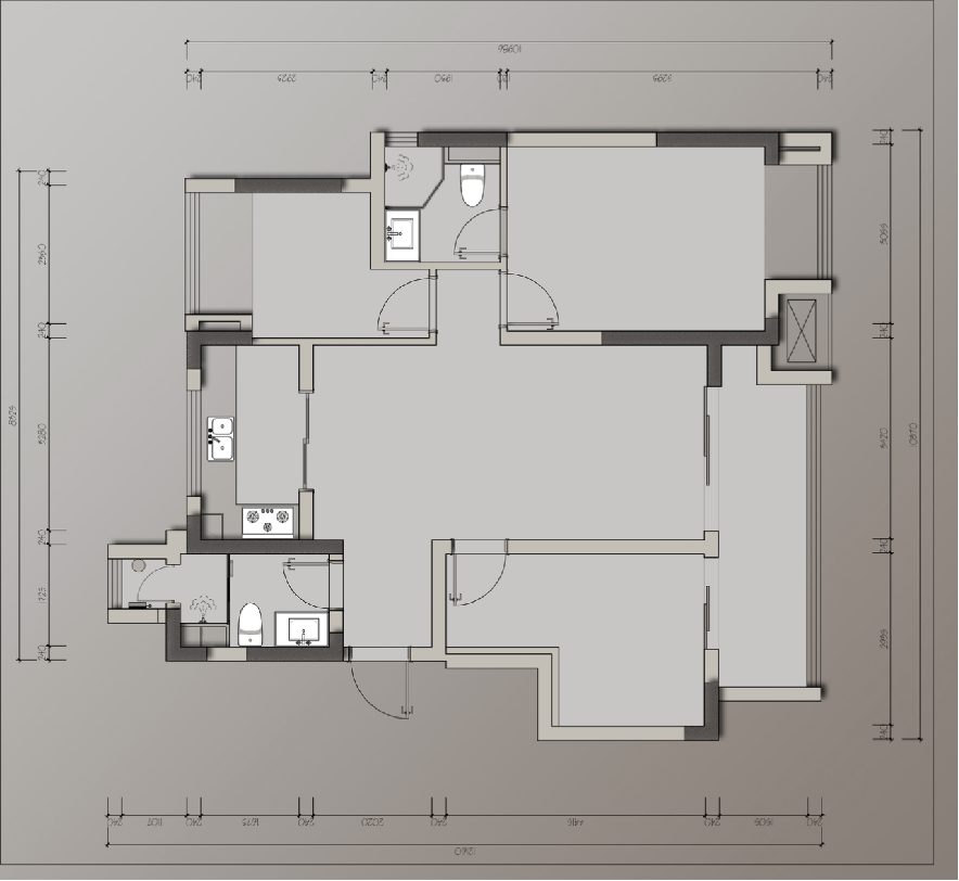
01 平面图
未来星光 120㎡现代混搭宅丨意笙设计-8
未来星光 120㎡现代混搭宅丨意笙设计-9
02 客厅
未来星光 120㎡现代混搭宅丨意笙设计-11
未来星光 120㎡现代混搭宅丨意笙设计-12
未来星光 120㎡现代混搭宅丨意笙设计-13
未来星光 120㎡现代混搭宅丨意笙设计-14
未来星光 120㎡现代混搭宅丨意笙设计-15
03 餐厅
未来星光 120㎡现代混搭宅丨意笙设计-17
未来星光 120㎡现代混搭宅丨意笙设计-18
未来星光 120㎡现代混搭宅丨意笙设计-19
未来星光 120㎡现代混搭宅丨意笙设计-20
04 主卧
未来星光 120㎡现代混搭宅丨意笙设计-22
未来星光 120㎡现代混搭宅丨意笙设计-23
未来星光 120㎡现代混搭宅丨意笙设计-24
05 次卧
未来星光 120㎡现代混搭宅丨意笙设计-26
未来星光 120㎡现代混搭宅丨意笙设计-27
未来星光 120㎡现代混搭宅丨意笙设计-28
未来星光 120㎡现代混搭宅丨意笙设计-29
南京喵熊网络科技有限公司 苏ICP备18050492号-4知末 © 2018—2020 . All photos and trademark graphics are copyrighted by their owners.增值电信业务经营许可证(ICP)苏B2-20201444苏公网安备 32011302321234号
客服
消息
收藏
下载
最近