查看完整案例

收藏

下载
基地:城市更新与功能生长
Site: Urban renewal and functional growth
随着义乌城市化快速发展,义乌核心老城区开展了成片的有机更新计划,不止是住宅和商业的更新,还包括原有的小学和幼儿园的新建和改造。
With the rapid urbanization of Yiwu, the core old city area of Yiwu has launched a large-scale organic renewal plan, not only for the renewal of residential and commercial buildings, but also for the construction and renovation of existing primary and kindergarten schools.
▼从工人西路看向扩建校区,View of the expanded campus from Gongren West Road
绣湖小学是义乌当地一所创立于1912年的百年小学,地处老城区的核心区块。随着生源的增多及拓展更新的需求,市政府决定在原有校区的北面,拟拆迁更新的义乌四中的用地内划出一部分用地来建设新的北校区。义乌四中的原行政楼保留下来留作北校区的一部分教学用房,四中的其它用地作为岭头地区有机更新项目的用地。绣湖小学新校区建设同岭头有机更新项目同步设计、同步施工。
Xiuhu Primary School is a local century-old primary school founded in 1912, located in the core area of the old city. With the increase in student enrollment and the demand for expansion and renewal, the municipal government decided to allocate a portion of the land within the Yiwu No. 4 Middle School, which is planned for demolition and renewal to the north of the original campus, to build a new North Campus. The original administrative building of Yiwu No. 4 Middle School was retained as part of the teaching facilities of the North Campus, and the rest of the land was used for organic renewal projects in the Lingtou area. The construction of the new campus of Xiuhu Primary School was designed and constructed synchronously with the organic renewal project in Lingtou.
▼基地内保留建筑,Preserved buildings within the site
▼项目基地,Project site
本项目的任务除了扩建的一个新校区以外,还包括改造原址内老校区的操场,增加地下停车场以及体育活动空间。一方面利用地下通道将南北新老两个校区联系起来,另一方面缓解身处核心地段学校接送的交通压力。
In addition to the construction of a new campus, the project also includes the renovation of the playground in the old campus, the addition of an underground parking lot, and sports activity space. On the one hand, a underground passage is used to connect the new and old campuses to ease the traffic pressure of the school pick-up and drop-off in the core area.
▼扩建校区操场,Playground in the expanded campus
策略:流线整合、立体联通、集约用地、挖掘潜力
Strategy: streamline integration, three-dimensional connection, intensive land use, and potential excavation
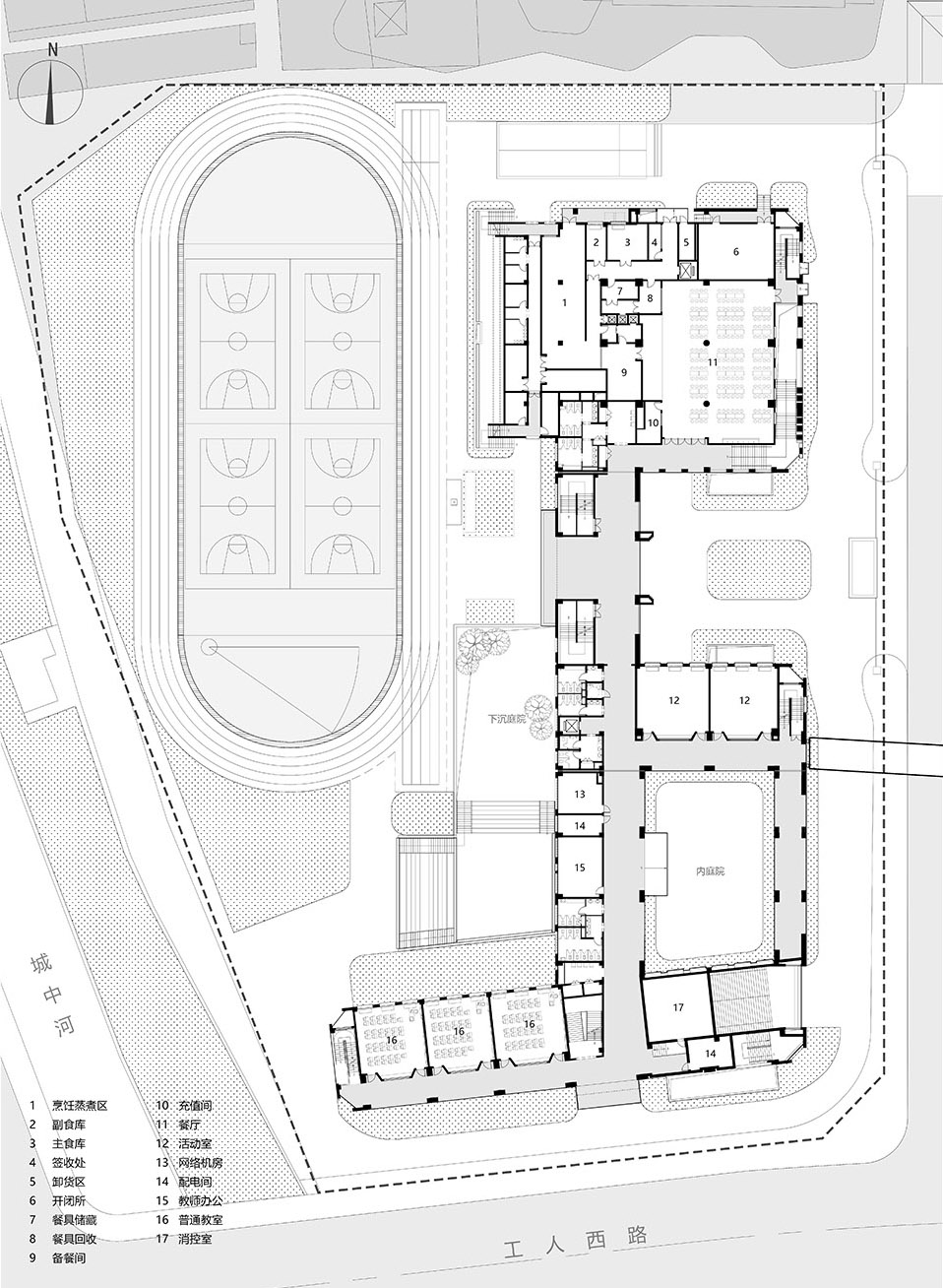
本案用地横跨三处,有两条城市道路横穿其中,同时与多个城市界面发生关系和对话。设计通过一条含有丰富活动空间的连廊将所有教学用房进行串联,新校区整体形态和老校区以轴线的关系相连;地下室引入家长接送系统,设置中央等候区与地上交通核相连,将接送人流疏导到地下室,有效缓解老城区的地面交通压力。小学不再是一个封闭的系统,而是和城市互为咬合的系统。
The site of this project spans three areas, with two urban roads crossing through them, and it has relationships and dialogues with multiple urban interfaces. The design links all teaching facilities with a corridor containing rich activity space, and the overall form of the new campus is connected to the old campus through an axis. The underground floor introduces a parent pick-up and drop-off system, with a central waiting area connected to the above-ground traffic core, and the flow of people is directed to the underground floor, effectively easing the traffic pressure of the old city area. The primary school is no longer a closed system, but a system that interacts with the city.
▼扩建校区教学楼,Teaching building in the expanded campus
▼扩建校区操场,Playground in the expanded campus
北侧新建用地总面积只有1.45万平方米,操场面积占地约三分之一。在满足种种相关设计条件的前提下,教学楼可建范围就变得比较局促。为了解决在有限的用地中,最大化扩充学校使用功能的问题。由此,三个地块之间形成东西和南北两条轴线,补充的活动空间分布在其中。为了使地块内承载的功能更加丰富,连接南北校区的轴线贯通地下二层,将活动空间延伸到地下一层。
▼体块生成,Formation of building masses
The total area of the new land on the north side is only 14,500 square meters, of which the playground area accounts for about one-third. Under the premise of meeting various related design conditions, the scope of the teaching building can be quite cramped. In order to solve the problem of maximizing the expansion of school use functions in limited land, two east-west and north-south axes are formed among the three plots, and additional activity spaces are distributed among them. In order to make the functions carried by the site more diverse, the axis connecting the north and south campuses is extended to the second underground floor, and the activity space is extended to the first underground floor.
▼扩建校区主入口,Main entrance of the expanded campus
由于学校用地紧张,学生的活动场地非常稀缺。所以,设计上考虑利用公共活动空间的拓展来激活学生的活动欲望,节奏丰富的半室外公共交流空间从始至终贯穿校园。学校的所有功能空间都是共享的,从而在与其他校区的关系上创建了一个双赢的局面,更在校园空间内创造了一种可持续性。
Due to the tight school land, the students’ activity space is very scarce. Therefore, the design considers expanding the public activity space to activate the students’ activity desire. The rhythm-rich semi-outdoor public communication space runs through the entire campus. All functional spaces of the school are shared, creating a win-win situation in relation to other campuses, and creating a sustainability in the campus space.
▼入口处庭院,Courtyard at the entrance
学校的很多功能拓展到地下一层,沿着下沉庭院和南北联系的地下通道,最大化的利用地下空间。南区的操场进行抬升设计,既减少了老校区建设的技术难题,又为老校区在操场下增加了很多新的功能空间。公共走廊根据不同的区域以及使用频率设置不同的宽度,并在适宜的位置布置可供师生交流的公共活动空间,当孩子们在校园中游走的时候,可以随时停下来阅读、观察或者讨论。
Many of the school’s functions are expanded to the first underground floor, making maximum use of the underground space along the sunken courtyard and the underground passage connecting the north and south. The playground in the south campus is raised, which not only reduces the technical difficulties of the construction of the old campus, but also adds many new functional spaces under the playground. Different widths are set for the public corridors according to different areas and usage frequencies, and public activity spaces for teacher-student communication are arranged in suitable locations. When children are wandering around the campus, they can stop to read, observe, or discuss.
▼扩建校区教学楼,Teaching building in the expanded campus
▼西入口,West entrance
新校区和保留建筑之间以较为折衷的钢结构玻璃空中连廊连接,考虑连廊的安全系数,窗户减小尺度,并开在较高的位置,同时通过玻璃将自然光线引入,通透舒适,任何天气条件下均适宜使用。
The new campus is connected to the preserved building through a steel structure glass skywalk, which is relatively moderate in consideration of the safety factor of the skywalk. The window size is reduced and placed at a higher position, and natural light is introduced through glass, making it transparent and comfortable to use in any weather conditions.
▼通过连廊将扩建校区和保留教学用房进行串联,Connection of the expanded campus and preserved teaching buildings through corridors
形式语言:延续与重构
Formal language: continuation and reconstruction
绣湖小学老校区的建筑建设于上个世纪的红色面砖建筑,整体风格活泼,而义乌四中这座保留建筑是一个模数化规整的灰色釉面砖建筑。基地北面的有机更新小区采用的是新古典暖色的建筑风格,周边建筑风格多样。采用什么样的立面策略能使新建校区建筑突出而不突兀,是项目一开始就很关注的问题。
▼绣湖小学原校区,Original campus of Xiu Lake Primary School
The construction of the old campus of Xiuhu Primary School was built in the last century with red brick buildings, which have a lively overall style. The preserved building of Yiwu No. 4 Middle School is a modular and regular gray glazed brick building. The organic renewal area to the north of the site adopts a new classical warm-colored architectural style, with various surrounding architectural styles. At the beginning of the project, the issue of how to make the new campus building stand out without being abrupt by using the facade strategy was highly concerned.
▼新教学楼西立面,West facade of the new teaching building
绣湖小学本身悠久的历史背景以及周边的环境,奠定了本项目的设计基调。校园建筑作为整个城市中的节点性建筑,应当适当从周边的建筑中跳脱出来。在场所的基本结构重新梳理后,最终决定新建部分采用现代砌筑方式的红砖来延续以往的传统,而立面肌理部分则与保留的四中建筑呼应。为了使新老建筑和谐共生,团队对原来的开窗比例进行研究,在新建筑上延续,呈现典雅与质朴于一体的建筑气质。窗框的颜色采用了深红色,强化了校园红的基本色调,让整个建筑的色调更加沉稳和谐。
The long history of Xiuhu Primary School itself and its surroundings laid the design tone for this project. As a nodal building in the entire city, campus buildings should appropriately break away from the surrounding buildings. After the basic structure of the site was reorganized, it was finally decided to use modern bricklaying techniques to continue the tradition of red bricks for the new construction, while the facade texture was echoed with the preserved building of Yiwu No. 4 Middle School. In order to make the new and old buildings harmoniously coexist, the team studied the original window-to-wall ratio, and continued it on the new building to present an elegant and simple architectural style. The color of the window frame is deep red, which reinforces the basic red tone of the campus, making the entire building color more stable and harmonious.
▼砖洞、镂空砖以及玻璃砖材料的组合立面
Combination of brick holes, perforated bricks, and glass bricks
▼砖砌纹理的运用,Application of brick texture
立面手法上充分利用砖砌纹理多变的特性,在特殊部分采用镂空砖的肌理,使立面虚实关系中多了一个“灰色”部分。光影是建筑不可缺少的一部分,通过砖洞、镂空砖以及玻璃砖几个材料的组合,不仅丰富了外立面的肌理,还使室内的光影有了更丰富的效果。
The facade technique makes full use of the variable characteristics of brick texture, and uses the texture of hollow bricks in special parts to add a “gray” part to the relationship between the facade’s virtual and real elements. Light and shadow are an indispensable part of architecture. Through the combination of brick holes, hollow bricks, and glass bricks, the texture of the outer facade is not only enriched, but also the indoor light and shadow have a richer effect.
▼镂空砖的肌理,Texture of perforated bricks
▼室内通廊,Indoor corridor
嵌入与更新
Embedded and Renewed
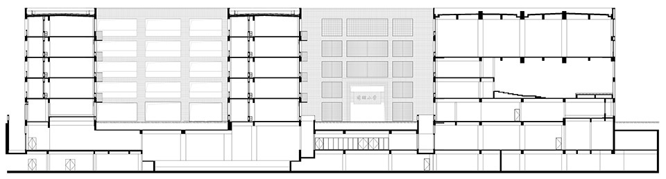
南校区老校园操场提升属于本案的改造部分,可建设范围约为1万平米,建设的目的是为了增加停车位和一部分教学功能,同时和北校区的地下隧道相衔接。新工程主要改造地下两层的空间,对整个校园进行功能补充。地下一层改造为家长接送系统,按照动静流线分区,入口设置在地块西侧,与停车场连接;东侧设置等候区、阅览室、活动室,与下沉广场相连;南侧设置体育活动馆。连接新校区的地下连廊设置在地下二层,设置车行道和人行道。整体色彩与原校区建筑保持统一,利用覆满植被的大坡道与校园相连,形态上利用悬挑,弧形张拉膜等样式,削减其体量。整体轻盈活泼,成为老城区内悬浮着的儿童活动天地。
▼剖轴测,Sectional axonometric drawing
The upgrade of the old campus playground in the south campus belongs to the renovation part of this project, with a construction area of about 10,000 square meters. The purpose of the construction is to increase parking spaces and a part of teaching functions, while connecting to the underground tunnel of the north campus. The new project mainly transforms the space of the two underground floors, supplementing the functions of the entire campus. The first underground floor is transformed into a parent pick-up and drop-off system, divided into dynamic and static flow zones, with the entrance on the west side of the site, connected to the parking lot; the east side is equipped with a waiting area, reading room, activity room, and connected to the sunken square; the south side is equipped with a sports activity hall. The underground passage connecting the new campus is set on the second underground floor, with a driveway and a pedestrian walkway. The overall color is unified with the original campus building, and is connected to the campus through a large sloping ramp covered with vegetation. The shape is reduced by using cantilevers, curved tension membranes, and other styles. The overall appearance is light and lively, becoming a suspended children’s activity space in the old city area.
▼从改造后的操场看向新校区,View of the new campus from the renovated playground
结语
Conclusion
基于本案中保留建筑、改造建筑、新建建筑三者共存的特殊性,将所需的教学空间兼容并重的相互结合,使三者展开一场建筑对话,形成义乌市绣湖小学以及义乌整个城市有机更新独特的文化基因。除了与城市、与旧建筑之间形成良好的关系,我们更希望建筑,特别是校园建筑,如同温暖的伙伴,能够实现与使用者之间的交流,长久陪伴学生的成长,在潜移默化中以光影、以细节、以丰富的空间协助孩子体悟美与生活。
Based on the uniqueness of the preserved building, renovated building, and new building in this project, the required teaching space is combined with equal importance, allowing the three to conduct an architectural dialogue, forming a unique cultural gene of Yiwu Xiuhu Primary School and Yiwu’s entire organic renewal. In addition to forming a good relationship with the city and the old buildings, we hope that architecture, especially campus architecture, can be embedded and renewed.
▼光影变化,moving shadow
▼总平面图,master plan
▼一层平面图,ground floor plan
▼地下一层平面图,basement floor plan
▼立面图,elevations
▼剖面图,sections
项目名称:义乌绣湖小学
建设地点:浙江义乌
业主:义乌市建设投资集团有限公司
设计单位:九米设计
主创设计:贺珉、郭宁、忻赟
建筑设计:周梦慧、宋雪、潘世杰、何家斌、李秉桓、王颖倩、陈雨卓、胡希越、陈书涵、金昊争
结构团队:刘国利、吴朋、王健、胡庆涛、叶凯凯
设备团队:王逸侃、杜海舰、张宏杰、李献亮、虞晨瑞、陈晓亮
设计时间:2019年5月~2020年10月
建设时间:2020年11月~2023年年1月
建筑面积:43014.23㎡
用地面积:20539.16㎡
景观设计:青岛青城马良景观设计咨询有限公司
景观主创:吴松良、张安琪、刁波、陈鑫、朱建伟、李亚芬、金琳琳
室内设计:龙邦建设股份有限公司
室内主创:段晓东、谭坚红、徐君斌
摄影师:是然建筑摄影
Project Name: Yiwu Xiuhu Primary School
Location: Yiwu, Zhejiang
Owner: Yiwu Construction Investment Group Co., Ltd.
Design Firm: JIUMI Design
Chief Designers: He Min, Guo Ning, Xin Yun
Architectural Designers: Zhou Menghui, Song Xue, Pan Shijie, He Jiabin, Li Binghuan, Wang Yingqian, Chen Yuzhuo, Hu Xiyue, Chen Shuhan, Jin Haozheng
Structural Team: Liu Guoli, Wu Peng, Wang Jian, Hu Qingtao, Ye Kaikai
Equipment Team: Wang Yikan, Du Haijian, Zhang Hongjie, Li Xianliang, Yu Chenrui, Chen Xiaoliang
Design Time: May 2019 – October 2020
Construction Time: November 2020 – January 2023
Building Area: 43,014.23㎡
Land Area: 20,539.16㎡
Landscape Design: Qingdao Qingcheng Malang Landscape Design Consulting Co., Ltd.
Landscape Chief Designers: Wu Songliang, Zhang Anqi, Diao Bo, Chen Xin, Zhu Jianwei, Li Yafen, Jin Linlin
Interior Design: Longbon Construction Co., Ltd.
Interior Chief Designers: Duan Xiaodong, Tan Jianhong, Xu Junbin
Photographer: Shi Ran Architectural Photography
客服
消息
收藏
下载
最近






























