查看完整案例


收藏

下载
本案位于重庆,面积为300㎡,整个空间以纯净的白和浅灰色为主色调,低调而质朴,但不失高级感。 空间独特的结构改造增加了建造难度,改造地下层的通风和采光,是本套案例的一大特色。设计师用负一楼的下沉式庭院设计,增强了采光和通风,又增加了不凡的景观体验。
项目地址:重庆巴南区渝南大道
设计机构:KD室内设计事务所
设计风格:现代精致风格
部分家具设计:KD合清家具研究所
二楼为居住层,会客厅,餐厅,厨卫,卧室……既有个人空间,又有社交空间。简约大方的会客厅,没有过于复杂的装饰,视觉上更加舒适简单。
会客厅设置为通透的交流空间,配色和谐、现代感十足,黑白灰调,点缀着富有生命力的黄色,整体感觉时尚而又充满现代简约质感。
客厅一侧靠墙的位置便是餐厅了,设计师综合考量了质感、实用性及采光等多种因素,空间整体的配色恰到好处,淡雅温润,线形吊灯,点亮空间的同时,也让空间更加有层次感。
宽敞大气的厨房采用H型橱柜,满足操作便捷的同时又展示出了户型的独特魅力,打开推拉门步出室外就是户外餐厅,贴心的设计满足不同使用形式的需求。
从厨房出来,就是户外餐厅区域,在露台花架下享受一顿就着阳光吃下去的早餐,想必一天都会元气满满。
主卧依然延续整体的现代精致感,以灰白调为主。墙面没有多余的装饰,简洁利落,是谦逊的外表和优雅的内在的平衡体现。
儿童房与主卧都同样选择了灰蓝色为主,精致与功能在这里得到和谐统一。配备一体化书柜书桌,方便孩子日常学习使用。
与主卧儿童房的色调不同,老人房的主色调为暖色调,大床自带舒适的真皮靠背,这是为给老人的居住感带去更多的舒适体验。没有多余的装饰,一张藤椅,满满的阳光,足以让这个房间更贴近老人的居住需求。
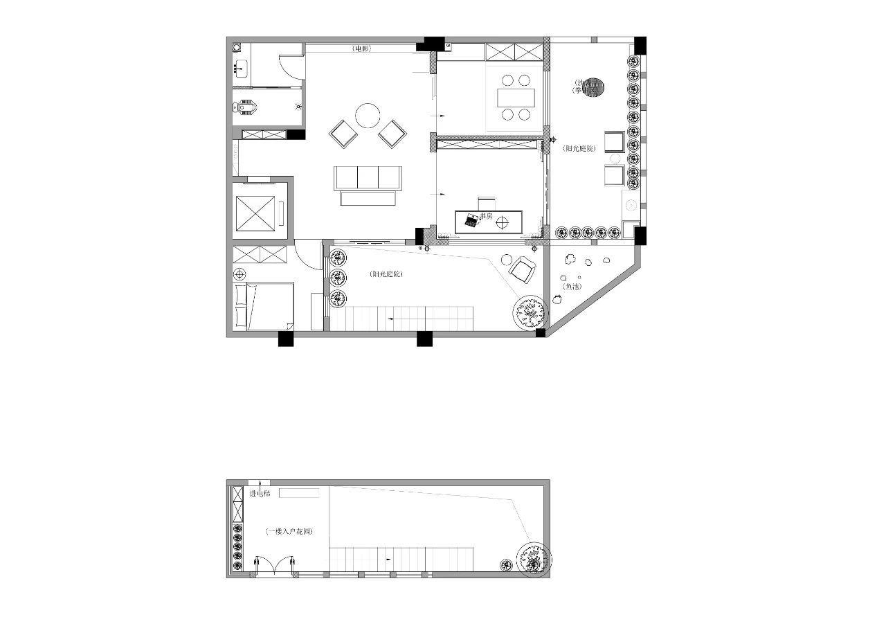
负一楼的下沉式庭院,连通负一楼和一楼空间,带来绝佳阳光与清新空气。
一楼为入户花园层,让业主回家就可看到绿意盎然的花园,郁郁葱葱,充满生机。拾级而下,便是会所层了。
爱生活的都市精英越来越注重“家庭享受空间”,人们期盼在家中更放松更自在。设计师将负一楼定位为会所层,茶室、书房、影音室……丰富家庭生活,也是好友闲聚之所。
负一楼茶室与书房空间的家具产品是设计师为业主单独设计的,从设计、放模、打样、生产制作、调整形态、落地成型融入在空间,是一条相当艰辛的路,他们在探路前行。
从下沉式庭院推门而入,就是书房了,大大的落地窗,视野开阔,心情也跟着舒畅。
KD室内设计事务所合伙人.设计总监:张虎
客服
消息
收藏
下载
最近





































