查看完整案例


收藏

下载
“在那些看似无法理解的一团现象里面所找出来的秩序,既不能是临时权宜性的,也不能是偶然任意性的。”
—— 克洛德·列维·斯特劳斯
来到南头古城你会非常欣赏十字街上各式各样的老房子,青砖灰瓦的东莞会馆,彩塑高耸的新安县衙,灰雕彩画的报德祠,三进院落的信国公文氏祠堂,和各种临街的精致时尚商铺建筑。道路由青石板和小石块铺砌。走过十字街的同时你也能顺着穿插的街道小巷望见生活气息浓郁,烟火味十足的城中村生活场景。鱼肉蔬果摊贩、小卖部、餐厅、理发店、甚至快递接收门店等。
When you come to Nantou Old Town, you will feel amazed by all different types of buildings be bulit in different periods,such as Dongguan Guild hall with black brick and grey tiles, Xin‘an County Government Office with towering colored sculptures, Baode Ancestral Hall with gray carvings and colored painting ,Wen Tianxiang ancestral hall with the layout of three-bay and three depth, and various exquisite fashion shops and buildings along the street which its pavements were made of slates and squared stone. When you walk through the cross street, you can discover the vitality life from the alley by the side and the scenes of normal daily life in this urban village.Also you can find out different kind of stores which meet people’s daily needs such as Fish and vegetable vendors, retail stores, restaurants, barber shop and delivery store etc.
▼厘米制造工作室与南头古城的城市肌理,CM Office In Nantou Old Town
这里有围坐在台阶上的白发老人,有三两嬉戏追逐的小学生,也有快递骑行匆匆穿越的身影,他们与十字街上熙熙攘攘的游客插肩,可能就是这么不经意间的一瞥,南头古城里这些多元混杂,拼贴交错的场景片段足以让你驻足回味半天。或许你会赞叹:能够每天看到古城里看不完的景致的人,他们是多么幸福啊!
Most of the time down the street and alley there are old people with white hair sitting around the steps, couples of chasing pupils and delivery men always in a hurry with their ride, they are often mix in the crowd with the tourists down the cross street.Sometimes just a casual glance could make you stop walking and have a good tasting from the diverse and staggered scenes of Nantou Old Town.Probably you would be amazed that people are so happy that they could see different scenes everyday and it never ends.
▼工作室外观鸟瞰,aerial view of CM Office
如果你从古城的东门进入,步行50米可来到信国公文氏祠,当你的视线顺着东街往西,即会被斜对面建筑首层的小花园吸引。再抬头往上,便会看到一栋城中村典型的灰色水刷石村楼,你会好奇仿佛飘浮在空中的灰色建筑体块。如果经常穿越在城中村,或者对上个世纪80年代房子还有些许印记的你一定会似曾相识,这个灰色建筑体其实是由轻质的发泡陶瓷单元模块阵列砌筑而成。虽然建筑立面上已经没有了封闭的金属阳台栏杆,无序加建的压型铝板阁楼和零星外挂的空调机,但仍可能会被误以为依旧是一栋住宅楼。
If you walk into Nantou Old Town from the east gate,you will get to Wen Tianxiang ancestral hall in 50metres .As your sight towards to the west you will be attracted by a tiny exquisite garden from the opposite side,and you will see an typical urban village residential building covers with gray water-washed sandstone.On the top of the building there is a gray block looks like up floating to the air ,which you will be surprised. If you often walk through in the urban village or you have some impression to the buildings from 80s of last century ,you might seem to have met this material that we applied to the block which is constructed by the customized lightweight foamed ceramics unit module in array.Even though no more enclosed metal prevention to the balcony or the random set up profiled aluminium sheet to the attic and the scattered arranged air conditioner external unit,the building could still be recognized for residence probably.
▼建筑与周边环境的融合,integration of the building with its surroundings
▼由街巷看工作室,viewing the project from the alley
▼灰色水刷石主体与发泡陶瓷单元模块阵列砌筑的顶部体块,
the grey stone main body with foamed ceramic unit module array masonry top block
首层的无岚茶居延续了古城街区的商业氛围,建筑入口往里退让出的灰空间放大了狭窄的街道,同时与信国公文氏祠入口景观空间节点呼应。原有楼梯通道出入口成为了临街的橱窗展示。无岚茶居空间内部因主理人对茶品质储藏保障和灵活性的展陈要求,不能让装修材料对茶的影响。设计中没有吊顶,没有安装施工的木质漆柜,没有多余设计的地方,只有在原建筑墙面上的一层薄薄的仿夯土面层和主理人淘来的老柜子、旧木桌椅。无论哪个角度,只要你抬眼望去,都呈现出一种古朴典雅的风韵,你可以在这个空间里品茶、焚香、赏花、聊天、挑选壶杯罐盏等器物,或者也可以与主理人交流茶艺,甚至参与不定期举办的茶会活动。
▼轴测图,axonometric drawing
Wu-Lan Tea Studio on the first floor continues the commercial atmosphere of the Nantou Old Town.The grey space of the receded entrance not only magnifies the narrow street but also goes in a conversation with the entrance space of Wen Tianxiang ancestral hall, and the original stairway aisle became the window display facing the street. Because of the hostess of Wu-Lan has a highly sense of quality and storage protection for the tea and the flexible product display,the materials that applied to the space without any chemical effect to the tea.For the interior design, there is no suspended ceiling,no brand new cabinet and no redundant design. There is only a thin layer of imitation rammed earth surface adopted on the original wall,and some old cabinets,wooden tables and chairs that the hostess panned out. From any angle of view as your sight arrives,it always presents elegant with classic simplicity graceful bearing.In this space ,you can have the tea tasting,incense enjoying,flowers appreciating,chatting,as well as the utensils selecting,or you can have a good conversation with the hostess about the tea science .Even more,you can join the tea sharing activity that is held irregularly by the hostess.
▼首层的无岚茶居延续了古城街区的商业氛围,Wu-Lan Tea Studio on the first floor continues the commercial atmosphere of the Nantou Old Town
▼原有楼梯通道出入口成为了临街的橱窗展示,the original stairway aisle became the window display facing the street
▼无岚茶居室内,interior of Wu-Lan Tea Studio
关于厘米制造工作室,你所能看到的不外乎是设计师日常创作的工作场所:一组组绘制图纸的工作台面,一整面设计资料书籍墙柜,一系列的设计模型和贴满整面软木墙的项目图片。正因为选择城中村住宅居室来完成设计工作室的空间置换,我们没有理由逃避它的狭小尺度,而是尽可能拆除掉不起结构作用的隔墙,打开二三层之间的局部楼板,扩大竖向空间加以螺旋楼梯连通,加强两层工作室空间内部的互动与联络。
▼分析图,diagram
About the CM Office,all you can see is the designers’ daily working site that consists a group of graph working tables,a whole wall cabinet of design materials, books,and different series of design models also a whole corkboard wall with projects pictures.It is because of the choice of urban village residence to complete the space replacement of the design studio,we have no reason to evade the small scale but removed as many partitions as possible that do not function as a structure.In order to strengthen the interaction and communication between the second to third floor,part of the floorslab was opened up to expand the vertical space with the spiral staircase satisfies the connection.
▼厘米制造工作室入口,entrance of CM Office
▼厘米制造工作室室内概览,interior overall of CM Office
▼空间中融入了城中村最具代表性的“马赛克”,the space is integrated with the most representative “Mosaic” of urban villages
这面二层通高墙体中的窗扇被封堵,室外水刷石立面内凹,暗示过去的窗洞位置,室内刻意裸露出旧砖块,成为模型展架的粗犷背景。空间中的T型构造柱结合展示柜和模型制作台具有持久的混合品质。当然也少不了把那个时代城中村最具代表性的“马赛克”融合进去,恰好成为服侍空间与被服侍空间的界面。
The original windows were blocked off with a concave to its outer elevation in water-washed sandstone, which implied where the windows stayed before.To the inner elevation, the old bricks were exposed deliberately that become as the rough background to the models display. The T-shaped structural columns in the space combines the display cabinet and the model making table, which provide a durable mixture, and the most representative material from the era of urban village, mosaic was also integrated into the space.It just right become the servant spaces and served spaces.
▼螺旋楼梯加强了两层工作室空间内部的互动与联络,the spiral staircase enhances the interaction and connection within the two-storey studio space
▼工作空间,working area
▼刻意裸露出的旧砖块成为模型展架的粗犷背景,the deliberately exposed old bricks become the rough background of the model exhibition
▼暴露在空间中原有结构,the existing structure is exposed in the space
无论是过去的住宅楼还是现在看到的厘米制造工作室,比起当初房东盖楼或许都没有多少建筑材料上的变化,但是它的奇特之处在于,从前认为平常的,如今已经变得新奇,从前以为低技的,如今已经成为设计。而且由于功能的改变,使得这里日间充满的生机与活力。
No matter it is the residential building in the past or the CM office,there may not be much change in the building materials. However, what make people considered as in ordinary and plain before now it become fresh and cultivated.Because of the functions change, it bring the vitality and vigor into the space during the daytime.
▼由工作室看向外部环境,viewing the exterior environment from the office
▼阳台,the balcony
如果说四楼从它的外表已经给人一种强烈期待,真正的震撼应该在内部等着你。CM+是一个公共开放的复合型空间,是一个新建在底层加固建筑之上的开敞空间,自由而灵活,可以举办展览、沙龙、培训、会议等活动。屋顶平台是室内空间功能向外的延展,可以欣赏到南头古城各个时期的建筑图景。
If the appearance of the fourth floor has given a strong expectation, there should be the real surprising spaces inside.CM+ is a public open compound space that many activities can be held such as exhibition, salon, training, meeting and so on, which was built above the original building that had been reinforced to its structure.The roof top terrace is the extension of the interior space, where you can appreciate different periods of pictures of buildings in Nantou Old Town.
▼位于四楼的CM+,CM+ on the the fourth floor
▼空间自由而灵活,可以举办展览、沙龙、培训、会议等活动,the space is free and flexible to host exhibitions, salons, training, conferences and other activities
整个设计过程尊重历史的原真性,珍惜各个时代的文化层积和历史印记,秉承南头古城保护与重生的城市设计思路,结合古城文化,展厅空间的散落布置,尝试串联立体公共开放文化活动空间系统,与修缮后的文化古建筑及城中村人文景观资源建立联系,增进互动体验。作为十字街上唯一一栋将住宅楼改造集商业,办公,展厅等异质同体的建筑,正是此次古城改造更新升级的多元共生样本。
Based on the value of different era of cultural accumulation and historical impression,the whole process of design respects the authenticity of the history. Following the urban design strategy of preservation and regeneration while integrating the local culture and the dispersed exhibitions spaces arrangement.In order to enhance the interactive experiences,we sought to connect the three-dimensional opened public cultural activities system,established a connection between the renovated cultural ancient buildings and the humanities landscape resources of urban village.As the only building that contains different spaces such as commerce,office,exhibition,which after renovated from the residential building on the cross street.It is the multiple coexistence sample of transformation and upgrading of Nantou Old Town.
▼夜景,night view
▼模型,model
▼总平面图,site plan
▼一层平面图(左),二层平面图(右),first floor plan (left), second floor plan (right)
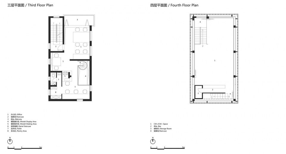
▼三层平面图(左),四层平面图(右),third floor plan (left), fourth floor plan (right)
▼立面图,elevations
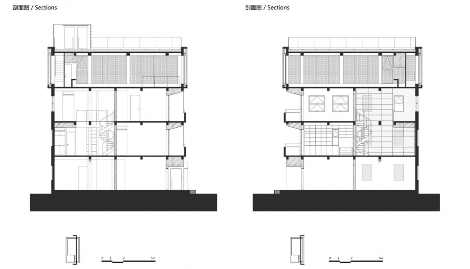
▼剖面图,section
▼细部详图,construction details
设计团队:厘米制造
项目地点:深圳市南山区南头古城
设计成员:陈丹平,廖俊,杨恒,姚明明,钟应川
建筑面积:305平米
项目时间:2020年9月- 2021年6月
业主:深圳市南山区建设工务署
代建方:深圳市万科发展有限公司
项目规划及设计管理团队:万科城市研究院,万路设计
施工图合作团队:深圳市博万建筑设计事务所
灯光设计:大观国际设计咨询有限公司
施工团队:
深圳市西部城建工程有限公司(建筑)
匠心见造(室内)
项目摄影:张超
材料:
发泡陶瓷(佛山市鑫绅陶瓷有限公司)
马赛克(深圳欧斯洛贝壳工艺有限公司)
弧形玻璃(深圳荔之元建筑科技有限公司)
水刷石(广州源海建筑材料有限公司)
钢板(东莞市造鑫金属材料有限公司)
Architects:CM Design
Site Location:Nanshan District,Shenzhen
Design Team:Danping Chen , Jun Liao, Heng Yang, Mingming Yao,Yingchuan Zhong
Floor Area:305sqm
Project Year:2020/9-2021/6
Developer:Bureau of Public Works of Shenzhen Municipality Nanshan District
Project planning and design management:Urban Research Institute of China Vanke; vaLue Design
Technical Coordination and Construction Drawing Design:Shenzhen Bowan Architecture Design Institute
Lighting Design: GD-Lighting Design
Construction team:
West Construction(Building Renovation Construction)
Jiangxin Jian Zao(Interior Construction)
Photographs:Chao Zhang
Materials:
Perforated aluminum sheet(Foshan Xinshen ceramics Co.,Ltd..)
Mosaic (Shenzhen Ou Si Luo Shell technology Co., Ltd.)
Curved Glass(Shenzhen Lizhiyuan Architectural Technology Co.,Ltd.)
Water-washed sandstone(Guangzhou Yuanhai Architectural Materials Co.,Ltd.)
Steel Panel (Dongguan Zaoxin Metal Materials Co., LTD.)
客服
消息
收藏
下载
最近




































