查看完整案例


收藏

下载
案例简介
Case description
项目名称|Project Name:《融创领馆壹号院》
项目地址|Location:上海 · 徐汇区
面积| area:300㎡
设计机构|Design Agency:简狄设计事务所
前言
# PREAMBLE #
项目坐标:上海徐汇区。
户 型:一套叠墅户型,地上两层+地下一层。
家庭结构:2+1家庭,一对中年夫妻+儿子(目前国外留学)。
屋主诉求:2间套卧、1间书房,需要有大厨房、西厨区、品茶区。屋主夫妻都钟爱中式风格,
但因为儿子留学归国后要同住,所以也需要中和儿子的喜好,在现代和中式中寻求平衡。
房子是新交付的毛坯房,全屋为柱点结构,改造空间较大。缺点是隔间较多导致空间零碎不够敞亮开阔,动线单一不流畅。楼梯缩在入户门一侧的位置,光线较暗,且对空间的分隔明显。而最大优势是一层的大横厅+整面落地玻璃窗,采光非常优秀,也是房子最大的卖点。
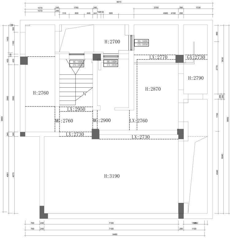
改造思路:首先明确各楼层的功能划分。地下室集合了会客、品茶、音影、收纳等多个功能,除了卫生间和杂物间,其余空间全部为开放式。一层为入户层,规划为客餐厅、中西厨和一间独立书房。二层为主人房和次卧,全部为套间形式。接下来,为了保证每个空间的尺度感及舒适度,重点是对楼梯的改造。
通过纵向分析,发现地下室和地上面积有错位关系,最理想的楼梯位置是位于一层的横厅西侧,对每层空间的利用率将达到最大化。具体而言,地下室更为方正;一层中厨面积扩大1/3,空间比例更为舒适;二层的两间套房面积也有扩大,且比例更均衡,尤其是卫生间的面积更为宽敞舒适。新的楼梯形式也有了改变,采用直跑楼梯,好处是不仅造型更具设计感、更通透开放,楼梯洞所形成的小区域挑空,也让上下层之间的互动更直接畅通。
中式风格里非常注重玄关的形式感。而本案中,我们将新中式理念和极简主义相融合,着力创造“形于外而神于内”的精神内核和西式外在美感。一尊脱胎于中国传统文化的石雕拴马桩,彻底摈除了中式的厚重感,以其极简的外形和通体祥云的神韵矗立于玄关的中心位置,寓意祥和、兴旺的同时更有镇宅之意。
玄关的形式感与西厨的功能性以及承重柱,整合出玄关衔接西厨的形式,体现了功能主义的人居设计理念。承重柱通体包裹鱼肚白大理石,与黑色木隔断之间形成玄关的视觉重心,黑白的对比更突出了玄关的仪式感。其余柜体和吧台则为充满质感的棕色原木材质,表面泛出的微红光泽,完全没有深色木质的老旧与压抑,反而映衬出层次分明、过渡自然、重点突出的视觉效果。
一盏极简玻璃吊灯将柔和的暖黄色灯光投射在充满中式韵味的太湖石摆件上,竟然升华出不一样的禅意。
大横厅配上整面的落地玻璃窗,享受极致的采光与户外花园美景(注:花园还未完工,后续会补拍)。而电动梦幻窗帘将客厅装点得格外雅致、静谧。
客餐厅一体化,共享整个开放空间。整个一层的设计是将客厅的功能性弱化,更突出空间感。家具的选择上充分考虑了硬装的现代感:比如一款改良版的罗汉榻,除了兼具皮质沙发的坐感,还借鉴了明代家具去繁存简的外形特征,很好地融入了整体简约干练的基调。
最有意思的设计之一:书房和客厅之间开了一扇窗,这种中式风格里经常用到的框景手法,让空间与空间之间有了更多连通和视角,人与人之间则拥有了更多互动和乐趣。几乎完全悬空的单跑楼梯不仅拉满设计感,而且也非常节省空间。
中厨无论是面积还是比例都非常理想,除了可以安排一个大大的U型操作台,还可以容纳双门冰箱,而且多出了一整面窗户,使整个封闭厨房空间更为明亮。通铺的艺术地砖和简洁利落的黑白灰设计,现代感十足,不落俗套。
西厨岛台和玄关自然衔接,位于客厅东北角的区域是整个西厨空间。全屋木饰面统一选用了美国直纹白橡木,特别定制的咖色里泛出微醺的红色,既有中式的庄重又不乏西式的简约时尚。伊派爱马仕的流水纹艺术地砖,充满克制的张扬与不羁,打破了中式固有的保守。
黑色的电器高柜和木饰面形成分色效果,呼应了岛台的黑色下柜,木格栅的设计让深色不至于太沉闷,有了更多细节观感。
正对西厨就是餐厅区,我们选择了中国人更喜爱的传统圆桌。胡桃木的圆桌搭配现代风格餐椅,家具的外形更现代、轻巧,用餐更符合中国人团员围合的传统文化,也表达了一种形于外而神于内的设计理念。
楼梯上来的空间非常开阔,我们在这里规划了开放式书房,也兼具起居/阅读功能。
二楼为两房朝南的格局。靠东侧为主卧套间,配套有主卫和衣帽间。统一的木饰面穿插乳白色格栅的形式,增加了立面的层次感,也很好地调和了整体的色调。
背景饰面板内嵌灯带,3000k的暖黄色灯光通过木饰面反射出柔和的光晕,夜间的氛围感极好。
次卧为儿子准备,同样配备衣帽间、独立卫生间。整体高级灰的色调,运用了艺术涂料和格栅背景,结合平顶无主灯设计,营造出充满现代格调的居住空间。
主卫选用充满质感的水泥砖,营造出更为现代、硬朗的风格。
次卫以大面积的白色基调为主,墙地通铺鱼肚白瓷砖,墙面局部拼接冷翡翠花砖,黑白对比具有强烈的视觉效果。
独立书房位于一楼。这是一间很有仪式感的书房,隐形门和墙体表面包裹统一的木饰面,与旁边的收纳柜连衔接成为一体,非常具有整体感。
书房和客厅隔窗相望,你中有我,我中有你,互为一道风景。
地下室集合了会客、品茶、音影、休闲和储物等功能。原本的隔墙较多,我们将空间释放到最大后重新根据需求来定义功能区。在现代极简的整体风格中加入了中式元素,并加以改良、融合,如特别定制的新中式的家具和壁灯,营造出简约而禅意的氛围感。
借鉴了中式框景的设计手法,来衔接空间与空间的关系,营造出有趣的视角。
电视背景墙特别设计出中式屏风的效果,通过灯效来提升空间氛围。而高品质的木作定制带来的高级感,也为全屋效果落地增色不少。
客服
消息
收藏
下载
最近




























































