知末
知末
创作上传
VIP
收藏下载
登录 | 注册有礼
知末案例   /   家装空间   /   平层

实用美观的现代家居设计丨聿见空间设计

2023/05/20 00:00:00
查看完整案例
微信扫一扫
收藏
下载
实用美观的现代家居设计丨聿见空间设计-0
绿叶零星,像在述说家的声音...
实用美观的现代家居设计丨聿见空间设计-2
实用美观的现代家居设计丨聿见空间设计-3
实用美观的现代家居设计丨聿见空间设计-4
实用美观的现代家居设计丨聿见空间设计-5
实用美观的现代家居设计丨聿见空间设计-6
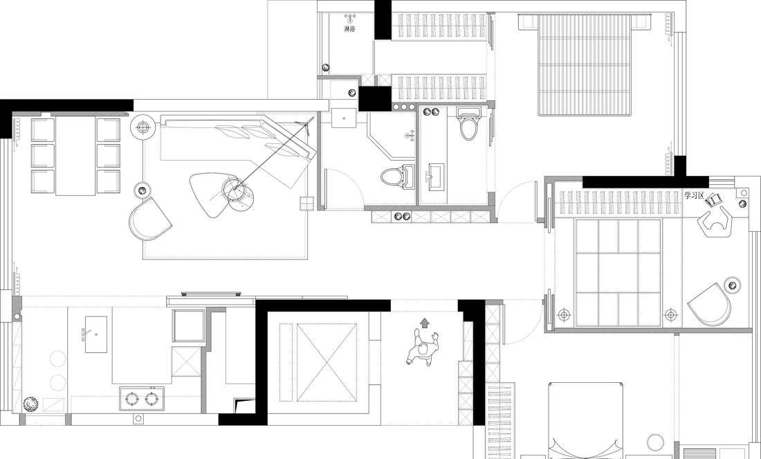
电视背景,则采用移动轨道,既是储藏室的门又是背景墙。通过这样打破原有空间格局,重新梳理机能,使整个布局与动线实用,美观。
实用美观的现代家居设计丨聿见空间设计-8
实用美观的现代家居设计丨聿见空间设计-9
我们改变了一贯厨房靠窗的做法,在保证尺度合理的情况下,巧妙的把空间分解成,吧台+厨房+储藏室的做法。这样既满足了吧台的憧憬又增加了2个多平方的储藏室。
实用美观的现代家居设计丨聿见空间设计-11
实用美观的现代家居设计丨聿见空间设计-12
实用美观的现代家居设计丨聿见空间设计-13
打破榻榻米靠窗的惯性思维,把落地窗留给书桌,让阳光洒落在慵懒的午后
实用美观的现代家居设计丨聿见空间设计-15
静谧的空间状态
实用美观的现代家居设计丨聿见空间设计-17
实用美观的现代家居设计丨聿见空间设计-18
实用美观的现代家居设计丨聿见空间设计-19
实用美观的现代家居设计丨聿见空间设计-20
实用美观的现代家居设计丨聿见空间设计-21
南京喵熊网络科技有限公司 苏ICP备18050492号-4知末 © 2018—2020 . All photos and trademark graphics are copyrighted by their owners.增值电信业务经营许可证(ICP)苏B2-20201444苏公网安备 32011302321234号
客服
消息
收藏
下载
最近