查看完整案例


收藏

下载
Uemachi Laboratory是一家位于兵库县川西市的建筑设计事务所,由Mitsumasa Sadakata
House in Kurakuen
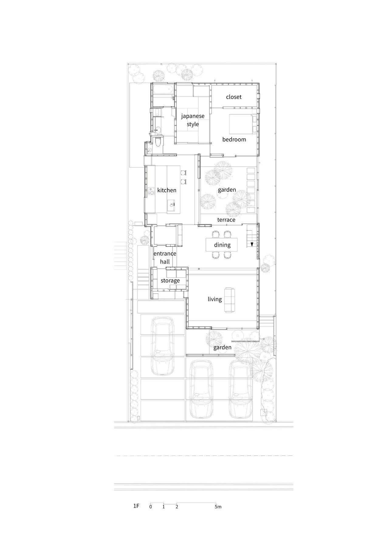
这是一所位于西宫市一个安静的居民区的房子。
周围的区域是成排的老房子,你看不到远处的风景。
我们计划利用南北的狭长场地建
的南侧有两层结构,建筑的高度向北逐渐降低。
除了儿童房,所有的房间都位于一楼,因此餐厅、厨房和主卧室都可以通过庭院看到。
从餐厅向北看,穿过庭院,你可以看到下一个房子的种植在一层的卧室。
客厅比餐厅略低,面朝一个小的南方花园,花园被篱笆和格子保护起来,不受道路的影响。
周围几乎没有景观,很难保护居住者隐私。我们通过创建一个庭院并仔细调整建筑的高度,尽最大的可能解决这些问题。
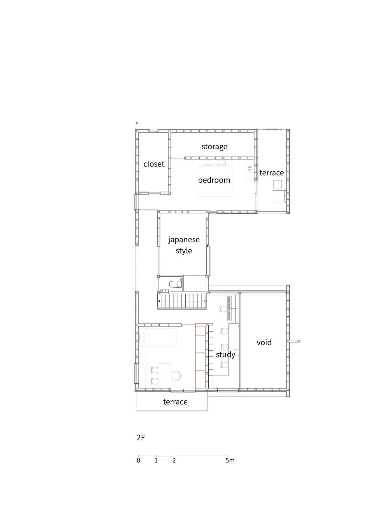
House in Hannan
该项目位于一个安静的区域,那里有许多旧的平房。该房屋的路侧较低,因此不会超出周围区域的范围,从而减轻了道路上的压力。相反,随着你深入场地时,高度会增加,并且最内部的空间是具有高天花板高度的柱廊。
因为这是一个人口稠密的地区,所以在基本上看不到外面风景。所以我们希望创造一个带有庭院景观的房子。从车库的入口的大门可以到达庭院。在客厅也可以看到的枫树种植在这个庭院,当你进入面向庭院的入口时,你可以从侧面的长窗看到西园,同时享受一年四季的绿意。
拥有楼梯间的起居室是内部庭院和南花园两侧的开放空间。在面向柱廊的二楼有一间书房。我们打算在适应周围安静环境的同时,创造一个合理、舒适的生活空间。
House in Horyuji
该场地位于Horyuji Toin附近的老木屋遗址区。业主希望有一个新的家,同时保持该地区良好的传统。
园内有松树,在和裕基寺和周围的房屋中也能找到松树,并覆盖着精致的灰色碎石,营造出单调的外部空间。
我们致力于一种新的表达方式,使它使用与城市景观融为一体的设计和材料也不保持了之自己的特色。
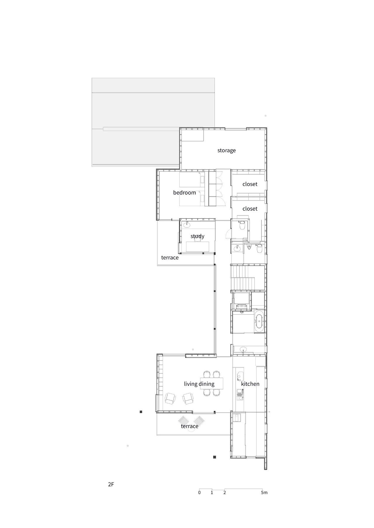
House in Amagasaki
这个房子的主人是一对夫妻,该项目位于大阪市郊区。原本这是一幢70年的老房子,但这次我被要求拆除这所房屋并重建新的木结构。通常,只有夫妇住在这所房子,但是偶尔也会有亲人和朋友也会来做客。无论是两个人使用还是多人聚集,我们都设计了合适的尺寸,将公共空间和私人空间温和地分离开来。
房子的主人也很喜欢他的老房子,有人要求在花园里尽可能多地种些树。虽然房子将会被拆除,但是花园中的树木可以更贴近他们的生活,留下以前建筑外观的记忆。在前建筑物的入口处,我们创建了一个室外大厅,在半室外环境中连接新近重建的房屋和现有的三层房屋。它是将两个家庭轻轻连接起来的共同入口。这栋三层楼的房子已经过装修过,他的儿子的一家就住在那里。
至于花园的景观,我们没有俯瞰整个花园,而是设计了窗户,这样你就可以看到从每个地方框出来的自然景观。在入口大厅,可以透过格子可以看到脚下的水反射出的绿色。业主希望房子不引人注目,像花园的景观一样舒适。我我们与荒木风景建筑事务所合作探索了花园与建筑之间的关系。
House in Tsukubai
这是位于茨城县筑波市一个安静的住宅区建造的房屋。
它由一个大的山墙屋顶和一个南侧小屋组成。
客服
消息
收藏
下载
最近












































































































