知末
知末
创作上传
VIP
收藏下载
登录 | 注册有礼

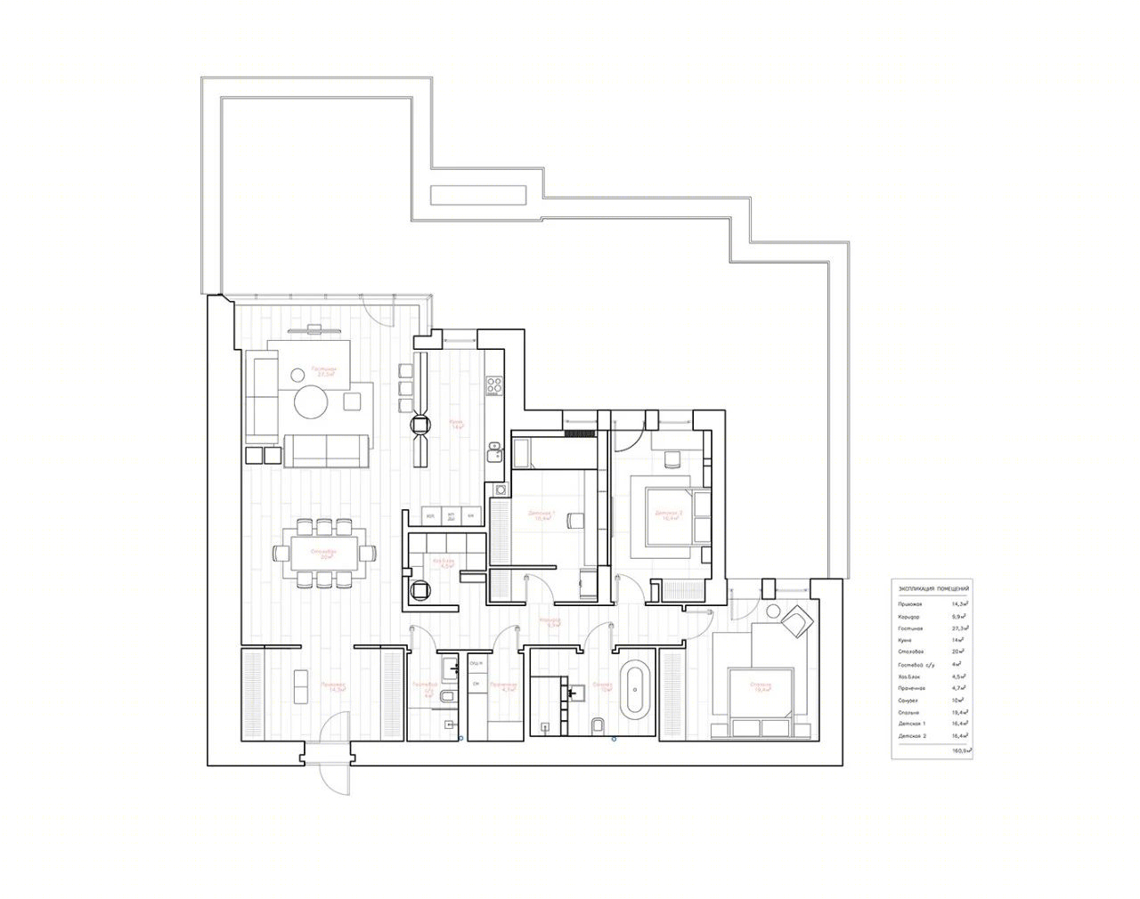
Sens Studio 打造自然高级 LOFT 住宅

2020/08/29 18:58:00
查看完整案例
微信扫一扫
收藏
下载
Sens Studio设计新作,LOFT住宅,是当下备受年轻人追捧的新兴住宅风格。对于追求前卫与时尚的年轻人来说,这类型的住宅能满足其对空间的所有幻想。
Sens Studio 打造自然高级 LOFT 住宅-1
Sens Studio 打造自然高级 LOFT 住宅-2
线条是空间中的重要元素,透过不同手法即能展现各式风貌。大量的利用自然材质,高级却又不会过分高调,令人亲近舒适,每个房间都有着独特的创意和细节,有很多可借鉴之处。
Sens Studio 打造自然高级 LOFT 住宅-4
Sens Studio 打造自然高级 LOFT 住宅-5
Sens Studio 打造自然高级 LOFT 住宅-6
Sens Studio 打造自然高级 LOFT 住宅-7
Sens Studio 打造自然高级 LOFT 住宅-8
Sens Studio 打造自然高级 LOFT 住宅-9
Sens Studio 打造自然高级 LOFT 住宅-10
Sens Studio 打造自然高级 LOFT 住宅-11
Sens Studio 打造自然高级 LOFT 住宅-12
Sens Studio 打造自然高级 LOFT 住宅-13
Sens Studio 打造自然高级 LOFT 住宅-14
Sens Studio 打造自然高级 LOFT 住宅-15
Sens Studio 打造自然高级 LOFT 住宅-16
Sens Studio 打造自然高级 LOFT 住宅-17
Sens Studio 打造自然高级 LOFT 住宅-18
Sens Studio 打造自然高级 LOFT 住宅-19
Sens Studio 打造自然高级 LOFT 住宅-20
Sens Studio 打造自然高级 LOFT 住宅-21
Sens Studio 打造自然高级 LOFT 住宅-22
Sens Studio 打造自然高级 LOFT 住宅-23
Sens Studio 打造自然高级 LOFT 住宅-24
Sens Studio 打造自然高级 LOFT 住宅-25
Sens Studio 打造自然高级 LOFT 住宅-26
南京喵熊网络科技有限公司 苏ICP备18050492号-4知末 © 2018—2020 . All photos and trademark graphics are copyrighted by their owners.增值电信业务经营许可证(ICP)苏B2-20201444苏公网安备 32011302321234号
客服
消息
收藏
下载
最近