查看完整案例


收藏

下载
写在前面
FRONT
HOT DESIGN 炽造设计团队于近期完成了位于广东省汕头市 4A 级旅游景区南澳岛上的民宿“闲庭南澳”的设计。“闲庭南澳”作为“闲庭”民宿品牌系列的第一家客店,依托南澳岛得天独厚的海景生态资源以及舒适宜人的度假环境,欲打造一个集度假、休闲、生活美学等于一体的现海景民宿。
民宿客厅区域 ©HOT DESIGN
项目地点区位©HOT DESIGN
一处得天独厚的海景闲庭
An Unique View Of The Sea
民宿所处的高层建筑坐北朝南,面朝大海且背靠青山,坐拥一线景观优势区位。民宿房间位于高层住宅顶部,为复式套房,两层面积总计约为 120㎡。上下层均有朝南的海景视野。其中楼下为公共客厅与阳台,楼上拥有 90°视野范围的户外休憩露台。
民宿场地关系与改造策略©HOT DESIGN
清晨日出东方,薄雾冥冥,百舸争流散向远洋;傍晚日落西岸,波光粼粼,渔舟唱晚汽笛渐鸣。坐饮一杯香茗,感受江山如画,人生百态。
民宿二楼室外露台©HOT DESIGN
一次彻底舍离的空间重组
A Complete Spatial Reorganization Of Space Layout
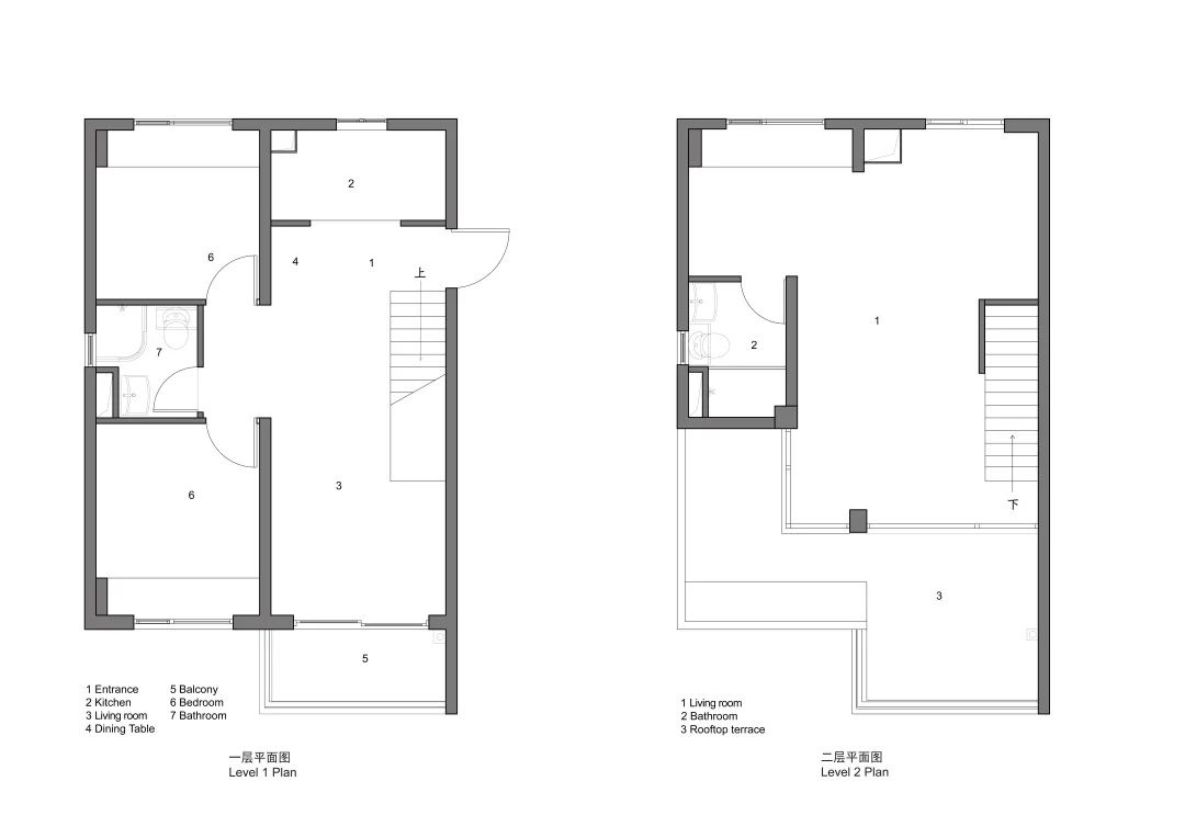
原室内空间布局划分僵硬,伴随着大量不合理以及浪费的空间,卧室尺寸狭小且功能房间不足以满足民宿的使用需求。因此设计团队在与业主充分沟通后,重新制定明确了功能需求:
1. 公共客厅与餐厅;
2. 开放式厨房;
3. 三个独立卧室房间(每个房间需要能够直接/间接看到海面,且都配套完善的卫浴系统);
4. 一个洗衣房/布草间;
5. 室外休憩露台。
民宿原始平面布局图©HOT DESIGN
因此,在原有毛坯房的基础上进行了大刀阔斧的调改,除了不能破坏的剪力墙,其他的墙体一律拆除,重新进行布局设计。
一楼拆除原有厨房与阳台分割墙体,延伸客厅空间直至窗边;
将原有两间卧室进行南北联通,保留原有卫生间位置,打造成为双床亲子房。
首层改造手法图解©HOT DESIGN
二楼将西南侧露台封闭结合原有卫生间打造豪华海景阳光房;北侧结合双窗打造配套一间景观型卫生间的独间卧室;剩余中间的地方可以得到一间洗衣房,极大满足了客房以及服务配套的功能需求。
二层改造手法图解©HOT DESIGN
民宿改造后垂直空间关系图解©HOT DESIGN
民宿改造后剖面图图解©HOT DESIGN
一种重新定义的生活美学
A Redefined Aesthetic Of Life
“闲庭南澳”题匾由著名书画大师林筱之先生亲笔题词。面对一望无垠的深海,我们更希望所处的空间可以去繁就简,剥离一切停留在世俗上的装饰和繁复。这里是灵魂的一处避世之所,在这里让一切都可以慢下来,与环境对话,与自我对话。
位于民宿入口区的闲庭南澳品牌 Logo 铭牌©HOT DESIGN
全屋微水泥材料的使用,让空间的墙、地、顶融为一体,搭配木饰面的点缀,极大地返璞归真至空间最简洁纯粹的状态。
全屋一体化微水泥工艺©HOT DESIGN
初到民宿,空间看似安静平和,实则伴随着饱含故事画面感的凝固瞬间——推门而入,一扇木洞板跃然纸上,楼梯如同从墙体自由生长而出,在玻璃扶手线条的导引下暗示涌上了二层空间;
入口玄关区右侧的木艺置物架与开放式厨房区©HOT DESIGN
悬臂式楼梯将一二层公共空间串联起来©HOT DESIGN。楼梯下方的地台一条直线笔直延续至窗台远方,地台上不仅有内嵌式沙发,同时在其一侧设计了一弯弧台,与 KAWS 玩偶坐陪;另一侧设计了一方景观池,天堂鸟硕大的翠叶为整个空间点缀了一丝生机盎然的气息。
客厅沙发区有玩偶与绿植坐陪©HOT DESIGN
玄关区木艺置物架与开放式厨房区©HOT DESIGN
餐桌整合于阳台客厅之间,既可以四人对面而坐觥筹交错,亦可一人独自饮酌,面朝大海春暖花开。
画框式阳台餐吧区©HOT DESIGN
阳台具有极佳海景视角。阳光透过百叶垂帘也能带来禅意的斑驳光影。©HOT DESIGN
客厅的顶部设计有拱形吊顶造型,一方面为了避免通体平顶由于净高有限所带来的心理压迫感受,另一方面也将灯光从点状的固有形式语言转换为线性的泛光照明,这样以来更加加强上了视觉上的进深通透感,与水平长地台、倾斜而上的玻璃栏杆、二楼顶部的磁吸轨道灯具等具有方向指向的线条交相辉映,相辅相成。
线性元素带来了空间的视觉延伸感©HOT DESIGN
天际线灯与拱形吊顶局部特写©HOT DESIGN
在这样的空间中,没有刺眼直射的灯具所带来的“强势”照明,更多能感受到的则是被从四周渗入的柔和灯光所裹挟的安逸与舒适。
空间内柔和的灯光效果。从二楼茶室可以看向室外的观海平台。©HOT DESIGN。“揽月”,“摘星”与“观海”。"Moon", "Stars" and "Sea"。民宿根据客源诉求的差异,打造三间体验迥异的卧室。根据卧室差异化的风格特色,我们予以“揽月”、“摘星”以及“观海”称之。
家庭房“观海”朝海侧卧室©HOT DESIGN
东临碣石,以观沧海
——《观沧海》
首层“观海”家庭卧南北通透,我们将于入口设立照壁将卫生间挡之身后,入口两侧即为不同床体对应的休憩空间。
家庭房“观海”朝山侧卧室©HOT DESIGN
家庭房“观海”卫生间特写©HOT DESIGN
可上九天揽月,可下五洋捉鳖
——《水调歌头·重上井冈山》
二楼“揽月”为半阳光房卧室,位于整个建筑的最顶层,并可享有沉浸环绕式海景体验。居住此屋仿佛置身于沧海之舟中,伴着晨光熹微,仿佛可聆听感受《赤壁赋》中苏子与客关于天地人生的交流探讨。
“揽月”拥有着无与伦比的豪华海景©HOT DESIGN
床上起身即可看到远处的城市、海洋与山脉©HOT DESIGN
“揽月”配套卫生间©HOT DESIGN
危楼高百尺,手可摘星辰。——《夜宿山寺》
楼“摘星”虽然置身房间北侧,原建筑窗面朝北山,但是通过对开窗设计的调整,同样在床头边拥有一扇可间接观海的阁楼式景窗。与此同时,其也是唯一一套卫生间享有大面积景观飘窗的卧室。
“摘星”拥有一扇额外的悬浮景窗,可以间接看到远处的海面。
©HOT DESIGN
卧室的北侧即是郁郁葱葱的青山©HOT DESIGN
从卫生间看向卧室,一切都是如此祥和宁静©HOT DESIGN
“摘星”配套卫生间©HOT DESIGN
民宿平面图©HOT DESIGN
民宿剖面图©HOT DESIGN
项目名称 | “闲庭南澳”民宿设计
设计公司 | HOT Design 炽造设计
主持建筑师 | 王祥、严珂
项目位置 | 广东省汕头市南澳县
项目面积 | 120㎡
设计周期 | 2022 年 1 月-3 月
施工周期 | 2022 年 8 月-2023 年 3 月
项目施工 | 上海煜榫装饰工程有限公司
主要材料 | 微水泥、超白钢化玻璃、木饰面、天际线灯
项目摄影 | 刘俊男
炽,极致也
造,营造也
以极致的创意营造未来
HOT Design 炽造设计工作室是一支富有活力、思维多元且能力全面的先锋设计团队,致力于让设计充满智趣,让憧憬转为现实,让创意达到极致。
炽造作品涵盖建筑、室内、景观、装置及产品等多个领域。团队以夯实的理论为基础,结合多专业知识,复合前沿数字化技术,塑造出作品的差异化与精品化。
我们的每一次设计都是在塑造富有生命力的空间,定义出人与环境之间积极的对话。
我们擅于突破传统思维,坚持“小则灵巧精美,大亦别有洞天”。
客服
消息
收藏
下载
最近









































