查看完整案例


收藏

下载
宁静治愈的家 Nature House.
今天跟大家分享的真实案例是一套顺义 89 平米的两居室设计,简约自然,让我们来一起看看吧!
杨小红
主任设计师
北京顺义区 · 89㎡ · 2 居
乐屋个性化装修
硬装花费 11.6 万元
户型改造
空间巧改动
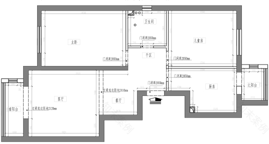
?改造前
客户需求:
1. 需要玄关鞋柜
2. 卫生间想实现干湿分离
3. 多收纳
4. 整体风格简洁耐看,温暖舒适
?改造后
户型改造:厨房门洞的墙体内推,分隔出来门厅鞋柜空间;儿童房门洞改动位置,卫生间实现干湿分离;半墙式干区隔断,更显通透。
客餐厅 Nature House
客餐厅是常规的沙发、茶几、电视柜三件套的布置,由于整个厨房区域较小,设计师将双开门冰箱挪到了沙发边上。
餐厅区域虽小,但是餐边柜设计师也没有落下,利用原本的墙体做了整面的餐边柜,既有开放区域又有封闭区域,不呆板的同时,收纳起来也更好用。
主卧 Nature House.
主卧依旧延续了整体的浅色简约风格,局部点缀木纹及咖色,自然又温馨。设计师为了满足客户的收纳需求设计了一组 L 形的衣柜加梳妆台,功能强大。
儿童房
Nature House.
儿童房采用了围合式的布局,中间有一块空地是小朋友的玩耍区域,儿童房四大功能休息、玩耍、学习、收纳完美满足,在整体的色调中加了点点果绿点缀,更有童趣。
卫生间 Nature House.
设计师将原本的纯过道空间通过更改门洞的位置,得到了浴室柜的空间,实现了干湿分离。这里有一个小心机在里面,设计师将干区的墙做成半墙的形式,不光可以放置物品,遮挡台面,还能够让空间更显大显通透。
由于洗手台盆的外置,卫生间的空间也更大更好用了。顺便再跟大家分享一个卫生间装修小 tip:美缝选择和瓷砖接近的颜色,整体性会更好哦~今天的真实案例分享就结束啦,咱们下期见!关注我们可以获得更多装修分享哦~?点击下方阅读原文,快速获取装修报价!
客服
消息
收藏
下载
最近













